Das Gebäude wurde im Jahr 1964 auf einem ca. 1.043 m² großen Grundstück errichtet, umfasst insgesamt vier Wohneinheiten und hat insgesamt eine Wohn- und Nutzfläche von ca. 437 m².
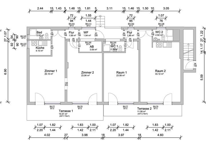
Im Hochparterre befinden sich drei separate Einheiten. Die erste Einheit bietet einen Flur, einen Abstellraum, zwei Zimmer, eine Küche sowie ein Duschbad und verfügt zusätzlich über eine großzügige Terrasse. Die zweite Einheit besteht aus einem Zimmer sowie einem WC. Die dritte Einheit wird derzeit als Büro und Aufenthaltsraum genutzt und umfasst ein Zimmer mit Küchenzeile, ein WC sowie Zugang zu einer zusätzlichen Terrasse.
Bei Bedarf wäre eine Zusammenlegung aller drei Einheiten möglich, woraus sich eine Gesamtwohnfläche von ca. 140,54 m² ergeben würde.
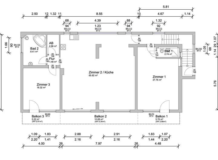
Im oberen Geschoss befindet sich eine Wohneinheit mit insgesamt ca. 138 m² Wohnfläche, die aktuell in zwei Bereiche unterteilt genutzt wird. Ein Bereich besteht aus einem Zimmer mit Duschbad. Hier könnte auch noch eine Küche eingebaut werden. Der andere Bereich, die sogenannte Master-Wohnung, verfügt über einen äußerst großzügigen Wohn-/Essbereich mit integrierter Küche, einen praktischen Abstellraum, ein Schlafzimmer sowie ein Badezimmer mit Eckbadewanne.
Ein Balkon erstreckt sich zudem über die gesamte Länge der Wohnung und sorgt für viel Platz und zusätzlichen Wohnkomfort.
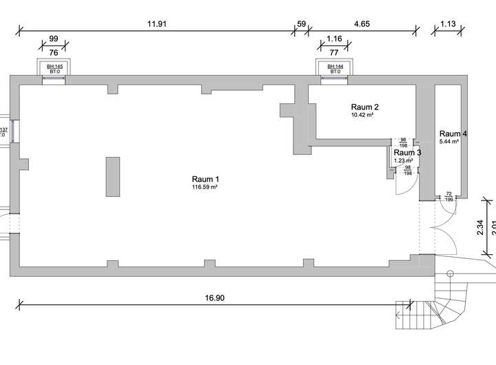
Das Souterrain bietet einen großen Raum mit ca. 116,59 m² Nutzfläche sowie zwei weitere kleinere Räume und eröffnet dadurch vielfältige Nutzungsmöglichkeiten.
Die drei Geschosse eignen sich insgesamt hervorragend für eine Kombination aus Wohnen, Arbeiten und gewerblicher Nutzung.
Alle Einheiten sind mit zweifach verglasten Kunststofffenstern ausgestattet, im Hochparterre sind teilweise noch die originalen Holzfenster erhalten. Die Deckenhöhe von ca. 2,50 m vermittelt ein angenehmes Raumgefühl.
Zudem stehen auf dem Grundstück PKW-Stellplätze sowie ein Carport zur Verfügung.
Eine Besichtigung lohnt sich!
Wir freuen uns über Ihre Kontaktaufnahme!
CA. 437m² WOHN-/NUTZFLÄCHE - TOLLES ECKGRUNDSTÜCK, IDEAL ZUM WOHNEN & ARBEITEN - VIELSEITIG NUTZBAR
Otto-Erich-Straße 10b pp,
14109 Berlin
Auf Karte anzeigen
Finanzierungszertifikat
In nur zwei Minuten zu Ihrem persönlichen Finanzierungszertifkat.
Infos
| Haustyp | Mehrfamilienhaus |
|---|---|
| Wohnfläche ca. | 279 m2 |
| Nutzfläche | 182 m2 |
| Grundstücksfläche | 1.043 m2 |
| Zimmer | 7 |
Kosten
| Kaufpreis |
1.490.000 € |
|---|---|
| Provision |
3,57% des Kaufpreises inkl. 19% MwSt., zahlbar vom Käufer. Gemäß der gesetzlichen Regelung zur Teilung der Maklercourtage beträgt die Provision 3,57% des Kaufpreises inklusive 19% MwSt. jeweils in gleicher Höhe für die Verkäuferseite sowie für die Käuferseite. |
Finanzierungsrechner:
Kaufpreis:
600.000 €
Eigenkapital:
600.000 €
Monatliche Rate
0 €
Effektiver Jahreszins
0 %
Sollzinsbindung
10 Jahre
Bausubstanz & Energieausweis
| Baujahr | 1968 |
|---|---|
| Heizungsart | Zentralheizung |
| Wesentliche Energieträger | Gas |
| Energieausweis | liegt vor |
| Energieausweistyp | Bedarfsausweis |
| Energieverbrauchskennwert | 224,6 kWh/(m²*a) |
| Energieeffizienzklasse | G |
224,6
kWh/(m²*a)
Energieeffizienzklasse G
- A+
- A
- B
- C
- D
- E
- F
- G
- H
- 0
- 25
- 50
- 75
- 100
- 125
- 150
- 175
- 200
- 225
- >250
Beschreibung des Objekts
Lage
Wannsee ist ein Ortsteil im Bezirk Steglitz-Zehlendorf und liegt im äußersten Südwesten Berlins, idyllisch eingebettet zwischen mehreren Seen. Aufgrund dieser besonderen Lage wird das Gebiet auch als „Wannsee-Insel“ bezeichnet. Der Ortsteil bietet eine einzigartige Mischung aus Villenkolonien, geschichtsträchtigen Orten, weitläufigen Naherholungsgebieten, einem Universitätscampus sowie prachtvollen Schloss- und Parkanlagen.
Das Mehrfamilienhaus befindet sich in ruhiger und guter Lage, nur wenige Schritte von der Königstraße sowie der begehrten Wasserlage am Pohlesee entfernt. Einkaufsmöglichkeiten für den täglichen Bedarf, darunter diverse Supermärkte, Discounter und ein moderner Bio-Supermarkt, befinden sich ebenso in der Umgebung wie Ärzte und Apotheken.
Die nahegelegenen Seen und das weitläufige Waldgebiet bieten hervorragende Möglichkeiten zur Erholung und Freizeitgestaltung. In fußläufiger Entfernung befinden sich eine Kindertagesstätte sowie eine Grundschule. Ein Fußballverein, ein Tennisclub und mehrere Wassersportvereine – darunter renommierte Boots- und Segelclubs – bieten vielfältige sportliche Aktivitäten. Der traditionsreiche Golfclub Berlin-Wannsee ist ebenfalls schnell erreichbar.
Die Anbindung an die Innenstadt ist sehr gut: Das Zentrum Berlins und Potsdams ist sowohl mit dem Pkw als auch mit den Buslinien 118, 316, 318, N16 sowie der S-Bahn-Linie S1 vom nahegelegenen S-Bahnhof Wannsee aus zügig erreichbar.
Adresse
Otto-Erich-Straße 10b pp, 14109 Berlin
Interessante Orte
Preis- und Lageinformationen
Preistrend für Bestandsimmobilien in Wannsee (Zehlendorf)