Das angebotene Grundstück befindet sich in der Gemarkung Baden der Stadt Achim und umfasst das Flurstück 19/5 in Flur 4. Auf dem Flurstück zwischen dem Grundstück und der Straße ist ein Weggerecht zu Gunsten des Eigentümers des zu veräußernden Grundstücks eingetragen. Das Grundstück liegt nördlich des Gewerbeparks Achim-Uesen und südlich der Autobahn.
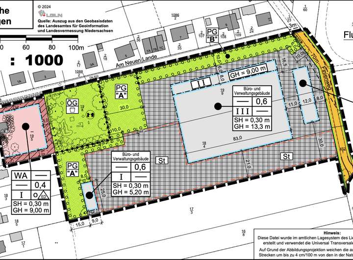
Das Grundstück fällt unter den Bebauungsplan Nr. 30, der die Fläche als allgemeines Wohngebiet ausweist.
Zulässig sind Einzel- und Doppelhäuser in offener Bauweise, mit einer Grundflächenzahl von 0,4 und einer maximalen Zahl von einem Vollgeschoss. Die Sockelhöhe darf bis zu 0,30 Meter betragen, die maximale Gebäudehöhe ist auf 9,00 Meter festgelegt.
Ausrichtung des Grundstücks
Das Grundstück wird über eine nördlich gelegene Straße erschlossen und ist nach Süden ausgerichtet. Es ist vollständig eingefriedet und rechteckig geschnitten.
Attraktives Baugrundstück in Achim Baden
28832 Achim
Die vollständige Adresse der Immobilie erhalten Sie vom Anbieter.
Auf Karte anzeigen
Die vollständige Adresse der Immobilie erhalten Sie vom Anbieter.
Finanzierungszertifikat
In nur zwei Minuten zu Ihrem persönlichen Finanzierungszertifkat.
Infos
| Vermarktungsart | Kaufen |
|---|---|
| Grundstücksfläche | 1.682 m2 |
| Erschließung | Erschlossen |
| Empfohlene Nutzung | Doppelhaus, Einfamilienhaus |
| Grundflächenzahl (GRZ) | 0.4 |
| Bebaubar nach | Bebauungsplan |
Kosten
| Miete pro Jahr |
499.000 € |
|---|---|
| Provision |
5,95 Maklercourtage Der Maklervertrag mit der Immobilienberatung Bremen GmbH kommt durch schriftliche Vereinbarung oder auch durch die Inanspruchnahme unserer Maklertätigkeit auf der Basis des Objektexposés und seiner Bedingungen (AGB) zustande. Sollte Ihnen das von uns angebotene Objekt bereits bekannt sein, teilen Sie uns dieses bitte unverzüglich mit. Die Courtage beträgt marktübliche 5,95 % inkl. MwSt. für den Käufer. Die Grunderwerbssteuer, Notar- und Grund- buchkosten sind vom Käufer zu tragen. Die Courtage ist verdient und fällig mit der Unterzeichnung des notariellen Kaufvertrages. |
Finanzierungsrechner:
Kaufpreis:
600.000 €
Eigenkapital:
600.000 €
Monatliche Rate
0 €
Effektiver Jahreszins
0 %
Sollzinsbindung
10 Jahre
Beschreibung des Objekts
Lage
Achim liegt im Landkreis Verden in Niedersachsen, süd- östlich von Bremen, direkt an der Weser. Durch die Nähe zu Bremen und die Anbindung an die Autobahnen A1 und A27 sowie den Regionalbahnverkehr ist die Stadt verkehrstechnisch gut erschlossen. Die Umgebung ist geprägt von Marsch- und Geestlandschaften mit Flussauen und landwirtschaftlichen Flächen. Mit rund 33.000 Einwohnern ist Achim die größte Stadt im Landkreis. Sie besteht aus mehreren Ortsteilen und bietet eine gute Infrastruktur mit Schulen, Vereinen und Freizeitein- richtungen. Wirtschaftlich ist Achim durch Gewerbe- und Industriegebiete, Logistik und Dienstleistung geprägt. Sehenswert sind unter anderem die St.-Laurentius- Kirche, das Rathaus und die Weserauen als Naherho- lungsgebiet.
Sonstige Angaben
Rechtliche Hinweise
Für die im Exposé gemachten Angaben übernehmen wir keine Gewähr. Die gemachten Angaben basieren ausschließlich auf Informationen unseres Auftraggebers. Somit übernehmen wir keine Haftung oder Gewähr für die Voll- ständigkeit, Richtigkeit und Aktualität dieser Angaben. Nachträgliche Änderungen und Korrekturen im Exposé behalten wir uns vor. Irrtum und Zwischenverkauf bleibt vorbehalten. Eine Besichtigung des Objekts ist nach Vereinbarung möglich. Vorsorglich weisen wir bei dem Objekt auf den gebrauchten Zustand sowie auf eine mögliche baujahrestypische Schadstoffbelastung hin.