In bevorzugter Wohnlage der Wolfsburger Nordstadt, in der Tiergartenbreite, befindet sich dieses laufend modernisierte Mehrfamilienhaus mit drei Wohneinheiten. Die Kombination aus ruhigem Wohnumfeld, guter Vermietbarkeit und umfangreichen Modernisierungen macht das Objekt attraktiv für langfristig orientierte Anleger.
Das Haus wurde über die Jahre kontinuierlich instand gehalten und technisch auf einen überzeugenden Stand gebracht. Dazu zählen unter anderem die Außendämmung (2013), dreifach verglaste Kunststofffenster mit Außenrollläden (EG, OG & DG, ebenfalls 2013), eine modernisierte Elektrik (2006–2013) sowie eine umfassende Dachsanierung inklusive Dämmung im Jahr 2005. Ein Glasfaseranschluss, Fernwärmeversorgung und der sehr gepflegte Vollkeller runden die technische Ausstattung ab.
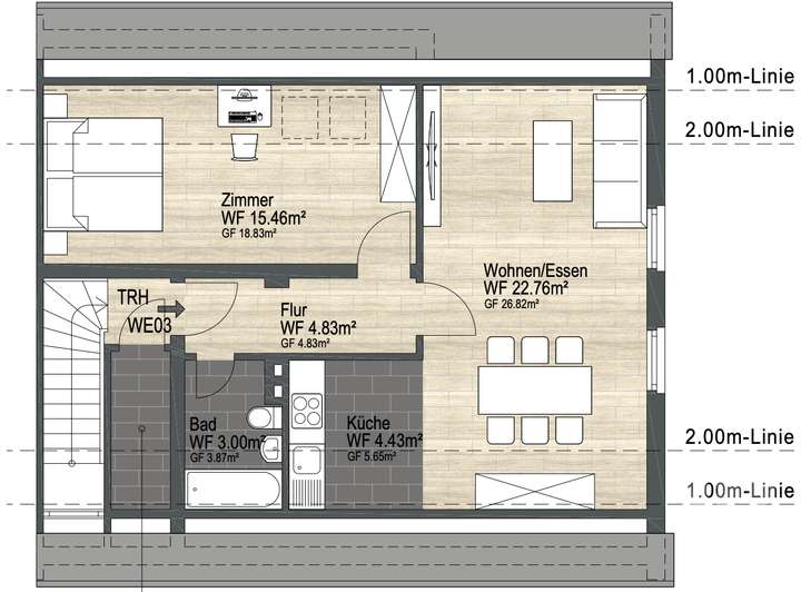
Die insgesamt ca. 197 m² Wohnfläche verteilen sich auf drei Einheiten:
• Erdgeschoss – ca. 77 m² mit modernem Bad (2017) und direktem Zugang zur Terrasse – aktuell leerstehend
• Obergeschoss – ca. 70 m² mit Balkon – vermietet
• Dachgeschoss – ca. 50 m² – vermietet
Alle Wohnungen verfügen über praktische Grundrisse mit 2–3 Zimmern, Einbauküchen sowie Tageslichtbädern. Der Leerstand im Erdgeschoss eröffnet Spielraum – für eine unkomplizierte Neuvermietung oder gegebenenfalls Eigennutzung.
Zum Haus gehören außerdem eine Garage und ein privater Stellplatz. Das Wohnumfeld ist geprägt von gepflegten Einfamilien- und kleineren Mehrfamilienhäusern, einer sehr guten Anbindung an die Innenstadt sowie kurzen Wegen zu Einkaufsmöglichkeiten, Schulen und Freizeitangeboten.
Diese Immobilie bietet eine verlässliche Perspektive für Kapitalanleger – mit einer stabilen Mieterstruktur, keinem kurzfristigen Modernisierungsbedarf und einer gefragten Lage in Wolfsburgs Norden.
Die Immobilie steht auf einem Erbpachtgrundstück. Der Kaufpreis des Grundstücks bei Eigennutzung beträgt ca. 91.778 €. Der jährliche Erbpachtzins beträgt zukünftig ca. 245 €. Der bestehende Vertrag läuft noch 35 Jahre und endet im Jahr 2060.
Investieren in Top-Lage – Mehrfamilienhaus im Hasenwinkel
38448 Wolfsburg
Die vollständige Adresse der Immobilie erhalten Sie vom Anbieter.
Auf Karte anzeigen
Die vollständige Adresse der Immobilie erhalten Sie vom Anbieter.
Finanzierungszertifikat
In nur zwei Minuten zu Ihrem persönlichen Finanzierungszertifkat.
Infos
| Haustyp | Sonstige |
|---|---|
| Wohnfläche ca. | 197 m2 |
| Grundstücksfläche | 560 m2 |
| Bezugsfrei ab | sofort |
| Zimmer | 7 |
| Schlafzimmer | 4 |
| Badezimmer | 3 |
| Garage/Stellplatz | Garage |
| Anzahl Garage/Stellplatz | 2 |
Kosten
| Kaufpreis |
297.000 € |
|---|---|
| Provision |
3,57 % Käuferprovision inkl. gesetzl. MwSt. Die Käufer-Provision beträgt 3,57% vom Kaufpreis inkl. MwSt. Die Käufer-Provision ist verdient und fällig mit notarieller Beurkundung. Der Immobilienmakler hat einen provisionspflichtigen Maklervertrag in gleicher Höhe mit dem Verkäufer abgeschlossen. |
Finanzierungsrechner:
Kaufpreis:
600.000 €
Eigenkapital:
600.000 €
Monatliche Rate
0 €
Effektiver Jahreszins
0 %
Sollzinsbindung
10 Jahre
Bausubstanz & Energieausweis
| Baujahr | 1962 |
|---|---|
| Objektzustand | Gepflegt |
| Heizungsart | Fernwärme |
| Wesentliche Energieträger | Fernwärme |
| Energieausweis | liegt vor |
| Energieausweistyp | Bedarfsausweis |
| Energieverbrauchskennwert | 83,8 kWh/(m²*a) |
| Energieeffizienzklasse | C |
83,8
kWh/(m²*a)
Energieeffizienzklasse C
- A+
- A
- B
- C
- D
- E
- F
- G
- H
- 0
- 25
- 50
- 75
- 100
- 125
- 150
- 175
- 200
- 225
- >250
Beschreibung des Objekts
Ausstattung
• stetig modernisiertes MFH
• aktuell in 3 Wohneinheiten aufgeteilt
• 2 und 3 Zimmer, jeweils mit Küche sowie Badezimmer mit Fenster
• Terrasse im EG, Balkon im 1. OG
• OG (70 m²) vermietet
• DG (50 m²) vermietet
• EG (77 m²) leerstehend
• Außendämmung 2013
• Kunststofffemster 3-fach verglast 2013 mit Außenrollläden (EG, OG & DG)
• Kunststofffenster 2-fach verglast 2013 im Keller
• Elektrik 2006 bis 2013
• Dachsanierung inkl. Dämmung 2005
• Badezimmer aus 2017
• Vollkeller in sehr gepflegtem Zustand
• Fernwärme
• Glasfaseranschluss
• 1 Garage
• 1 privater Stellplatz
• Erbpacht der Stadt Wolfsburg
• Der jährliche Erbpachtzins beträgt zukünftig ca. 245 €
• Restlaufzeit: 35 Jahre, bis 2060
• Kaufpreis des Grundstücks ca. 91.778 € (bei Eigennutzung)
Lage
Das Mehrfamilienhaus befindet sich in der Tiergartenbreite, einer gefragten Wohnlage der Wolfsburger Nordstadt mit sehr guter Infrastruktur. Der Hansaplatz sowie das nahegelegene EDEKA-Einkaufszentrum bieten kurze Wege für den täglichen Bedarf und sind bequem zu Fuß erreichbar.
Die verkehrliche Anbindung überzeugt ebenfalls: Buslinien Richtung Innenstadt, Hauptbahnhof und Volkswagenwerk liegen in der Nähe, zudem erreicht man die Berliner Brücke und die A39 innerhalb weniger Minuten.
Für Freizeit und Erholung steht der Nordstadtwald nahezu vor der Haustür – ideal für Spaziergänge, Sport oder entspannte Stunden im Grünen. Schulen, Kitas und Spielplätze im direkten Umfeld runden die familienfreundliche und langfristig attraktive Wohnlage ab.
Sonstige Angaben
Gerne sind wir für weitere Fragen und Informationen unter Tel. 05361/83446-70 erreichbar.
Bei Kauf verpflichtet sich der Käufer an die Kristin Krumm Immobilien GmbH eine Maklerprovision in der angegebenen Höhe nach notariellem Kaufvertrag zu leisten. Durch Ihre Objektanfrage bestätigen Sie die Vereinbarung und Anerkennung dieser Maklercourtage.
Anfragen über die Immobilienportale werden nur mit vollständiger Adresse und Telefonnummer bearbeitet.
HAFTUNGSAUSSCHLUSS: Alle Angaben stammen vom Eigentümer. Trotz regelmäßiger Prüfung von Daten, Bildern und Informationen übernehmen wir keine Haftung für die Richtigkeit der Angaben. Ebenso wenig für die Verfügbarkeit des Angebotes.
Es gelten unsere Allgemeinen Geschäftsbedingungen.
Grundriss
Grundriss Erdgeschoss
>
>
Grundriss Obergeschoss
>
>
Grundriss Dachgeschoss
>
>
Grundriss Kellergeschoss
>
>
Adresse
38448 Wolfsburg
Interessante Orte
Preis- und Lageinformationen
Preistrend für Bestandsimmobilien in Nordstadt