Zum Verkauf steht ein attraktives Grundstück zur Wohnbebauung in der begehrten Stadt München mit einer genehmigten Planung für ein Einfamilienhaus.
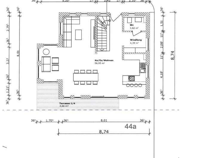
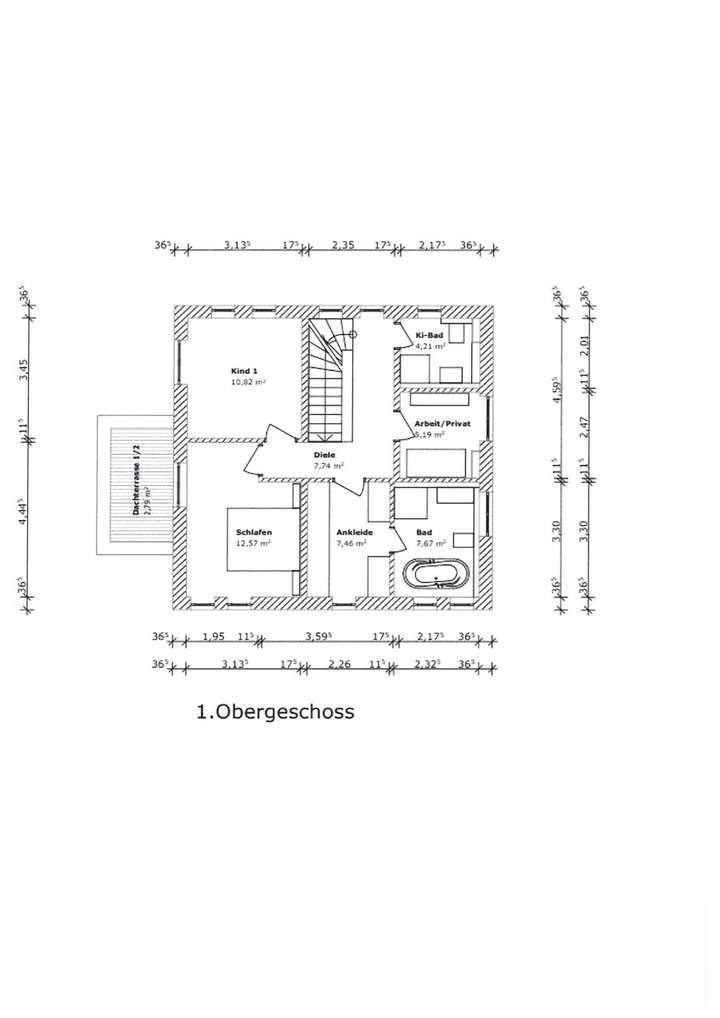
* Einfamilienhaus mit genehmigter Planung und einer Wohnfläche von ca. 145 m² mit Erdgeschoß, Obergeschoß und Dachgeschoß
* Sie kaufen somit ein Grundstück mit erteilter Baugenehmigung!!!
Die Grundstücke können real geteilt werden!!!
Das auf dem Grundstück zu errichtende Einfamilienhaus kann mit den Maßen 8,74 Meter x 8,74 Meter gebaut werden. Es kann ein Erdgeschoß, ein Obergeschoß und ein Dachgeschoß erstellt werden. Eine Planung mit Ansicht des Hauses, Schnitt, Grundrisse sowie den entsprechen Maßen und Größen fügen wir bei.
Diese einmalige Gelegenheit bietet Ihnen die Chance, Ihr Traumhaus mit einer Wohnfläche von ca. 145 m² zu errichten, bestehend aus Erdgeschoss, Obergeschoss und Dachgeschoss.
Das Grundstück ist großzügig bemessen mit ca. 322 m².
Die exzellente Lage in einer der lebendigsten und kulturell reichsten Städte Deutschlands macht dieses Angebot zu einem äußerst begehrten Objekt. Nutzen Sie die Gelegenheit, in eine solch exklusive Gegend zu investieren. Mit der bereits erteilten Baugenehmigung sichern Sie sich Ihr Stück München, um Ihre Vision eines perfekten Eigenheims zu verwirklichen.
***München: Grundstück für EFH mit Baugenehmigung – jetzt zugreifen!***
Theodor-Fischer-Str. 44 und 44A,
80999 München
Auf Karte anzeigen
Finanzierungszertifikat
In nur zwei Minuten zu Ihrem persönlichen Finanzierungszertifkat.
Infos
| Vermarktungsart | Kaufen |
|---|---|
| Grundstücksfläche | 322 m2 |
| Erschließung | Teilerschlossen |
| Empfohlene Nutzung | Einfamilienhaus |
Kosten
| Miete pro Jahr |
625.000 € |
|---|---|
| Provision |
3,57% inkl. MwSt. Bitte beachten Sie, dass dieses Angebot nur für Sie persönlich und nicht zur Weitergabe an Dritte bestimmt ist. Die Provision inkl. gesetzl. MwSt. ist nach notarieller Beurkundung verdient und fällig. |
Finanzierungsrechner:
Kaufpreis:
600.000 €
Eigenkapital:
600.000 €
Monatliche Rate
0 €
Effektiver Jahreszins
0 %
Sollzinsbindung
10 Jahre
Beschreibung des Objekts
Lage
Dieses attraktive Grundstück befindet sich im begehrten Nordwesten von München, eingebettet in eine ruhige und idyllische Wohngegend. Die Umgebung zeichnet sich durch eine angenehme Mischung aus städtischem Komfort und grünem Erholungsraum aus. Das Viertel ist besonders beliebt bei Familien und Naturliebhabern, da es zahlreiche Parks und Grünflächen bietet, die zu Spaziergängen und Freizeitaktivitäten im Freien einladen.
Die Anbindung an den öffentlichen Nahverkehr ist hervorragend, was die täglichen Wege in die Münchner Innenstadt oder zu anderen Stadtteilen äußerst unkompliziert macht. Einkaufsmöglichkeiten für den täglichen Bedarf, sowie Schulen und Kindergärten, sind in der näheren Umgebung zahlreich vorhanden, was den Standort besonders attraktiv für Familien macht. Zudem gibt es diverse Restaurants und Cafés, die eine Vielzahl kulinarischer Erlebnisse versprechen.
Die Kombination aus urbaner Infrastruktur und naturnahem Wohnen macht diesen Stadtteil zu einer der gefragtesten Wohnlagen in München. Hier genießt man die Vorzüge eines entspannten Wohnens, ohne auf die Annehmlichkeiten der Großstadt verzichten zu müssen.
Sonstige Angaben
Wir freuen uns auf Ihre Kontaktaufnahme.
Bitte beachten Sie, dass wir zuverlässig und schnell auf Ihre Anfrage reagieren können, wenn Sie uns Ihre vollständigen Kontaktdaten inkl. Telefonnummer zukommen lassen.
Die Maklergebühr beträgt 3,57% aus dem verbrieften Kaufpreis inkl. MwSt. und wird fällig nach notarieller Verbriefung.
Sie wollen Ihre Immobilie verkaufen / neu vermieten? Nutzen Sie unsere kostenlose Beratung und Wertermittlung / Marktwertberechnung. Ich freue mich auf Ihren Anruf!
Widerrufsrecht: Mit der Novellierung des Verbraucherrechts im Juni 2014 sind auch Maklerunternehmen verpflichtet, Kunden über ihre gesetzlichen Widerrufsrechte zu informieren. Damit stärkt der Gesetzgeber die Rechte der Verbraucher. Wir stellen uns diesem Prozess, um Sie als Kunden bestmöglich zu informieren. Der Nachweis, dass der Kunde über sein Widerrufsrecht informiert wurde, obliegt dabei den Unternehmen. Wir sind bemüht, diesen Prozess für Sie als Kunden so komfortabel und transparent wie möglich zu gestalten. Sie sehen, dass wir unsere Kunden nicht mit zusätzlichen Modalitäten ärgern möchten, sondern aktiv informieren.
Selbstverständlich verwenden wir Ihre Daten ausschließlich zum Zweck der Kontaktaufnahme mit Ihnen bezüglich unserer Projekte.
Ihr Einverständnis können Sie jederzeit widerrufen. Alle Angaben sind ohne Gewähr und basieren ausschließlich auf Informationen, die uns von unseren Auftraggebern zur Verfügung gestellt wurden. Wir übernehmen keine Gewähr für die Vollständigkeit, Richtigkeit und Aktualität dieser Angaben. Die Grunderwerbssteuer, Notar- und Grundbuchkosten sind vom Käufer zu tragen. Bilder und Illustrationen dienen ausschließlich der besseren Darstellung und erheben keinen Anspruch auf Richtigkeit.
Irrtum und Zwischenverkauf vorbehalten.
Grundriss
EG
>
>
OG
>
>
DG
>
>
UG
>
>