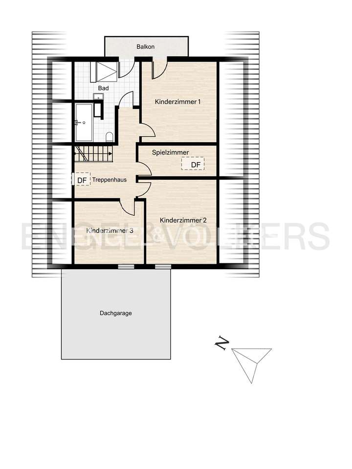
Dieses beeindruckende Einfamilienhaus, in einem ruhigen, ländlich geprägten Ortsteil von Taunusstein, vereint moderne Wohnqualität mit großzügigem Raumangebot und einem hohen Anspruch an Energieeffizienz. Ursprünglich 1974 erbaut, wurde die Immobilie im Jahr 2021 umfassend und hochwertig kernsaniert und präsentiert sich heute in einem nahezu neuwertigen Zustand. Auf rund 360 m² Wohnfläche und einem Grundstück von ca. 884 m² bietet das Haus viel Platz für große Familien, die Wert auf Komfort, Nachhaltigkeit und naturnahes Wohnen legen. Insgesamt elf Zimmer verteilen sich auf drei Etagen und ermöglichen vielfältige Nutzungsmöglichkeiten – ob als großzügige Familienräume, Homeoffice, Spiel- oder Gästezimmer. Die modern gestaltete Küche fügt sich harmonisch in das helle Wohnkonzept ein und lädt zum gemeinsamen Kochen und Genießen ein. Große Fensterflächen mit dreifacher Verglasung, elektrische Rollläden und eine überdurchschnittliche Raumhöhe sorgen für ein lichtdurchflutetes, angenehmes Wohnambiente. Im gesamten Haus sind hochwertige Bio-Design-Böden sowie geschmackvolle Fliesen verlegt, die ein harmonisches und zugleich pflegeleichtes Wohngefühl vermitteln. Zwei Balkone und mehrere Terrassenflächen mit Südausrichtung bieten herrliche Ausblicke in die Natur und schaffen wunderbare Rückzugsorte im Freien. Das Haus verfügt über zwei moderne Bäder, einen Wellnessbereich sowie zwei separate Gäste-Toiletten. Im Untergeschoss befindet sich der Wellnessbereich mit moderner Sauna und einem Indoor-Pool von etwa 8 x 4 Metern, welcher über eine große Terrassentür direkten Zugang in den Garten bietet. Der Indoor-Pool ist bislang noch nicht komplett fertiggestellt und bietet somit die Möglichkeit, ihn nach eigenen Vorstellungen auszubauen und individuell zu gestalten. Das Haus wird über eine effiziente Wärmepumpe beheizt, verfügt über eine umfassende Außendämmung, ein komplett erneuertes Dach sowie eine Photovoltaikanlage im Mietmodell, was gemeinsam zur hervorragenden Energieeffizienzklasse A+ beiträgt. Als KfW-85-Haus erfüllt es höchste Ansprüche an nachhaltiges Wohnen. Eine Doppelgarage steht ebenfalls zur Verfügung. Unter der Garage gibt es einen separaten Geräte- und Lagerraum, der vom Garten aus zu erreichen ist.
Dieses Haus ist bezugsfertig, mit Liebe zum Detail und hochwertigen Materialien kernsaniert und bietet alles, was sich eine große, naturverbundene Familie wünscht. Energiedaten: Bedarfsausweis: Endenergiebedarf kWh/(m²*a): 20,7, Wärmepumpe, Baujahr des Gebäudes: 1974, Baujahr Wärmeerzeuger: 2021, Energieklasse: A+
Wohntraum für die große Familie - modern, energieeffizient, bezugsfertig
65232 Taunusstein
Die vollständige Adresse der Immobilie erhalten Sie vom Anbieter.
Auf Karte anzeigen
Die vollständige Adresse der Immobilie erhalten Sie vom Anbieter.
Finanzierungszertifikat
In nur zwei Minuten zu Ihrem persönlichen Finanzierungszertifkat.
Infos
| Haustyp | Einfamilienhaus |
|---|---|
| Etagenzahl | 3 |
| Wohnfläche ca. | 360 m2 |
| Nutzfläche | 88 m2 |
| Grundstücksfläche | 884 m2 |
| Bezugsfrei ab | nach Vereinbarung |
| Zimmer | 11 |
| Schlafzimmer | 8 |
| Badezimmer | 3 |
| Garage/Stellplatz | Garage |
| Anzahl Garage/Stellplatz | 1 |
Kosten
| Kaufpreis |
989.000 € |
|---|---|
| Provision |
3.57 % inkl. gesetzl. MwSt. |
Finanzierungsrechner:
Kaufpreis:
600.000 €
Eigenkapital:
600.000 €
Monatliche Rate
0 €
Effektiver Jahreszins
0 %
Sollzinsbindung
10 Jahre
Bausubstanz & Energieausweis
| Baujahr | 1974 |
|---|---|
| Letzte Sanierung | 2021 |
| Objektzustand | Neuwertig |
| Heizungsart | Wärmepumpe |
| Energieausweis | liegt vor |
| Energieausweistyp | Bedarfsausweis |
| Energieverbrauchskennwert | 20,7 kWh/(m²*a) |
| Energieeffizienzklasse | A+ |
20,7
kWh/(m²*a)
Energieeffizienzklasse A+
- A+
- A
- B
- C
- D
- E
- F
- G
- H
- 0
- 25
- 50
- 75
- 100
- 125
- 150
- 175
- 200
- 225
- >250
Beschreibung des Objekts
Ausstattung
- Vollständig und hochwertig kernsaniert
- Bezugsfertig
- KFW85-Haus
- Toller Garten
- Verschiedene Terrassenbereiche
- Energieeffizienz A+
- Wärmepumpe
- PV-Anlage (als Mietmodell)
- Wellnessbereich mit Sauna
- Indoorpool 8x4m (noch ausbaufähig)
- Einbauküche
- Große Kinderzimmer im OG
- Fenster dreifachverglast
- Elektrische Rolläden
- Bio-Vinyl-Böden
- Zwei Balkone
- Zwei große Bäder
- Zwei Gästetoiletten
- Außendämmung
- Dach erneuert
- Hochwertige Einbauküche
- Doppelgarage
- Wunderschönes Raumprogramm
- Lagerfläche
Lage
Das schöne, freistehende Einfamilienhaus befindet sich in Taunusstein-Niederlibbach, einem ruhigen und familienfreundlichen Ortsteil der Stadt Taunusstein. Niederlibbach verbindet ländliche Idylle mit einer guten Anbindung an die umliegenden Städte und bietet seinen Bewohnern ein naturnahes, entspanntes Wohnumfeld.
Der Ort verfügt über eine lebendige Dorfgemeinschaft: Ein aktiver Dorfverein, ein Turn- und Sportverein sowie zahlreiche Freizeit- und Kinderangebote sorgen für ein abwechslungsreiches Miteinander.
Ein zentraler Treffpunkt für alle Generationen ist das neue Mehrgenerationenhaus im Ort. Mit Jugendclub, Kursangeboten, Veranstaltungen und offenen Begegnungsräumen bietet es ein modernes, attraktives Zentrum für Jung und Alt. Besonders hervorzuheben ist auch die große Streuobstwiese, die zu Spaziergängen, Naturerkundungen und Erholung einlädt.
Die verkehrstechnische Anbindung ist hervorragend: Der Stadtbus 210 verkehrt im halbstündigen Takt und stellt direkte Verbindungen nach Wiesbaden und Idstein her. Mit dem Auto erreicht man Wiesbaden in etwa 20–25 Minuten, Idstein in rund 15 Minuten. Die Autobahn A3 (Anschlussstelle Idstein) liegt nur wenige Fahrminuten entfernt und ermöglicht eine schnelle Verbindung in Richtung Köln oder Frankfurt. Der Flughafen Frankfurt ist in etwa 35–40 Minuten bequem erreichbar.
Für Familien bietet Taunusstein eine sehr gute Infrastruktur: Kindertagesstätten befinden sich in mehreren Ortsteilen wie Orlen, Neuhof oder Wehen. Die nächste Grundschule, die Silberbachschule, liegt im nahegelegenen Taunusstein-Wehen; ein Schulbus verbindet den Ort zuverlässig mit der Schule. Einkaufsmöglichkeiten des täglichen Bedarfs sowie Supermärkte, Apotheken, Banken und weitere Geschäfte befinden sich in Kesselbach, Neuhof, Wehen oder Hahn – alle nur wenige Minuten mit dem Auto entfernt.
Niederlibbach vereint damit naturnahes Wohnen, starke Gemeinschaft, gute Infrastruktur und eine hervorragende Anbindung – ideal für Familien, Pendler und alle, die Wert auf Lebensqualität im Grünen legen.
Sonstige Angaben
Der Makler-Vertrag mit uns und/oder unserem Beauftragten kommt durch die Bestätigung der Inanspruchnahme unserer Maklertätigkeit in Textform zustande, wie z.B. insbesondere die Unterschrift des Suchkundenvertrages und/oder des Objekt-Exposés. Die Höhe der Courtage richtet sich nach den ab dem 23.12.2020 in Kraft getretenen gesetzlichen Regelungen zur Teilung der Maklercourtage. Hiernach wird die Courtage regelmäßig für beide Parteien (Eigentümer und Käufer) jeweils in Höhe von 3 % zuzüglich Umsatzsteuer in jeweils geltender Höhe, derzeit also insgesamt 3,57 % des Kaufpreises einschließlich Umsatzsteuer bei notariellem Vertragsabschluss verdient und fällig. Die Höhe der Bruttocourtage unterliegt einer Anpassung bei Steuersatzänderung. Grunderwerbsteuer, Notar- und Gerichtskosten trägt der Käufer.
Grundriss
Erdgeschoss
>
>
Gartengeschoss
>
>
Dachgeschoss
>
>
Adresse
65232 Taunusstein
Interessante Orte
Preis- und Lageinformationen
Preistrend für Bestandsimmobilien in Taunusstein