Das im Jahr 1969 in massiver Bauweise errichtete Einfamilienhaus präsentiert sich in einem sehr gepflegten Zustand und wurde über die Jahre hinweg regelmäßig modernisiert. Zu den wichtigsten Erneuerungen zählen das sanierte Flachdach, inklusive Dämmung (2009), Kuststoff-Fenster und Haustür von "Weru" mit Sicherheitsglas und im Fensterrahmen integrierte Rolladensteuerung die mit Zeit, Sonnen und Dämmerungssteuerung betrieben werden können (1999), ein modernes Duschbad im Obergeschoss, sowie ein Gäste-WC (2000).
Die Wohnräume überzeugen durch eine funktionale und großzügige Raumaufteilung: Drei gemütliche Schlafzimmer, ein großzügiges Wohnzimmer, eine gesellige Essdiele sowie eine Küche mit Einbauküche bieten Platz für die ganze Familie. Die große überdachte nach Westen ausgerichtete Terrasse lädt zu entspannten Stunden ein. Ein großer Abstellraum an dieser Stelle biete zudem ausreichend Platz nicht nur für die Gartengeräte und Gartenmöbel Polster.
Ein praktischer Vollkeller ermöglicht zusätzliche Stau- und Nutzfläche und rundet das attraktive Gesamtraumangebot ab.
Eine massive PKW-Garage mit elektr. Rolltor befindet sich in unmittelbarer Nähe (50m) und ist im Kaufumfang enthalten.
Sehr gepflegtes, modernisiertes Reihenmittelhaus inklusive Garage
28327 Bremen
Die vollständige Adresse der Immobilie erhalten Sie vom Anbieter.
Auf Karte anzeigen
Die vollständige Adresse der Immobilie erhalten Sie vom Anbieter.
Finanzierungszertifikat
In nur zwei Minuten zu Ihrem persönlichen Finanzierungszertifkat.
Infos
| Haustyp | Reihenmittelhaus |
|---|---|
| Etagenzahl | 3 |
| Wohnfläche ca. | 106 m2 |
| Nutzfläche | 49 m2 |
| Grundstücksfläche | 228 m2 |
| Bezugsfrei ab | ab sofort |
| Zimmer | 5 |
| Schlafzimmer | 3 |
| Badezimmer | 1 |
| Garage/Stellplatz | Garage |
| Anzahl Garage/Stellplatz | 1 |
Kosten
| Kaufpreis |
330.000 € |
|---|---|
| Provision |
2,98 % (inkl. 19 % MwSt.) vom beurkundeten Kaufpreis, jeweils vom Käufer und Verkäufer |
Finanzierungsrechner:
Kaufpreis:
600.000 €
Eigenkapital:
600.000 €
Monatliche Rate
0 €
Effektiver Jahreszins
0 %
Sollzinsbindung
10 Jahre
Bausubstanz & Energieausweis
| Baujahr | 1969 |
|---|---|
| Objektzustand | Modernisiert |
| Heizungsart | Fernwärme |
| Wesentliche Energieträger | KWK fossil |
| Energieausweis | liegt vor |
| Energieausweistyp | Bedarfsausweis |
| Energieverbrauchskennwert | 226,9 kWh/(m²*a) |
| Energieeffizienzklasse | G |
226,9
kWh/(m²*a)
Energieeffizienzklasse G
- A+
- A
- B
- C
- D
- E
- F
- G
- H
- 0
- 25
- 50
- 75
- 100
- 125
- 150
- 175
- 200
- 225
- >250
Beschreibung des Objekts
Ausstattung
Exemplarisch möchten wir auf folgende Ausstattungsmerkmale hinweisen:
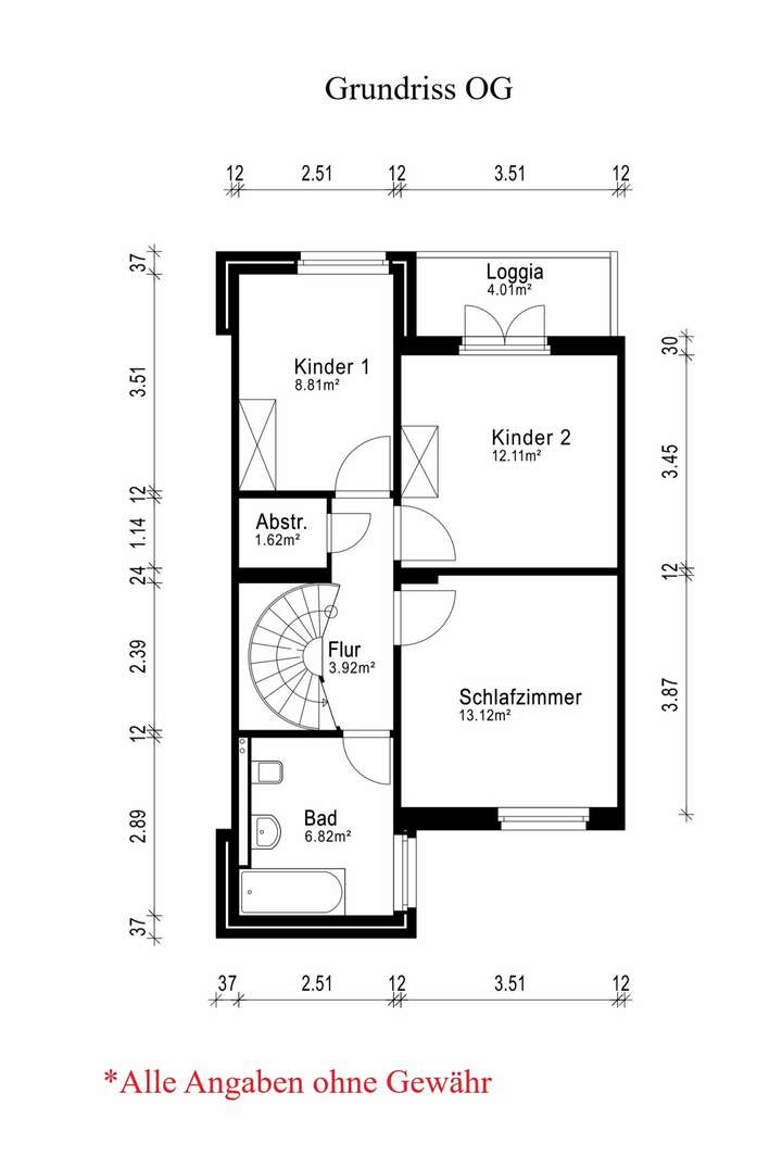
-3 Schlafzimmer (ca. 13,12,9 m²)
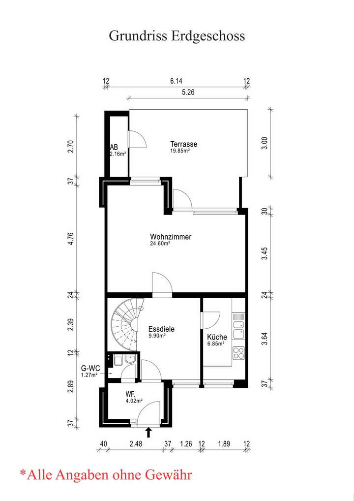
-Großes Wohnzimmer (ca. 25 m²)
-Essdiele (ca. 10 m²)
-Überdachte Westterrasse (ca. 20 m²) mit Markise
- ca. 4 m² Loggia im OG
-Küche mit EBK und Granitarbeitsplatte
-Modernisiertes Tageslicht Duschbad (ca. 9 m²)
-Modernisiertes Gäste-WC
-Neue Kunststofffenster mit integrierten elektr. Rollläden
-Neue Sicherheitshaustür
- Saniertes Flachdach (inkl. Dämmung) 2009
-Großer Vollkeller (ca. 49 m²)
-Pflegeleicht angelegter Garten
-Garage mit elektr. Sektionaltor
Lage
Die Immobilie befindet sich in einer ruhigen Wohnstraße im Stadtteil Blockdiek. Diese Lage zeichnet sich durch eine überwiegend private Wohnbebauung aus – Mehr- und Einfamilienhäuser, Grünflächen sowie eine gute Nachbarschaft prägen diesen Stadtteil.
Die Anbindung des ÖPNV ist sehr gut: Haltestellen der Bahnlinie 1, sowie Buslinien 25 und 29 sind fußläufig schnell erreichbar. Einkaufsmöglichkeiten, Schulen und Freizeiteinrichtungen sind ebenfalls naher Umgebung. Gleichzeitig ermöglicht die rückwärtig Lage eine angenehme Wohnqualität mit geringem Verkehrsaufkommen. Der Stadtteil Blockdiek bietet damit eine Kombination aus wohnlicher Ruhe und urbaner Erreichbarkeit.
Sonstige Angaben
Die Grundsteuer beträgt 384,00 € p. a.
Unsere Objektangaben basieren auf den uns erteilten Informationen. Eine Haftung für die Richtigkeit und Vollständigkeit können wir deshalb nicht übernehmen.
Grundriss
Erdgeschoss
>
>
Obergeschoss
>
>
Kellergeschoss
>
>
Adresse
28327 Bremen
Interessante Orte
Preis- und Lageinformationen
Preistrend für Bestandsimmobilien in Blockdiek