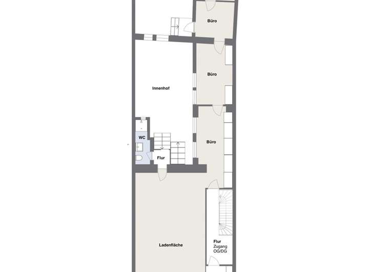
Das Wohn- und Geschäftshaus wurde ca. 1900 im historischen Ortskern von Waldkirch erbaut und erstreckt sich über 3 Geschosse. Es ist teilweise unterkellert und hat einen kleinen, abgeschlossenen Innenhof mit diversen Nebenräumen, die als Lagerflächen dienen. Das zum Haus gehörende Grundstück hat eine Größe von 207 qm, 2 weitere, angrenzende Flurstücke mit insgesamt 112 qm Fläche bieten Parkplatzmöglichkeiten für 3 Fahrzeuge. Die Zufahrt zu den Stellplätzen erfolgt über die Elzstraße.
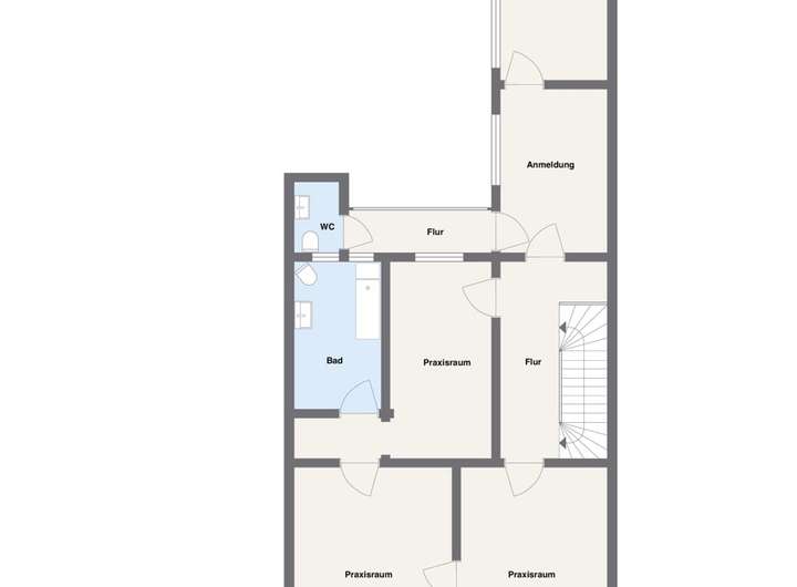
Das gesamte Erdgeschoss war bisher an eine Apotheke vermietet, im Obergeschoss befindet sich seit Jahrzehnten eine Praxis für Physiotherapie, deren Inhaber die Wohnung im Dachgeschoss bewohnt. Die Gewerbefläche im Erdgeschoss hat eine Größe von ca. 131 qm, die Praxisräume im Obergeschoss ca. 90 qm. Die Wohnung im Dachgeschoss besteht aus 2 Zimmern, einem Flur und einer Küche und verfügt über eine Wohnfläche von ca. 47 qm. Der Dachspitz könnte bei Bedarf ausgebaut werden und so zusätzliche Wohnfläche schaffen.
In den letzten Jahren wurden diverse Renovierungen und Sanierungen durchgeführt. Das Obergeschoss erhielt eine neue Gasbrennwerttherme, zur Straßenseite hin wurden Schallschutzfenster eingebaut und die Fußböden der Praxis wurden mit neuen PVC-Belägen in moderner Holzoptik ausgestattet. In den Räumen der ehemaligen Apotheke sorgt eine Klimaanlage für eine optimale Temperaturregulierung.
Durch weitere Modernisierungsmaßnahmen könnten die Gewerbeflächen optimiert und aufgewertet werden und durch angepasste Mieteinnahmen zur Finanzierung der Immobilie beitragen.
Wohn- und Geschäftshaus mit Um- und Ausbaupotential in 79183 Waldkirch
79183 Waldkirch
Die vollständige Adresse der Immobilie erhalten Sie vom Anbieter.
Auf Karte anzeigen
Die vollständige Adresse der Immobilie erhalten Sie vom Anbieter.
Finanzierungszertifikat
In nur zwei Minuten zu Ihrem persönlichen Finanzierungszertifkat.
Infos
| Haustyp | Reihenmittelhaus |
|---|---|
| Wohnfläche ca. | 263 m2 |
| Grundstücksfläche | 319 m2 |
| Bezugsfrei ab | sofort |
| Zimmer | 12 |
| Anzahl Garage/Stellplatz | 3 |
Kosten
| Kaufpreis |
495.000 € |
|---|---|
| Provision |
3,57% inkl. MwSt. Käuferprovision |
Finanzierungsrechner:
Kaufpreis:
600.000 €
Eigenkapital:
600.000 €
Monatliche Rate
0 €
Effektiver Jahreszins
0 %
Sollzinsbindung
10 Jahre
Bausubstanz & Energieausweis
| Baujahr | 1900 |
|---|---|
| Objektzustand | Gepflegt |
| Qualität der Austattung | Normal |
| Heizungsart | Etagenheizung |
| Wesentliche Energieträger | Gas |
| Energieausweis | liegt vor |
| Energieausweistyp | Bedarfsausweis |
| Energieverbrauchskennwert | 321,4 kWh/(m²*a) |
| Energieeffizienzklasse | H |
321,4
kWh/(m²*a)
Energieeffizienzklasse H
- A+
- A
- B
- C
- D
- E
- F
- G
- H
- 0
- 25
- 50
- 75
- 100
- 125
- 150
- 175
- 200
- 225
- >250
Beschreibung des Objekts
Ausstattung
Fußböden:
PVC-Beläge
Fliesen
Holzdielen
Wände:
Putz + Tapeten, gestrichen
Fenster:
2-fach isolierverglast
OG: Schallschutzfenster
außenlaufende Rollos, manuell
teilweise Holz-, teilweise Kunststoffrahmen
Türen:
Holzüren in Holzzargen
Heizung und Warmwasser:
Gas-Brennwerttherme (OG neu in 2022)
Heizkörper mit Thermostatventilen
Lage
Die Große Kreisstadt Waldkirch liegt rund 16 km nordöstlich von Freiburg im Breisgau und 10 km östlich von Emmendingen am Eingang des Elztales und zum touristischen ZweiTälerLand. Die Lage am Fuße des Kandels und die Nähe zum Schwarzwald, dem Markgräfler Land sowie dem Kaiserstuhl ermöglichen das Leben in einer Region, in der andere ihren Urlaub verbringen. Zahlreiche Geschäfte, Gaststätten und Restaurants bieten alle Möglichkeiten für Genuss und Erholung. Ein vielfältiges kulturelles Angebot und umfassende Freizeit- und Sportmöglichkeiten machen die Stadt äußerst lebenswert. Auch die medizinische Versorgung ist vorbildlich. Es gibt Fachärzte, mehrere Apotheken und ein Krankenhaus vor Ort. In der Stadt gibt es eine große Anzahl von Krippen und Kindergärten sowie ein vollständiges Angebot aller Schultypen.
Waldkirch verfügt über optimale Verkehrsanbindungen. Über die B 294 erreicht man rasch und bequem Freiburg bzw. über die A5 Basel, Karlsruhe oder Frankfurt. Ferner ist der Ort Mitglied im REGIO-Verkehrsverbund, welcher mit der Elztalbahn sowie guten Busverbindungen nach Freiburg, Denzlingen, Emmendingen und Offenburg das öffentliche Nahverkehrsangebot umfassend abdeckt. Waldkirch hat derzeit ca. 22.000 Einwohner.
Das Objekt befindet sich im Zentrum der Stadt, nur ca. 3 Gehminuten vom Marktplatz entfernt.
Sonstige Angaben
Interessiert?
Dann vereinbaren Sie am besten noch heute einen Besichtigungstermin mit uns, dem Team Tetik Immobilien! Wir freuen uns über Ihr Interesse an diesem Objekt. Sehr gern zeigen wir Ihnen das Wohn- und Geschäftshaus und beraten Sie in allen Fragen rund um den Erwerb. Wir kümmern uns auch um den Verkauf oder die Vermietung Ihrer bisher genutzten Immobilie.
Alle Angaben zum Objekt erfolgen nach Mitteilung unseres Auftragsgebers. Für die Richtigkeit und Vollständigkeit der Angaben, insbesondere der Flächen und Maße, wird keine Haftung übernommen. Bei Weitergabe an Dritte entsteht Provisionspflicht. Die Käuferprovision beträgt 3,57 % inkl. 19 % MwSt.
Grundriss
WGS_Waldkirch_1401_25
>
>
WGS_Waldkirch_1401_252
>
>
WGS_Waldkirch_1401_253
>
>
Adresse
79183 Waldkirch
Interessante Orte
Preis- und Lageinformationen
Preistrend für Bestandsimmobilien in Waldkirch