Unweit des Stadtzentrums, umgeben von alten Baumbeständen und in unmittelbarer Nähe von Kindergarten und Schulen, befindet sich dieser Familientraum in der Buchholzer Märchensiedlung.
Helle Räume mit großzügigen Fensterfronten und Fußböden mit hellem Laminat oder Fliesen lassen ein einladendes Ambiente entstehen.
Die wertige und moderne Optik wird auch in dem Gäste- und Vollbad weitergeführt.
Eine Fußbodenheizung in den Wohnräumen und Bädern schenkt nicht nur Freiheit in der Gestaltung der Räume, sondern sorgt für ein angenehmes Raumklima.
Eine Alarmanlage garantiert die Sicherheit des Hauses und ein Glasfaser Anschluss mit 300 Mbit/s download vervollständigt dieses Angebot.
110 m² Wohn-/ Nutzfläche in der Märchensiedlung
21244 Buchholz in der Nordheide
Die vollständige Adresse der Immobilie erhalten Sie vom Anbieter.
Auf Karte anzeigen
Die vollständige Adresse der Immobilie erhalten Sie vom Anbieter.
Finanzierungszertifikat
In nur zwei Minuten zu Ihrem persönlichen Finanzierungszertifkat.
Infos
| Haustyp | Reiheneckhaus |
|---|---|
| Etagenzahl | 3 |
| Wohnfläche ca. | 87 m2 |
| Nutzfläche | 22 m2 |
| Grundstücksfläche | 232 m2 |
| Bezugsfrei ab | nach Vereinbarung |
| Zimmer | 4 |
| Schlafzimmer | 3 |
| Badezimmer | 1 |
| Anzahl Garage/Stellplatz | 1 |
Kosten
| Kaufpreis |
510.000 € |
|---|---|
| Provision |
3,57 % inkl. MwSt. |
Finanzierungsrechner:
Kaufpreis:
600.000 €
Eigenkapital:
600.000 €
Monatliche Rate
0 €
Effektiver Jahreszins
0 %
Sollzinsbindung
10 Jahre
Bausubstanz & Energieausweis
| Baujahr | 2004 |
|---|---|
| Bauphase | Haus fertig gestellt |
| Objektzustand | Neuwertig |
| Qualität der Austattung | Gehoben |
| Heizungsart | Fußbodenheizung |
| Wesentliche Energieträger | Gas |
| Energieausweis | liegt vor |
| Energieausweistyp | Bedarfsausweis |
| Energieverbrauchskennwert | 129,5 kWh/(m²*a) |
| Energieeffizienzklasse | D |
129,5
kWh/(m²*a)
Energieeffizienzklasse D
- A+
- A
- B
- C
- D
- E
- F
- G
- H
- 0
- 25
- 50
- 75
- 100
- 125
- 150
- 175
- 200
- 225
- >250
Beschreibung des Objekts
Ausstattung
Dieses Reihenendhaus steht für großzügiges Wohnen, einen modernen Grundriss und charmante Atmosphäre.
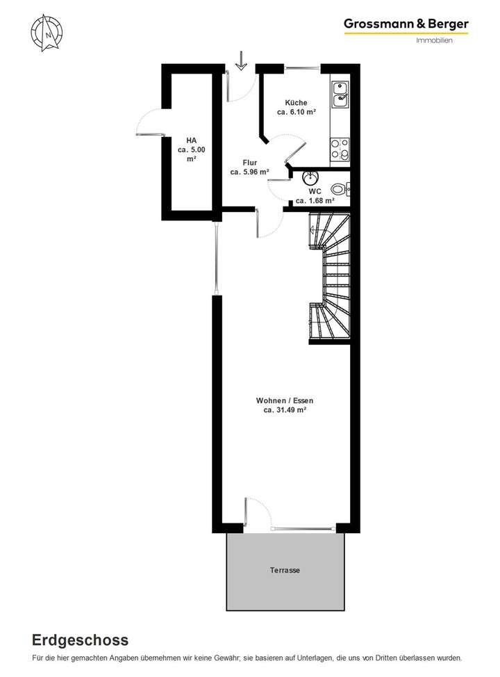
Eine Wohn- und Nutzfläche von ca. 110 m² bieten viel Raum für die Familie. In dem Erdgeschoss stehen ein Wohn- und Esszimmer mit Kaminofen, eine helle Einbauküche und ein modernes Gäste-WC zur Verfügung.
Die Holztreppe, die ein optischer Blickfang ist, führt in das Ober- und Dachgeschoss.
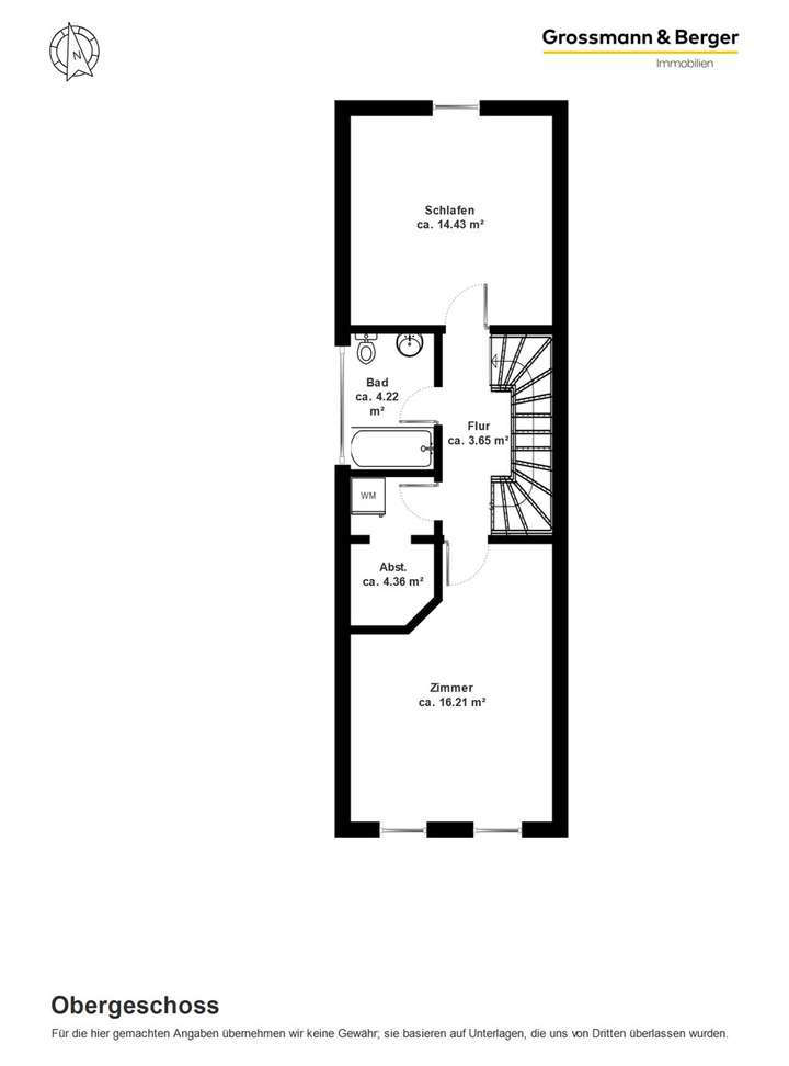
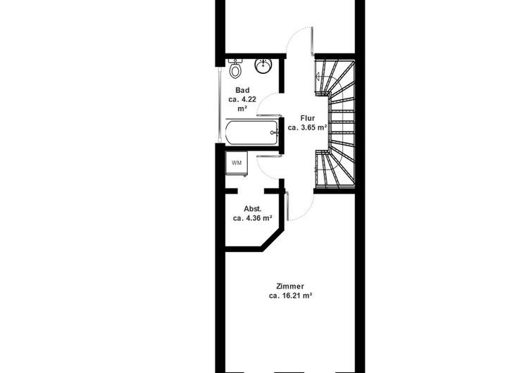
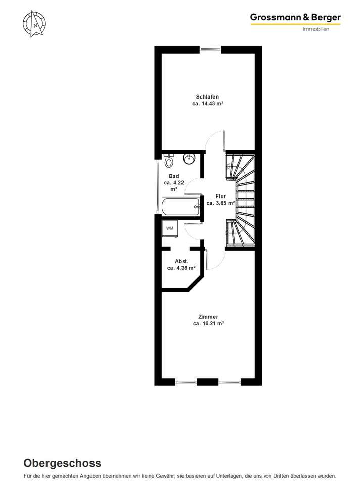
Das Obergeschoss bietet zwei Schlafzimmer, ein Wannenbad und einen Abstellraum mit Waschmaschinenanschluss.
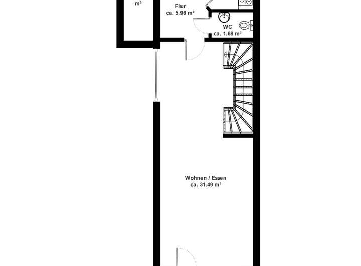
Das Dachgeschoss wurde hochwertig zu einem großen Raum mit ca. 22 m² zur wohnlichen Nutzung ausgebaut.
Aus dem Wohnbereich gelangen Sie über eine großzügige Terrasse mit elektronischer Beschattung in den Garten mit Bewässerungsanlage, welcher mit einem Gartenteich liebevoll hergerichtet worden ist.
Ein kleines Gartenhaus und ein Carport für den Pkw runden das Gesamtpaket ab.
Lage
Buchholz besitzt eine ausgeprägte Infrastruktur mit zahlreichen Einkaufsmöglichkeiten, einem traditionellen Wochenmarkt sowie gemütliche Cafés und Restaurants die zum Schlemmen einladen.
Der Innenstadtbereich mit der "Buchholz Galerie" ist dabei nur ca. 5 Autominuten entfernt und auch gut zu Fuß erreichbar.
In dem unmittelbaren Umfeld befinden sich mehrere Schulen und Kindergärten, die fußläufig zu erreichen sind. Ergänzend hierzu stehen für die Freizeit viele Möglichkeiten wie ein Hallen- und Freibad, Golf- und Tennisplätze, diverse Fitnessstudios sowie eine Kletterhalle zur Verfügung. Wer gerne wandert oder joggt, findet dazu in den Waldgebieten rund um Buchholz oder der wunderschönen Heide viele Gelegenheiten.
Eine schnelle Anbindung an Hamburg ist über den ÖPNV und die A1 sichergestellt. Wer Großstadtluft schnuppern möchte, kann das Zentrum von Hamburg in ca. 25 Minuten mit der Bahn oder in einer halben Stunde mit dem Auto erreichen.
Grundriss
Erdgeschoss
>
>
Obergeschoss
>
>
Dachgeschoss
>
>
Erdgeschoss
>
>
Obergeschoss
>
>
Dachgeschoss
>
>
Adresse
21244 Buchholz in der Nordheide
Interessante Orte
Preis- und Lageinformationen
Preistrend für Bestandsimmobilien in Buchholz in der Nordheide