Highlights im Überblick:
+ Zentrale Lage mit guter Anbindung und ruhigem Wohnumfeld
+ ca. 145,23 m² Wohnfläche
+ Zwei separate Wohneinheiten – flexibel nutzbar für Eigennutzer, Mehrgenerationen oder Kapitalanleger
+ Zwei Garagen mit zusätzlicher Abstellfläche – ideal für Fahrzeuge, Werkstatt oder Hobbybereich
+ Garten mit Potenzial – ideal als Nutzgarten oder Rückzugsort im Grünen
+ Dachgeschoss mit Ausbaupotenzial
Suchen Sie ein vielseitig nutzbares Zweifamilienhaus mit Potenzial, zwei Garagen und attraktivem Garten in zentraler Lage von Püttlingen? Diese geräumige Doppelhaushälfte in Püttlingen überzeugt durch ihre vielseitige Nutzungsmöglichkeit und solide Grundstruktur. Mit einer Wohnfläche von rund 145,23 m² und zwei getrennten Wohneinheiten bietet das Haus ideale Voraussetzungen sowohl für Mehrgenerationenwohnen als auch für Vermietung oder Eigennutzung mit zusätzlicher Einnahmequelle.
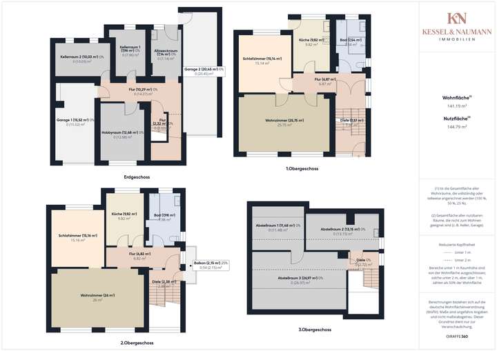
Die Immobilie wurde in klassischer Bauweise errichtet und erstreckt sich über drei Etagen. Im ersten Obergeschoss befindet sich eine gepflegte Wohnung mit Wohnzimmer, Schlafzimmer, Küche und Badezimmer. Große Fensterflächen sorgen für ein angenehmes Raumgefühl und viel Tageslicht.
Das zweite Obergeschoss bietet eine weitere Wohneinheit mit ähnlicher Aufteilung, inklusive Balkon – ideal für erwachsene Kinder, Eltern oder Mieter.
Das Erdgeschoss umfasst neben den beiden Garagen mehrere Kellerräume, einen Hobbyraum und einen Allzweckraum – perfekt für handwerklich Begabte oder zur zusätzlichen Nutzung als Werkstatt oder Lager.
Der Garten ist gepflegt, bietet aber zugleich viel Potenzial zur Neugestaltung: Ob Nutzgarten, Spielbereich oder gemütliche Terrasse – hier lässt sich ein individuelles Gartenkonzept verwirklichen.
Aufteilung der Wohnfläche/Nutzfläche:
Erdgeschoss (Keller):
+ 2 Garagen
+ Hobbyraum
+ Allzweckraum
+ Kellerräume
1. Obergeschoss:
+ Wohnzimmer
+ Schlafzimmer
+ Küche
+ Badezimmer
2. Obergeschoss:
+ Wohnzimmer
+ Schlafzimmer
+ Küche
+ Badezimmer
+ Balkon
Dachgeschoss:
+ Drei Abstellräume mit zusätzlicher Nutzfläche und Ausbaupotenzial
Ein Haus mit viel Potenzial, solider Substanz und vielseitiger Nutzungsmöglichkeit: Ob Mehrgenerationenwohnen, Vermietung oder Selbstnutzung mit Ausbauoption – diese Doppelhaushälfte bietet die Grundlage für individuelle Wohnideen in attraktiver Lage von Püttlingen.
Vereinbaren Sie gerne einen Besichtigungstermin und entdecken Sie die Möglichkeiten, die dieses Haus Ihnen bietet.
Vielseitiges Zweifamilienhaus mit großem Potenzial in zentraler Lage von Püttlingen!
66346 Püttlingen
Die vollständige Adresse der Immobilie erhalten Sie vom Anbieter.
Auf Karte anzeigen
Die vollständige Adresse der Immobilie erhalten Sie vom Anbieter.
Finanzierungszertifikat
In nur zwei Minuten zu Ihrem persönlichen Finanzierungszertifkat.
Infos
| Haustyp | Sonstige |
|---|---|
| Etagenzahl | 3 |
| Wohnfläche ca. | 145 m2 |
| Grundstücksfläche | 383 m2 |
| Zimmer | 4 |
| Schlafzimmer | 2 |
| Badezimmer | 2 |
| Garage/Stellplatz | Garage |
| Anzahl Garage/Stellplatz | 2 |
Kosten
| Kaufpreis |
170.000 € |
|---|---|
| Provision |
2,75% zzgl. der gesetzlich gültigen MwSt. Die Höhe unserer Courtage richtet sich nach den ab 23.12.2020 in Kraft getretenen gesetzlichen Regelungen zur Teilung der Maklercourtage. Hiernach wird die Courtage für beide Parteien (Eigentümer und Käufer) in Höhe von 2,75% zuzüglich Umsatzsteuer in jeweils gleicher Höhe, bei notariellem Vertragsabschluss verdient und fällig. Die Höhe der Bruttocourtage unterliegt einer Anpassung bei Steuersatzänderung. |
Finanzierungsrechner:
Kaufpreis:
600.000 €
Eigenkapital:
600.000 €
Monatliche Rate
0 €
Effektiver Jahreszins
0 %
Sollzinsbindung
10 Jahre
Bausubstanz & Energieausweis
| Baujahr | 1965 |
|---|---|
| Letzte Sanierung | 2007 |
| Objektzustand | Renovierungsbedürftig |
| Qualität der Austattung | Einfach |
| Heizungsart | Gas-Heizung |
| Wesentliche Energieträger | Gas |
| Energieausweis | liegt vor |
| Energieausweistyp | Bedarfsausweis |
| Energieverbrauchskennwert | 248,8 kWh/(m²*a) |
| Energieeffizienzklasse | G |
248,8
kWh/(m²*a)
Energieeffizienzklasse G
- A+
- A
- B
- C
- D
- E
- F
- G
- H
- 0
- 25
- 50
- 75
- 100
- 125
- 150
- 175
- 200
- 225
- >250
Beschreibung des Objekts
Ausstattung
Die nachfolgenden Angaben basieren auf Aussagen der Eigentümer und wurden tlw. geschätzt. Für die Richtigkeit der Angaben wird weder von dem Eigentümer noch von der Firma Kessel & Naumann Immobilien Haftung übernommen.
Elektrik: 1965
Heizung: 2006/2007 (Gas-Heizung), Leitungen bereits bis zum 2. OG gezogen, jedoch wird derzeit nur der Keller und das 1. OG entsprechend geheizt. 2. OG derzeit noch mit Öl-Öfen. DG nur über Strom.
Fenster: 1989 (1. OG Holzfenster doppelverglast), 1991 (2. OG), 1983 (DG Dachfenster), 1990 (Haustür)
Bäder: 2006 (1. OG), 1965 (2. OG)
Dach: 1999 (inkl. Bastmattendämmung)
Wasserleitungen: 1965, 2006 (im Badezimmer)
Sonstiges: 1983 (Wärmedämmung, Seite rechts, Eternitplatten, gedämmt und beschichtet)
Lage
Allgemein:
Püttlingen liegt im Westen des Saarlandes und gehört zum Regionalverband Saarbrücken. Die Stadt verbindet naturnahes Wohnen mit einer lebendigen Gemeinschaft und guter Infrastruktur. Mit ihren charmanten Ortsteilen Püttlingen-Köllerbach und Püttlingen-Stadtmitte bietet sie eine gelungene Mischung aus städtischem Komfort und ruhigem Wohnumfeld. Die grüne Umgebung mit Wäldern und Bachtälern schafft ein angenehmes Wohnklima, das besonders Familien, Berufspendler und Ruhesuchende anspricht.
Infrastruktur:
Die Verkehrsanbindung ist hervorragend: Über die Autobahn A620 und Autobahn A8 sind Städte wie Saarbrücken, Völklingen und Saarlouis in kurzer Zeit erreichbar. Mehrere Buslinien sorgen für eine gute Anbindung an den regionalen Nahverkehr. Zahlreiche Einkaufsmöglichkeiten, Supermärkte, Apotheken, Banken, Restaurants und Cafés befinden sich direkt vor Ort und machen den Alltag besonders komfortabel.
Bildung und Wirtschaft:
Für Familien mit Kindern bietet Püttlingen ein umfassendes Angebot an Kindertagesstätten, Grundschulen und eine Gemeinschaftsschule. Weiterführende Schulen, wie Gymnasien und berufliche Schulen, sind in den Nachbarstädten schnell erreichbar. Die Stadt ist zudem Standort zahlreicher mittelständischer Unternehmen, Handwerksbetriebe und Dienstleister und profitiert von der Nähe zu den industriestarken Zentren Völklingen, Saarbrücken und Saarlouis.
Sport und Freizeit:
Püttlingen bietet vielfältige Freizeit- und Erholungsmöglichkeiten. Die waldreiche Umgebung lädt zu Spaziergängen, Wanderungen und Radtouren ein. Zahlreiche Sportvereine, Tennis- und Fußballplätze, ein Hallenbad sowie kulturelle Veranstaltungen wie Stadtfeste, Konzerte und Theateraufführungen sorgen für Abwechslung und eine hohe Lebensqualität.
Medizinische Versorgung:
Die medizinische Versorgung ist gut ausgebaut. Neben mehreren Haus- und Fachärzten sowie Apotheken befindet sich mit dem Knappschaftsklinikum Püttlingen ein modernes Krankenhaus direkt vor Ort. Weitere Kliniken und Spezialzentren sind in Saarbrücken und Völklingen schnell erreichbar und gewährleisten eine umfassende Gesundheitsversorgung.
Grundriss
Erdgeschoss (Keller)
>
>
1. Obergeschoss
>
>
2. Obergeschoss
>
>
Dachgeschoss
>
>
Gesamtüberblick
>
>
Adresse
66346 Püttlingen
Interessante Orte
Preis- und Lageinformationen
Preistrend für Bestandsimmobilien in Püttlingen