Auf einem großzügigen Grundstück von rund 820 m² befindet sich dieser sanierungsbedürftige Bungalow mit einer Wohnfläche von etwa 129 m².
Das Gebäude überzeugt durch eine solide Bausubstanz und bietet vielfältige Möglichkeiten zur individuellen Modernisierung und Gestaltung.
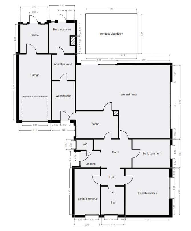
Die gesamte Wohnfläche befindet sich auf einer Ebene. Vom Eingangsbereich gelangt man, vorbei am Gäste-WC, in die großzügig geschnittene Küche. Der Wohn- und Essbereich ist räumlich getrennt und dank des direkten Zugangs zum Freisitz hell und freundlich gestaltet. Zwei Schlafzimmer sowie ein Badezimmer mit Dusche und Badewanne komplettieren das Raumangebot. Der Dachboden dient als zusätzlicher Stauraum.
Der Garten lädt an sonnigen Tagen zum Verweilen ein - die ruhige, zugleich aber zentrale Lage macht das Objekt zu einem attraktiven Rückzugsort mit Potenzial.
Das Objekt ist derzeit bis zum 31.12.2025 vermietet und wird mietfrei übergeben. Innenaufnahmen liegen auf Wunsch der Mieter nicht vor.
Ihr neues Projekt in Westerstede: Bungalow mit Potenzial in ruhiger Zentrumslage!
26655 Westerstede
Die vollständige Adresse der Immobilie erhalten Sie vom Anbieter.
Auf Karte anzeigen
Die vollständige Adresse der Immobilie erhalten Sie vom Anbieter.
Finanzierungszertifikat
In nur zwei Minuten zu Ihrem persönlichen Finanzierungszertifkat.
Infos
| Haustyp | Einfamilienhaus |
|---|---|
| Wohnfläche ca. | 129 m2 |
| Grundstücksfläche | 820 m2 |
| Zimmer | 4 |
| Schlafzimmer | 2 |
| Badezimmer | 1 |
| Garage/Stellplatz | Garage |
| Anzahl Garage/Stellplatz | 1 |
Kosten
| Kaufpreis |
259.000 € |
|---|---|
| Provision | Nein |
Finanzierungsrechner:
Kaufpreis:
600.000 €
Eigenkapital:
600.000 €
Monatliche Rate
0 €
Effektiver Jahreszins
0 %
Sollzinsbindung
10 Jahre
Bausubstanz & Energieausweis
| Baujahr | 1975 |
|---|---|
| Wesentliche Energieträger | Erdgas leicht |
| Energieausweis | liegt vor |
| Energieausweistyp | Verbrauchsausweis |
| Energieverbrauchskennwert | 136,0 kWh/(m²*a) |
Beschreibung des Objekts
Ausstattung
- Massivbauweise mit Verblender
- Zeltdach mit Betonpfalzziegeln
- Bodenbeläge: Fliesen, Vinyl, Teppich
- Kunststofffenster mit doppelter Isolierverglasung, ca. 80er Jahre
- Außenrollläden
- Gas-Zentralheizung, Bj. 2005, Fabrikat: Brötje
- Innen- und Außenkamin
- Erneuerung Garagentor
Aufteilung:
- Flur 1
- Gäste WC
- Küche
- Waschküche
- Abstellraum
- Heizungsraum
- Wohnzimmer
- Schlafzimmer 1
- Flur 2
- Schlafzimmer 2
- Badezimmer
- Schlafzimmer 3
Sonstiges:
- Garage
- Geräteraum
- Dachboden
- überdachte Terrasse
Lage
Die Lage des Objektes ist optimal: Sehr zentral in Westerstede und doch ruhig. Einkaufsöglichkeiten sowie die Westersteder Innenstadt und sämtliche, alltägliche Einrichtungen sind fußläufig erreichbar. Ärzte, Schulen und Parks befinden sich ebenfalls in unmittelbarer Nähe und Anbindungen an die öffentlichen Verkehrsmittel sind gegeben. Generell überzeugt Westerstede mit einer guten Infrastruktur. Die verkehrsgünstige Lage sorgt dafür, dass die Innenstadt von Westerstede ebenso wie die umliegenden Ortschaften bequem erreichbar sind. Dank der guten Anbindung an die Autobahnen sind auch weitere Städte in der Umgebung leicht zugänglich.
Grundriss
Grundriss
>
>
Adresse
26655 Westerstede
Interessante Orte
Preis- und Lageinformationen
Preistrend für Bestandsimmobilien in Westerstede