Willkommen in einem Haus mit viel Potenzial: Dieses großzügige Einfamilienhaus aus dem Jahr 1967 bietet mit einer Wohnfläche von etwa 238 m² und einer Grundstücksgröße von ca. 824 m² eine Vielzahl an Möglichkeiten zur individuellen Gestaltung.
Ob als klassisches Einfamilienhaus oder dank der guten Raumaufteilung auch als Zweifamilienhaus – hier können verschiedenste Wohnkonzepte realisiert werden.
Die Immobilie befindet sich in einer gewachsenen Wohngegend, die Familien wie auch Paaren und Mehrgenerationenhaushalten ein angenehmes, durchgrüntes Umfeld bietet. Die Umgebung zeichnet sich durch eine gute Erreichbarkeit aller wichtigen Einrichtungen des täglichen Bedarfs aus – Einkaufsmöglichkeiten, Schulen, Kindergärten sowie medizinische Versorgung sind in wenigen Minuten erreichbar. Eine Anbindung an den öffentlichen Nahverkehr sowie die Nähe zu wichtigen Verkehrsanbindungen runden die Lage ab.
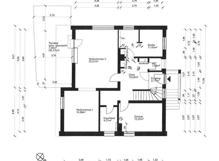
Das Haus selbst ist renovierungsbedürftig und bietet Ihnen die Chance, Ihre eigenen Vorstellungen und Ideen umzusetzen. Die großzügige Raumaufteilung erstreckt sich über insgesamt 8 Zimmer, darunter 4 ansprechend geschnittene Schlafzimmer. Zwei separate Badezimmer gewährleisten einen angenehmen und reibungslosen Alltag – insbesondere für größere Familien oder Wohngemeinschaften ein wichtiger Pluspunkt. Der zentrale Wohn- und Essbereich kann vielseitig genutzt und individuell gestaltet werden.
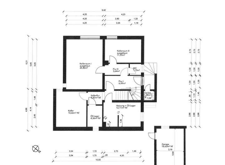
Ein besonderes Merkmal ist der vollständig unterkellerte Bereich, welcher zusätzlichen Stauraum sowie vielfältige Nutzungsmöglichkeiten bietet – von der Waschküche über den Hobbyraum bis hin zu Vorrats- oder Abstellflächen. Überdies gehört eine geräumige Garage zum Haus, sodass der sichere und wettergeschützte Stellplatz für Ihr Fahrzeug bereits gegeben ist.
Das Grundstück überzeugt mit einer angenehmen Größe und bietet neben einer großzügigen Gartenfläche Platz für Erholung, Spiel und gemeinsame Aktivitäten im Freien. Auch für Gartenfreunde eröffnet sich hier viel Raum, eigene Ideen zu verwirklichen. So lässt sich das Außenareal vielseitig nutzen, sei es für ein Gemüsebeet, einen Sitzbereich oder als Spielwiese für Kinder.
Die Beheizung erfolgt aktuell über eine zuverlässige Zentralheizung. Das gesamte Haus zeigt sich in einem Zustand, der zukünftigen Eigentümern ermöglicht, gewünschte Modernisierungen nach eigenem Geschmack durchzuführen. Hierbei könnte ein Fokus auf energetische Sanierung, moderne Raumkonzepte und eine individuelle Anpassung der Ausstattung gelegt werden.
Ob als großzügiges Zuhause für die Familie, Mehrgenerationenlösung oder zur Nutzung als Zweifamilienhaus – diese Immobilie bietet vielfältige Perspektiven. Nutzen Sie die Gelegenheit, dieses Haus nach Ihren Vorstellungen zu erneuern.
Gerne stehen wir Ihnen für weitere Informationen oder zur Vereinbarung eines Besichtigungstermins zur Verfügung. Wir freuen uns auf Ihre Anfrage!
Ihr neues Zuhause mit vielfältigen Gestaltungsmöglichkeiten!
31275 Lehrte
Die vollständige Adresse der Immobilie erhalten Sie vom Anbieter.
Auf Karte anzeigen
Die vollständige Adresse der Immobilie erhalten Sie vom Anbieter.
Finanzierungszertifikat
In nur zwei Minuten zu Ihrem persönlichen Finanzierungszertifkat.
Infos
| Haustyp | Einfamilienhaus |
|---|---|
| Wohnfläche ca. | 238 m2 |
| Nutzfläche | 57 m2 |
| Grundstücksfläche | 824 m2 |
| Zimmer | 8 |
| Schlafzimmer | 4 |
| Badezimmer | 2 |
Kosten
| Kaufpreis |
339.000 € |
|---|---|
| Provision |
Käuferprovision beträgt 3,57 % (inkl. MwSt.) des beurkundeten Kaufpreises |
Finanzierungsrechner:
Kaufpreis:
600.000 €
Eigenkapital:
600.000 €
Monatliche Rate
0 €
Effektiver Jahreszins
0 %
Sollzinsbindung
10 Jahre
Bausubstanz & Energieausweis
| Baujahr | 1964 |
|---|---|
| Bauphase | Haus fertig gestellt |
| Objektzustand | Renovierungsbedürftig |
| Heizungsart | Zentralheizung |
| Wesentliche Energieträger | Öl |
| Energieausweis | liegt vor |
| Energieausweistyp | Bedarfsausweis |
| Energieverbrauchskennwert | 242,2 kWh/(m²*a) |
| Energieeffizienzklasse | G |
242,2
kWh/(m²*a)
Energieeffizienzklasse G
- A+
- A
- B
- C
- D
- E
- F
- G
- H
- 0
- 25
- 50
- 75
- 100
- 125
- 150
- 175
- 200
- 225
- >250
Beschreibung des Objekts
Ausstattung
- Grundstück: ca. 824 m²
- Wohnfläche: ca. 238 m²
- voll unterkellert
- als 2- Familienhaus nutzbar
- Garage
Lage
Arpke ist ein charmant gelegener Stadtteil von Lehrte, der ländliche Idylle mit urbaner Nähe verbindet. Umgeben von viel Grün genießen Sie hier eine ruhige Wohnatmosphäre – ohne auf eine gute Infrastruktur verzichten zu müssen.
Alles, was Sie im Alltag brauchen, ist schnell erreichbar: Kindergärten, Schulen, Einkaufsmöglichkeiten sowie zahlreiche Freizeit- und Sportangebote – von gut ausgebauten Radwegen bis hin zu aktiven Sportvereinen.
Auch verkehrstechnisch ist Arpke bestens angebunden: Die Autobahn A2 ist in wenigen Minuten erreichbar, der Bahnhof Lehrte bietet schnelle Verbindungen in Richtung Hannover und darüber hinaus. Ideal für Berufspendler und alle, die flexibel unterwegs sein möchten.
Fazit: Arpke ist ein attraktiver Wohnort für Familien, Naturliebhaber und Pendler gleichermaßen – mit viel Lebensqualität in grüner Umgebung und direkter Nähe zur Stadt.
Sonstige Angaben
GELDWÄSCHE: Als Immobilienmaklerunternehmen ist die von Poll Immobilien GmbH nach § 2 Abs. 1 Nr. 14 und § 11 Abs. 1, 2 Geldwäschegesetz (GwG) dazu verpflichtet, bei der Begründung einer Geschäftsbeziehung die Identität des Vertragspartners festzustellen und zu überprüfen, bzw. sobald ein ernsthaftes Interesse an der Durchführung des Immobilienkaufvertrages besteht. Hierzu ist es erforderlich, dass wir nach § 11 Abs. 4 GwG die relevanten Daten Ihres Personalausweises festhalten (wenn Sie als natürliche Person handeln) – beispielsweise mittels einer Kopie. Bei einer juristischen Person benötigen wir eine Kopie des Handelsregisterauszugs, aus welchem der wirtschaftlich Berechtigte hervorgeht. Das Geldwäschegesetz sieht vor, dass der Makler die Kopien bzw. Unterlagen fünf Jahre aufbewahren muss. Als unser Vertragspartner haben Sie auch eine Mitwirkungspflicht nach § 11 Abs. 6 GwG.
HAFTUNG: Wir weisen darauf hin, dass die von uns weitergegebenen Objektinformationen, Unterlagen, Pläne etc. vom Verkäufer bzw. Vermieter stammen. Eine Haftung für die Richtigkeit oder Vollständigkeit der Angaben übernehmen wir daher nicht. Es obliegt daher unseren Kunden, die darin enthaltenen Objektinformationen und Angaben auf ihre Richtigkeit hin zu überprüfen. Alle Immobilienangebote sind freibleibend und vorbehaltlich Irrtümer, Zwischenverkauf- und Vermietung oder sonstiger Zwischenverwertung.
UNSER SERVICE FÜR SIE ALS EIGENTÜMER:
Planen Sie den Verkauf oder die Vermietung Ihrer Immobilie, so ist es für Sie wichtig, deren Marktwert zu kennen. Lassen Sie kostenfrei und unverbindlich den aktuellen Wert Ihrer Immobilie professionell durch einen unserer Immobilienspezialisten einschätzen. Unser bundesweites und internationales Netzwerk ermöglicht es uns, Verkäufer bzw. Vermieter und Interessenten bestmöglich zusammenzuführen.
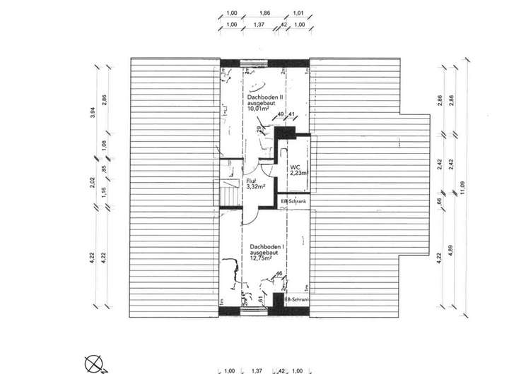
Grundriss
Grundriss EG
>
>
Grundriss OG
>
>
Grundriss DG
>
>
Grundriss Keller
>
>
Adresse
31275 Lehrte
Interessante Orte
Preis- und Lageinformationen
Preistrend für Bestandsimmobilien in Lehrte