Dieses moderne Einfamilienhaus wurde im Jahr 2020 erbaut und bietet auf rund 174 m² Wohnfläche ein komfortables Zuhause für die ganze Familie. Mit insgesamt vier Zimmern und einem durchdachten Grundriss verbindet die Immobilie zeitgemäße Ausstattung mit einer angenehmen Wohnatmosphäre.
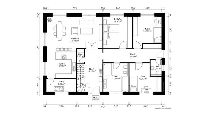
Der Eingangsbereich führt Sie in die helle und modern ausgestattete Küche, die mit hochwertigen Geräten und viel Arbeitsfläche überzeugt. Der offene Wohn- und Essbereich bietet viel Platz für gemeinsame Mahlzeiten und entspannte Stunden. Große Fensterfronten sorgen für eine freundliche, lichtdurchflutete Atmosphäre.
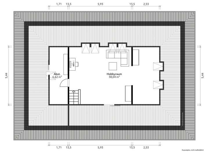
Das Badezimmer befindet sich im Erdgeschoss und ist mit einer Badewanne, einer separaten Dusche sowie modernem Interieur ausgestattet. Im Obergeschoss erwartet Sie ein großzügiges Dachstudio, das sich flexibel als Kinder- oder Arbeitszimmer, Hobbyfläche oder Gästezimmer nutzen lässt.
Auch im Außenbereich bietet das Haus zahlreiche Vorzüge: Ein Doppelcarport und zusätzliche Stellplätze im Freien gewährleisten ausreichend Platz für Fahrzeuge. Der gepflegte Garten wird durch eine Terrasse und einen Wintergarten ergänzt und schafft so zusätzlichen Wohnkomfort im Sommer wie im Winter. Gartengeräte und Werkzeuge können im praktischen Geräteschuppen untergebracht werden.
Das Grundstück umfasst 828 m² und bietet viel Raum für Spiel, Freizeit oder weitere Gestaltungsideen.
Der neuwertige Zustand, die gelungene Raumaufteilung und die ruhige Lage in Artlenburg machen dieses Einfamilienhaus zu einem attraktiven Angebot für Familien, die modernes Wohnen in einer freundlichen Umgebung suchen. Weitere Informationen erhalten Sie gern telefonisch oder bei einer Besichtigung.
Modernes Einfamilienhaus in schöner Lage von Artlenburg!
21380 Artlenburg
Die vollständige Adresse der Immobilie erhalten Sie vom Anbieter.
Auf Karte anzeigen
Die vollständige Adresse der Immobilie erhalten Sie vom Anbieter.
Finanzierungszertifikat
In nur zwei Minuten zu Ihrem persönlichen Finanzierungszertifkat.
Infos
| Haustyp | Einfamilienhaus |
|---|---|
| Wohnfläche ca. | 174 m2 |
| Grundstücksfläche | 828 m2 |
| Zimmer | 5 |
| Garage/Stellplatz | Carport |
| Anzahl Garage/Stellplatz | 2 |
Kosten
| Kaufpreis |
697.000 € |
|---|---|
| Provision |
3,57 % inkl. MwSt. |
Finanzierungsrechner:
Kaufpreis:
600.000 €
Eigenkapital:
600.000 €
Monatliche Rate
0 €
Effektiver Jahreszins
0 %
Sollzinsbindung
10 Jahre
Bausubstanz & Energieausweis
| Baujahr | 2020 |
|---|---|
| Objektzustand | Gepflegt |
| Heizungsart | Zentralheizung |
| Wesentliche Energieträger | Gas |
| Energieausweis | liegt vor |
| Energieausweistyp | Verbrauchsausweis |
| Energieverbrauchskennwert | 60,1 kWh/(m²*a) |
| Energieeffizienzklasse | B |
60,1
kWh/(m²*a)
Energieeffizienzklasse B
- A+
- A
- B
- C
- D
- E
- F
- G
- H
- 0
- 25
- 50
- 75
- 100
- 125
- 150
- 175
- 200
- 225
- >250
Beschreibung des Objekts
Lage
Das wunderschöne Artlenburg liegt westlich des Naturparks Elbufer-Drawehn direkt an der Elbe. In Artlenburg zweigt der Elbe-Seitenkanal von der Elbe ab und bildet eine eigentümliche Umgebung, welche vielerlei Tieren und Pflanzen ein Zuhause gibt. Diese Umgebung lädt insbesondere zu Radtouren und anderen Freizeitaktivitäten im Naherholungsgebiet ein. Historisch hat Artlenburg einiges zu bieten. Die gegenüberliegende Ruine markiert den ehemaligen Übergang der Alten Salzstraße Lüneburg – Lübeck.
Grundriss
Grundriss EG
>
>
Grundriss DG
>
>
Adresse
21380 Artlenburg
Interessante Orte
Preis- und Lageinformationen
Preistrend für Bestandsimmobilien in Artlenburg