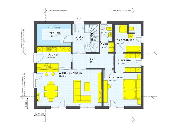
Dieses beeindruckende Einfamilienhaus mit klassischem Satteldach besticht durch Eleganz und Funktionalität. Mit einer großzügigen Wohnfläche von 210 Quadratmetern und einer durchdachten Aufteilung auf zwei Etagen bietet es genügend Raum für dein zukünftiges Zuhause. Die sechs Zimmer, darunter drei gemütliche Schlafzimmer und zwei moderne Badezimmer, sind perfekt auf deine Bedürfnisse abgestimmt. Die zwei Zwerchgiebel im Obergeschoss maximieren die Raumhöhe und sorgen für ein helles, freundliches Ambiente, in dem du dich sofort wohlfühlen wirst.
LivingHaus bietet dir mit diesem Projekt die Möglichkeit, dein Haus nach deinen Wünschen und Vorstellungen zu gestalten. Die hochwertige Traumküche wird speziell auf deinen Grundriss zugeschnitten, ausgestattet mit modernster Technik und durchdachten Stauraumlösungen, sodass du sofort nach dem Einzug mit dem Kochen beginnen kannst.
Das Living Haus Bau-Cockpit ermöglicht es dir, dein Bauprojekt einfach und stressfrei zu verfolgen. Mit der App behältst du jederzeit den Überblick über Zeitpläne und Dokumente.
Mit dem I-KON Konzept wird dein Zuhause nicht nur energieeffizient, sondern auch nachhaltig. Dieses Effizienzhaus benötigt nur 55 % der Energie eines Standardhauses, sodass du umweltfreundlich wohnen kannst.
Das Zuhause-Darlehen bietet dir attraktive Finanzierungsmöglichkeiten mit besonders günstigen Zinssätzen, während das Zuhause-Paket deinem Haus eine hochwertige Grundausstattung verleiht. Von modernen Böden über stilvolle Sanitäranlagen bis hin zu edlen Türen - alles perfekt aufeinander abgestimmt.
Und wenn du den Innenausbau selbst in die Hand nehmen möchtest, bietet dir das DIY-Ausbau-Coaching in nur drei Tagen wertvolle Tipps und Unterstützung von Experten, sodass du zum Profi in deinem eigenen Zuhause wirst.
LivingHaus sorgt mit einem durchdachten Gesamtkonzept dafür, dass dein Traumhaus nicht nur sicher, sondern auch individuell auf dich zugeschnitten realisiert wird.
Dein individuelles LivingHaus: Maßgeschneiderter Wohntraum in Papenburg
26871 Papenburg
Die vollständige Adresse der Immobilie erhalten Sie vom Anbieter.
Auf Karte anzeigen
Die vollständige Adresse der Immobilie erhalten Sie vom Anbieter.
Finanzierungszertifikat
In nur zwei Minuten zu Ihrem persönlichen Finanzierungszertifkat.
Infos
| Haustyp | Einfamilienhaus |
|---|---|
| Etagenzahl | 2 |
| Wohnfläche ca. | 210 m2 |
| Nutzfläche | 210 m2 |
| Grundstücksfläche | 471 m2 |
| Zimmer | 6 |
| Schlafzimmer | 3 |
| Badezimmer | 2 |
Kosten
| Kaufpreis |
673.005 € |
|---|
Finanzierungsrechner:
Kaufpreis:
600.000 €
Eigenkapital:
600.000 €
Monatliche Rate
0 €
Effektiver Jahreszins
0 %
Sollzinsbindung
10 Jahre
Bausubstanz & Energieausweis
| Baujahr | unbekannt |
|---|---|
| Bauphase | Haus in Planung (projektiert) |
| Qualität der Austattung | Gehoben |
Beschreibung des Objekts
Ausstattung
Dein zukünftiges Zuhause wird mit einer Vielzahl von hochwertigen Ausstattungsmerkmalen versehen. Dazu gehören moderne, langlebige Böden, edle Türen und stilvolle Sanitäranlagen, die allesamt optimal aufeinander abgestimmt sind. Die hochwertige Traumküche von Living Haus wird speziell auf deinen Grundriss zugeschnitten und bietet dir die neueste Technik sowie clevere Stauraumlösungen. Die integrierte I-KON-Lösung sorgt für eine energieeffiziente Bauweise, während das Zuhause-Paket dir eine erstklassige Grundausstattung bietet. Mit dem DIY-Ausbau-Coaching wirst du zum Meister deines eigenen Innenausbaus. Diese Ausstattung macht dein Fertighaus zu einem ganz persönlichen Wohntraum - »Wie ich es will Fertighaus«.
Lage
Papenburg ist nicht nur bekannt für seine maritime Geschichte, sondern bietet auch eine hervorragende Lebensqualität für Familien, Naturliebhaber und Pendler. In der Umgebung findest du zahlreiche Einrichtungen für Bildung, darunter mehrere gut bewertete Kindergärten und Schulen. Die Grundschule an der Dammstraße und das Gymnasium Papenburg sind besonders empfehlenswert.
Für den täglichen Einkauf stehen dir zahlreiche Supermärkte zur Verfügung, darunter ein großer Edeka und ein Aldi, beide nur wenige Minuten entfernt. Auch Ärzte und Apotheken sind in der Nähe und bieten eine hervorragende medizinische Versorgung.
Die Freizeitmöglichkeiten sind vielfältig: Vom wunderschönen Park an der Ems bis hin zu zahlreichen Sportstätten und Freizeitangeboten - hier ist für jeden etwas dabei. Die Anbindung an den öffentlichen Nahverkehr ist optimal, sodass du schnell in die umliegenden Städte gelangst. Die Autobahn A31 ist ebenfalls nur wenige Fahrminuten entfernt und ermöglicht dir eine schnelle Verbindung zu den größeren Städten in der Region. Papenburg ist somit ein idealer Ort für Familien und Pendler, die eine gute Balance zwischen ruhigem Wohnen und urbanem Leben suchen.
Sonstige Angaben
Der Grundstückspreis ist im Anzeigenpreis bereits enthalten.
Das Grundstück erwerben Sie direkt vom Eigentümer über einen Makler.
Ein Träumchen an Grundstück. :-)
Heimkommen - ankommen - herunterkommen - wohlfühlen
Vereinbaren Sie gleich Ihren persönlichen Beratungstermin und sichern Sie sich Ihrer Familie ein geniales Bauland für Ihr neues Zuhause mit Living Haus.
Jedoch bitte ich zu berücksichtigen:
Ich baue mit sehr viel Herz und Kompetenz Häuser. Im Interesse der jeweiligen Grundstückseigentümer sowie meiner Bauherren werde ich ohne ein persönliches Gespräch zum Thema Hausbau nie irgendwelche Grundstücksdaten weiterleiten. Keine Ausnahmen an dieser Stelle.
Und... natürlich ist es mir selbst mit bestem Willen nicht möglich, eine dauerhafte Verfügbarkeit der Grundstücke zu garantieren. Es gibt jedes Grundstück halt nur einmal - Leider.
Kennen Sie schon den Living Haus Beratungsservice? Nein? Dann rufen Sie uns an und wir stimmen einen kostenlosen persönlichen Termin ab. Ihr Wohl liegt uns am Herzen.
Die Architektenleistungen sind bereits enthalten.
Für die gesamte Bauphase und darüber hinaus ist Ihr Projekt versichert, diese Leistungen sind im Preis bereits inbegriffen. Fragen Sie Ihren Berater.
Das Grundstück wird über einen anderen Anbieter verkauft. Keine Gewähr auf Angaben. Der Preis versteht sich zzgl. Erwerbs und Baunebenkosten. Änderungen des Preises oder der Ausstattungen sowie Irrtümer oder Zwischenverkauf sind vorbehalten. Abbildungen und Grundrisse können Extras zeigen, die nicht im Angebot enthalten sind. Alle Angaben nach bestem Wissen und Gewissen, jedoch ohne Gewähr.
Finanzierungsberater stehen bei uns kostenlos zu Ihrer persönlichen Beratung bereit.
Wir laden Sie gerne zu einem persönlichen Gespräch an unseren Standort nach Osnabrück ein, alternativ kommen wir auch gerne zu ihnen. Nur vollständig ausgefüllte Anfragen können auch beantwortet werden. Vereinbaren Sie noch heute einen Termin mit uns und kommen Sie Ihrem Traum von den eigenen 4 Wänden ein Stück näher.
Robin Shaw 0160/7521275 oder per Mail: robin.shaw@livinghaus.de
Auf Living Haus können Sie vertrauen!
Wir freuen uns auf Sie! :-)
Adresse
26871 Papenburg
Interessante Orte
Preis- und Lageinformationen
Preistrend für Bestandsimmobilien in Papenburg