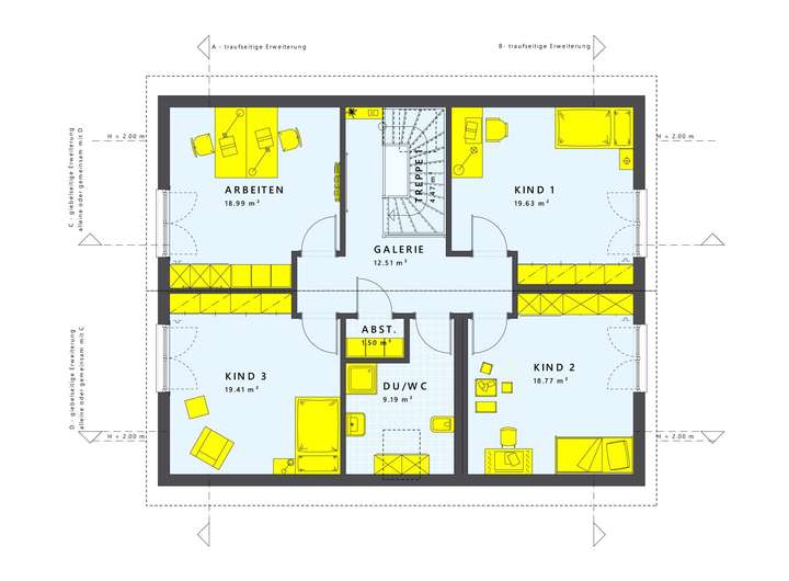
Dieses exquisite Einfamilienhaus in Aurich vereint klassische Eleganz mit modernem Wohnkomfort. Mit einer großzügigen Wohnfläche von 210 Quadratmetern, aufgeteilt auf zwei Etagen, bietet es viel Platz für deine individuelle Gestaltung. Das klassische Satteldach verleiht dem Haus nicht nur einen zeitlosen Charme, sondern sorgt auch für eine optimale Raumausnutzung. Durch die zwei Zwerchgiebel im Obergeschoss entsteht eine helle, freundliche Atmosphäre, die dir ein harmonisches Wohngefühl vermittelt. Hier kannst du mit deiner Familie ganz nach deinen Wünschen leben und arbeiten.
LivingHaus bietet dir die Möglichkeit, dein Zuhause nach deinen persönlichen Vorstellungen zu gestalten. Mit der Traumküche von LivingHaus erhältst du eine hochwertige Küche, die genau auf deinen Grundriss und deine Bedürfnisse abgestimmt ist. Sie kommt mit modernster Technik und cleveren Stauraumlösungen, damit du sofort loskochen kannst, sobald du eingezogen bist.
Das Living Haus Bau-Cockpit ermöglicht es dir, den Überblick über dein Bauprojekt zu behalten. Alle wichtigen Informationen zum Bauablauf sind digital und einfach zugänglich, sodass du stressfrei planen kannst. Mit I-KON - Intelligentes Bauen baust du nachhaltig und energieeffizient, denn dein Haus wird perfekt an deine Bedürfnisse angepasst. Das Zuhause-Darlehen hilft dir, dein Traumhaus zu finanzieren. Du profitierst von besonders günstigen Konditionen und staatlichen Förderprogrammen.
Das Zuhause-Paket beinhaltet eine hochwertige Grundausstattung mit modernen Böden, edlen Türen und stilvollen Sanitäranlagen, alles optimal aufeinander abgestimmt. Mit dem DIY-Ausbau-Coaching wirst du zum Profi im Innenausbau und erhältst wertvolle Tipps von Experten, um dein Zuhause selbst zu gestalten. LivingHaus bietet dir ein durchdachtes Gesamtkonzept, damit dein Traumhaus so sicher und passend wie möglich verwirklicht wird.
Dein individuelles Traumhaus in Aurich - Erlebe moderne Architektur und persönlichen Stil mit Living
26605 Aurich
Die vollständige Adresse der Immobilie erhalten Sie vom Anbieter.
Auf Karte anzeigen
Die vollständige Adresse der Immobilie erhalten Sie vom Anbieter.
Finanzierungszertifikat
In nur zwei Minuten zu Ihrem persönlichen Finanzierungszertifkat.
Infos
| Haustyp | Einfamilienhaus |
|---|---|
| Etagenzahl | 2 |
| Wohnfläche ca. | 210 m2 |
| Nutzfläche | 210 m2 |
| Grundstücksfläche | 579 m2 |
| Zimmer | 6 |
| Schlafzimmer | 3 |
| Badezimmer | 2 |
Kosten
| Kaufpreis |
602.635 € |
|---|
Finanzierungsrechner:
Kaufpreis:
600.000 €
Eigenkapital:
600.000 €
Monatliche Rate
0 €
Effektiver Jahreszins
0 %
Sollzinsbindung
10 Jahre
Bausubstanz & Energieausweis
| Baujahr | unbekannt |
|---|---|
| Bauphase | Haus in Planung (projektiert) |
| Qualität der Austattung | Gehoben |
Beschreibung des Objekts
Ausstattung
Das Einfamilienhaus in Aurich überzeugt durch eine hochwertige Ausstattung, die höchsten Wohnansprüchen gerecht wird. Du erhältst eine edle Grundausstattung mit stilvollen Böden und Türen sowie modernen Sanitäranlagen. Die Küche wird individuell nach deinen Wünschen gestaltet, sodass sie perfekt in dein Zuhause integriert ist. Dank des hohen Vorfertigungsgrads und geschlossener Wände wird der Bauprozess effizient und zügig gestaltet. Für angenehme Raumtemperaturen sorgt moderne Wärmepumpentechnik mit Komfortlüftung und Wärmerückgewinnung. Zudem sind aluminiumgeschäumte Rollläden vorhanden, die sowohl im Sommer als auch im Winter für ein optimales Raumklima sorgen. Das Zuhause-Paket garantiert dir, dass alles fix und fertig geliefert wird. Mit der DIY-Ausbau-Coaching-Möglichkeit kannst du deinen Innenausbau nach deinen Vorstellungen gestalten. Dein "Wie ich es will Fertighaus" wartet auf dich!
Lage
Aurich ist eine charmante Stadt mit einer hervorragenden Infrastruktur, die dir alles bietet, was du für ein angenehmes Leben benötigst. In der Umgebung findest du zahlreiche Schulen, darunter die Grundschule am Wall und das Gymnasium Aurich, die beide für ihre hohe Bildungsqualität bekannt sind. Kindergärten sind ebenfalls reichlich vorhanden, sodass du für deine Kleinen die besten Betreuungsmöglichkeiten hast.
Für deine Gesundheitsversorgung stehen dir mehrere Ärzte und Apotheken zur Verfügung, die gut erreichbar sind. Supermärkte wie REWE und EDEKA befinden sich in unmittelbarer Nähe, sodass du deine Einkäufe bequem erledigen kannst. Freizeitangebote kommen in Aurich ebenfalls nicht zu kurz: Der Auricher Stadtpark lädt zu entspannten Spaziergängen ein, während das Freizeitbad "De Baalje" für Spaß und Erholung sorgt.
Die Anbindung an den öffentlichen Nahverkehr ist hervorragend, und auch die Autobahn ist schnell erreichbar, was Pendlern zugutekommt. Ob du in die umliegenden Städte pendeln oder die Natur erkunden möchtest, Aurich ist der perfekte Standort für dein neues Zuhause.
Sonstige Angaben
Der Grundstückspreis ist im Anzeigenpreis bereits enthalten.
Das Grundstück erwerben Sie direkt vom Eigentümer über einen Makler.
Ein Träumchen an Grundstück. :-)
Heimkommen - ankommen - herunterkommen - wohlfühlen
Vereinbaren Sie gleich Ihren persönlichen Beratungstermin und sichern Sie sich Ihrer Familie ein geniales Bauland für Ihr neues Zuhause mit Living Haus.
Jedoch bitte ich zu berücksichtigen:
Ich baue mit sehr viel Herz und Kompetenz Häuser. Im Interesse der jeweiligen Grundstückseigentümer sowie meiner Bauherren werde ich ohne ein persönliches Gespräch zum Thema Hausbau nie irgendwelche Grundstücksdaten weiterleiten. Keine Ausnahmen an dieser Stelle.
Und... natürlich ist es mir selbst mit bestem Willen nicht möglich, eine dauerhafte Verfügbarkeit der Grundstücke zu garantieren. Es gibt jedes Grundstück halt nur einmal - Leider.
Kennen Sie schon den Living Haus Beratungsservice? Nein? Dann rufen Sie uns an und wir stimmen einen kostenlosen persönlichen Termin ab. Ihr Wohl liegt uns am Herzen.
Die Architektenleistungen sind bereits enthalten.
Für die gesamte Bauphase und darüber hinaus ist Ihr Projekt versichert, diese Leistungen sind im Preis bereits inbegriffen. Fragen Sie Ihren Berater.
Das Grundstück wird über einen anderen Anbieter verkauft. Keine Gewähr auf Angaben. Der Preis versteht sich zzgl. Erwerbs und Baunebenkosten. Änderungen des Preises oder der Ausstattungen sowie Irrtümer oder Zwischenverkauf sind vorbehalten. Abbildungen und Grundrisse können Extras zeigen, die nicht im Angebot enthalten sind. Alle Angaben nach bestem Wissen und Gewissen, jedoch ohne Gewähr.
Finanzierungsberater stehen bei uns kostenlos zu Ihrer persönlichen Beratung bereit.
Wir laden Sie gerne zu einem persönlichen Gespräch an unseren Standort nach Osnabrück ein, alternativ kommen wir auch gerne zu ihnen. Nur vollständig ausgefüllte Anfragen können auch beantwortet werden. Vereinbaren Sie noch heute einen Termin mit uns und kommen Sie Ihrem Traum von den eigenen 4 Wänden ein Stück näher.
Robin Shaw 0160/7521275 oder per Mail: robin.shaw@livinghaus.de
Auf Living Haus können Sie vertrauen!
Wir freuen uns auf Sie! :-)
Adresse
26605 Aurich
Interessante Orte
Preis- und Lageinformationen
Preistrend für Bestandsimmobilien in Aurich