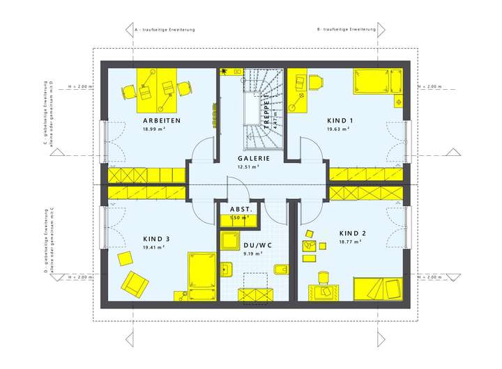
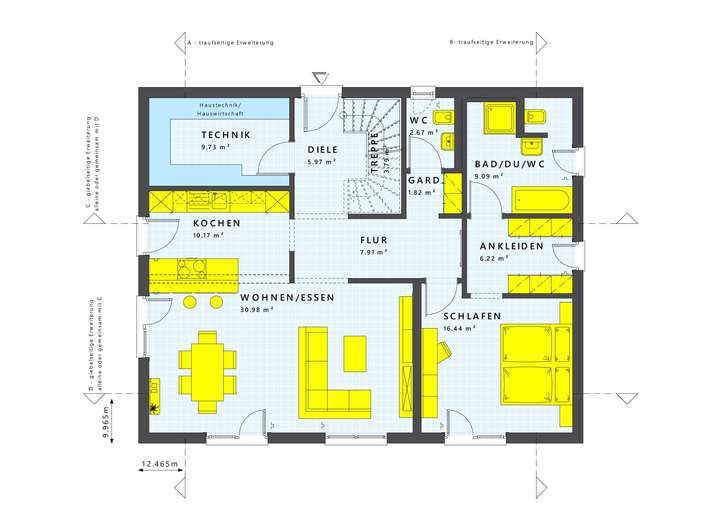
Dieses beeindruckende Fertighaus von LivingHaus ist mehr als nur ein Gebäude; es ist ein Ort, an dem deine Träume wahr werden. Mit einer großzügigen Wohnfläche von 210 Quadratmetern und sechs einladenden Zimmern bietet dieses moderne Einfamilienhaus genügend Platz für die gesamte Familie. Das klassische Satteldach verleiht dem Haus nicht nur eine elegante Optik, sondern sorgt zudem für eine optimale Raumausnutzung. Die zwei Zwerchgiebel im Obergeschoss garantieren eine hohe Raumhöhe, sodass du dich über lichtdurchflutete Räume freuen kannst, die ein Gefühl von Weite und Freiheit vermitteln. Hier kannst du entspannen, kreativ sein und die Zeit mit deinen Liebsten genießen.
LivingHaus bietet dir nicht nur ein wunderschönes Zuhause, sondern auch eine Vielzahl an zusätzlichen Leistungen, die deinen Wohntraum perfekt machen. Die hochwertige Traumküche wird genau auf deinen Grundriss angepasst und kommt mit modernster Technik sowie cleveren Stauraumlösungen. Du kannst sofort nach dem Einzug loskochen und dich an den kulinarischen Möglichkeiten erfreuen. Das LivingHaus Bau-Cockpit sorgt dafür, dass du dein Bauprojekt jederzeit im Blick hast. Mit der praktischen App hast du Zugriff auf Zeitpläne, Dokumente und kannst alles bequem von deinem Smartphone aus verwalten.
Mit I-KON - Intelligentes Bauen wird dein Zuhause nicht nur schön, sondern auch nachhaltig. Das I-KON Effizienzhaus 55 benötigt nur 55 % der Energie eines Standardhauses und überzeugt durch innovative Dämmung und intelligente Heizsysteme. Zudem hast du die Möglichkeit, dein Traumhaus mit dem Zuhause-Darlehen zu finanzieren, das dir bis zu 250.000 Euro zu einem attraktiven Zinssatz bietet. Das Zuhause-Paket enthält eine hochwertige Grundausstattung mit modernen Böden, edlen Türen und stilvollen Sanitäranlagen - alles perfekt aufeinander abgestimmt und bereit für deinen Einzug. Und wenn du den Innenausbau selbst in die Hand nehmen möchtest, bietet dir das DIY-Ausbau-Coaching wertvolle Tipps und Unterstützung von Experten.
Jedes Detail ist durchdacht und trägt dazu bei, dass du dein individuelles Traumhaus verwirklichen kannst. LivingHaus steht dir dabei mit Rat und Tat zur Seite, damit du dich in deinem neuen Zuhause rundum wohlfühlst.
Dein individuelles Traumhaus in Aurich - maßgeschneidert von LivingHaus
26624 Südbrookmerland
Die vollständige Adresse der Immobilie erhalten Sie vom Anbieter.
Auf Karte anzeigen
Die vollständige Adresse der Immobilie erhalten Sie vom Anbieter.
Finanzierungszertifikat
In nur zwei Minuten zu Ihrem persönlichen Finanzierungszertifkat.
Infos
| Haustyp | Einfamilienhaus |
|---|---|
| Etagenzahl | 2 |
| Wohnfläche ca. | 210 m2 |
| Nutzfläche | 210 m2 |
| Grundstücksfläche | 532 m2 |
| Zimmer | 6 |
| Schlafzimmer | 3 |
| Badezimmer | 2 |
Kosten
| Kaufpreis |
537.635 € |
|---|
Finanzierungsrechner:
Kaufpreis:
600.000 €
Eigenkapital:
600.000 €
Monatliche Rate
0 €
Effektiver Jahreszins
0 %
Sollzinsbindung
10 Jahre
Bausubstanz & Energieausweis
| Baujahr | unbekannt |
|---|---|
| Bauphase | Haus in Planung (projektiert) |
| Qualität der Austattung | Gehoben |
Beschreibung des Objekts
Ausstattung
Die Ausstattung deines neuen Fertighauses von LivingHaus umfasst eine Vielzahl hochwertiger Elemente, die den Wohnkomfort maximieren. Die moderne Traumküche ist individuell auf deinen Grundriss zugeschnitten und bietet clevere Stauraumlösungen sowie hochwertige Geräte, die den Kochprozess erleichtern. Die Böden sind in stilvollen Designs gestaltet, während edle Türen und moderne Sanitäranlagen im Bad für einen hochwertigen Eindruck sorgen. Im Zuhause-Paket findest du alles, was du für einen perfekten Einzug benötigst.
Der Bau erfolgt mit höchsten ökologischen, ökonomischen und technischen Standards. Du erhältst eine 18-monatige Festpreisgarantie ab dem Tag der Auftragsbestätigung, sodass dein Preis während dieser Zeit sicher bleibt. Für deine Finanzierung steht ein Zuhause-Darlehen zur Verfügung, mit dem du bis zu 250.000 Euro zu einem sehr günstigen Zinssatz erhalten kannst. Darüber hinaus profitierst du von der DGNB-Serienzertifizierung in Gold, die die hohe Qualität deines neuen Hauses bestätigt. Mit dem DIY-Ausbau-Coaching erhältst du wertvolle Unterstützung und Tipps, um den Innenausbau selbst zu gestalten.
All diese Leistungen machen dein Fertighaus zu einem einzigartigen Wohntraum, der genau auf deine Wünsche abgestimmt ist. Dein »Wie ich es will Fertighaus« wartet auf dich!
Lage
Aurich ist nicht nur eine charmante Stadt in Niedersachsen, sondern bietet auch eine hervorragende Lebensqualität für Familien, Naturliebhaber und Pendler. In der Umgebung findest du zahlreiche Schulen, darunter die Grundschule Aurich und das Gymnasium Aurich, die für ihre gute Ausstattung und engagierten Lehrkräfte bekannt sind. Für die Kleinsten gibt es mehrere Kindergärten, die eine liebevolle Betreuung garantieren.
Einkaufsmöglichkeiten sind ebenfalls reichlich vorhanden. Von großen Supermärkten, wie Rewe und Edeka, bis hin zu kleinen, lokalen Geschäften findest du alles, was du für den täglichen Bedarf benötigst. Darüber hinaus gibt es in Aurich eine Vielzahl von Ärzten und Gesundheitsdienstleistern, sodass du und deine Familie jederzeit gut versorgt sind.
Freizeitangebote sind in Aurich und Umgebung vielfältig. Du kannst die Natur beim Radfahren oder Wandern im nahegelegenen Naturschutzgebiet Auricher Moor erkunden oder einen entspannten Tag im schönen Stadtpark verbringen. Für Kulturinteressierte gibt es regelmäßige Veranstaltungen im Stadttheater und zahlreiche Festivals, die das ganze Jahr über stattfinden.
Die Anbindung an den öffentlichen Nahverkehr ist optimal, und auch die Autobahn ist in wenigen Minuten erreichbar, was Pendlern zugutekommt. Du erreichst die Städte Emden und Oldenburg bequem und schnell. Aurich bietet dir all diese Vorzüge und schafft somit ein ideales Umfeld für dein zukünftiges Zuhause.
Sonstige Angaben
Der Grundstückspreis ist im Anzeigenpreis bereits enthalten.
Das Grundstück erwerben Sie direkt vom Eigentümer über einen Makler.
Ein Träumchen an Grundstück. :-)
Heimkommen - ankommen - herunterkommen - wohlfühlen
Vereinbaren Sie gleich Ihren persönlichen Beratungstermin und sichern Sie sich Ihrer Familie ein geniales Bauland für Ihr neues Zuhause mit Living Haus.
Jedoch bitte ich zu berücksichtigen:
Ich baue mit sehr viel Herz und Kompetenz Häuser. Im Interesse der jeweiligen Grundstückseigentümer sowie meiner Bauherren werde ich ohne ein persönliches Gespräch zum Thema Hausbau nie irgendwelche Grundstücksdaten weiterleiten. Keine Ausnahmen an dieser Stelle.
Und... natürlich ist es mir selbst mit bestem Willen nicht möglich, eine dauerhafte Verfügbarkeit der Grundstücke zu garantieren. Es gibt jedes Grundstück halt nur einmal - Leider.
Kennen Sie schon den Living Haus Beratungsservice? Nein? Dann rufen Sie uns an und wir stimmen einen kostenlosen persönlichen Termin ab. Ihr Wohl liegt uns am Herzen.
Die Architektenleistungen sind bereits enthalten.
Für die gesamte Bauphase und darüber hinaus ist Ihr Projekt versichert, diese Leistungen sind im Preis bereits inbegriffen. Fragen Sie Ihren Berater.
Das Grundstück wird über einen anderen Anbieter verkauft. Keine Gewähr auf Angaben. Der Preis versteht sich zzgl. Erwerbs und Baunebenkosten. Änderungen des Preises oder der Ausstattungen sowie Irrtümer oder Zwischenverkauf sind vorbehalten. Abbildungen und Grundrisse können Extras zeigen, die nicht im Angebot enthalten sind. Alle Angaben nach bestem Wissen und Gewissen, jedoch ohne Gewähr.
Finanzierungsberater stehen bei uns kostenlos zu Ihrer persönlichen Beratung bereit.
Wir laden Sie gerne zu einem persönlichen Gespräch an unseren Standort nach Osnabrück ein, alternativ kommen wir auch gerne zu ihnen. Nur vollständig ausgefüllte Anfragen können auch beantwortet werden. Vereinbaren Sie noch heute einen Termin mit uns und kommen Sie Ihrem Traum von den eigenen 4 Wänden ein Stück näher.
Robin Shaw 0160/7521275 oder per Mail: robin.shaw@livinghaus.de
Auf Living Haus können Sie vertrauen!
Wir freuen uns auf Sie! :-)
Adresse
26624 Südbrookmerland
Interessante Orte
Preis- und Lageinformationen
Preistrend für Bestandsimmobilien in Südbrookmerland