Willkommen in Ihrem neuen Zuhause in Hanau-Großauheim!
Dieses gepflegte Reihenmittelhaus liegt in einem ruhigen, familienfreundlichen Wohngebiet und verbindet behagliches Wohnen mit einer angenehm überschaubaren Größe. Auf ca. 115 m² Wohnfläche entfaltet sich ein klar strukturierter Grundriss mit hellen, gut proportionierten Räumen – ideal für Paare, die Wert auf Qualität und Atmosphäre legen, ebenso wie für Familien, die ein zuverlässiges Zuhause mit solider Substanz suchen.
Die Immobilie präsentiert sich in einem ausgesprochen ordentlichen Gesamtzustand: Sorgfältig instandgehalten, liebevoll genutzt und ohne Sanierungsstau im Alltag – einziehen und wohlfühlen ist hier, wenn gewünscht, sofort möglich. Gleichwohl empfiehlt sich, dem Baujahr entsprechend, die ein oder andere Modernisierung nach eigenem Anspruch und Stil vorzunehmen. So verbinden Sie den Charme des Gewachsenen mit zeitgemäßen Akzenten und schaffen sich Ihr ganz persönliches Ambiente.
Die ruhige Lage unterstreicht den Wohnwert: kurze Wege, angenehme Nachbarschaft, ein Umfeld, das Freizeit und Alltag mühelos miteinander vereint. Praktisch obendrein: Eine zum Haus gehörende Garage befindet sich am Ende der Straße und sorgt für komfortables Parken sowie zusätzlichen Stauraum.
Kurzum: Ein Haus mit Charakter und Perspektive – gepflegt, zeitlos und bereit für Ihre nächsten Kapitel. Entdecken Sie ein Zuhause, das Verlässlichkeit ausstrahlt und zugleich Raum für Ihre Ideen lässt.
ZEITLOS & ZUVERLÄSSIG – Top-Gepflegtes Reihenmittelhaus mit Garten & Garage in ruhigem Wohngebiet
63457 Hanau
Die vollständige Adresse der Immobilie erhalten Sie vom Anbieter.
Auf Karte anzeigen
Die vollständige Adresse der Immobilie erhalten Sie vom Anbieter.
Finanzierungszertifikat
In nur zwei Minuten zu Ihrem persönlichen Finanzierungszertifkat.
Infos
| Haustyp | Reihenmittelhaus |
|---|---|
| Etagenzahl | 2 |
| Wohnfläche ca. | 114 m2 |
| Nutzfläche | 59 m2 |
| Grundstücksfläche | 217 m2 |
| Bezugsfrei ab | sofort |
| Zimmer | 4 |
| Schlafzimmer | 3 |
| Badezimmer | 1 |
| Garage/Stellplatz | Garage |
| Anzahl Garage/Stellplatz | 1 |
Kosten
| Kaufpreis |
377.000 € |
|---|---|
| Provision |
3,57 % inkl. MwSt. Die Provision ist nach Vertragsunterzeichnung verdient und fällig. |
Finanzierungsrechner:
Kaufpreis:
600.000 €
Eigenkapital:
600.000 €
Monatliche Rate
0 €
Effektiver Jahreszins
0 %
Sollzinsbindung
10 Jahre
Bausubstanz & Energieausweis
| Baujahr | 1979 |
|---|---|
| Bauphase | Haus fertig gestellt |
| Objektzustand | Gepflegt |
| Qualität der Austattung | Normal |
| Heizungsart | Zentralheizung |
| Wesentliche Energieträger | Gas |
| Energieausweis | liegt vor |
| Energieausweistyp | Verbrauchsausweis |
| Energieverbrauchskennwert | 146,3 kWh/(m²*a) |
| Energieeffizienzklasse | E |
146,3
kWh/(m²*a)
Energieeffizienzklasse E
- A+
- A
- B
- C
- D
- E
- F
- G
- H
- 0
- 25
- 50
- 75
- 100
- 125
- 150
- 175
- 200
- 225
- >250
Beschreibung des Objekts
Ausstattung
++ Top-Gepflegt - Riesengroßes Potenzial
++ Ruhige, freundliche Nachbarschaft
++ Praktische Aufteilung
++ Tageslichtbad im OG und Gäste-WC im EG
++ Sonnenbalkon im OG
++ Terrasse im EG mit Garten
++ Vollunterkellert
++ Gas-Heizung aus 2003
++ Garage am Ende der Straße
Lage
In ruhiger, gewachsener Wohnlage von Hanau-Großauheim verbindet dieses Umfeld naturnahe Aufenthaltsqualität mit alltagstauglicher Infrastruktur. Einrichtungen des täglichen Bedarfs – vom Supermarkt über Bäckereien bis zur Apotheke – sind ebenso bequem erreichbar wie Ärzte, Kitas und Schulen. Die Anbindung überzeugt: Buslinien verknüpfen den Stadtteil eng mit der Hanauer Innenstadt und dem Hauptbahnhof; von dort bestehen dichte Regional- und S-Bahn-Verbindungen Richtung Frankfurt, Offenbach und Aschaffenburg. Für Autofahrer sind die überregionalen Achsen schnell erreicht, insbesondere die A66 sowie die Verbindungen zur A45 und A3. Erholung bietet das Mainufer mit seinen Wegen sowie nahe Grün- und Waldflächen; Sport- und Kulturangebote im Stadtteil und in der Kernstadt ergänzen das Freizeitbild. So entsteht ein Standort, der kurze Wege, Ruhe und eine gepflegte Nachbarschaft vereint – ideal für alle, die urbanes Leben mit einem entspannten Wohnumfeld verbinden möchten.
Sonstige Angaben
Wichtiger Hinweis zum Geldwäschegesetz (GWG)! Gemäß nach § 2 Abs. 1 Nr. 14 und § 11 Abs. 1, 2 Geldwäschegesetz ist jeder Immobilienmakler verpflichtet, bei Kontaktaufnahme die Identität des Kunden festzustellen. Hierzu müssen von jedem Interessenten die persönlichen Daten sowie die Kontaktdaten aufgenommen und überprüft werden.
Bitte bringen Sie zur Besichtigung ein gültiges Ausweisdokument mit. Bei juristischen Personen und Personengesellschaften ist ein Handelsregisterauszug notwendig. Für weitere Informationen stehen wir Ihnen gern zur Verfügung.
Immobilienkontor42 KG hat die an den Kunden weitergegebenen Angaben nicht auf deren Vollständigkeit und Richtigkeit geprüft. Er hat die Angaben weitergegeben, die er vom Verkäufer oder Vermieter oder einem beauftragten Dritten erhalten hat. Es ist daher Aufgabe des Kunden, die Angaben zu überprüfen. Für die Richtigkeit der Angaben übernimmt Immobilienkontor42 KG keine Haftung. Die Haftung des Maklers ist auf grob fahrlässiges oder vorsätzliches Verhalten begrenzt.
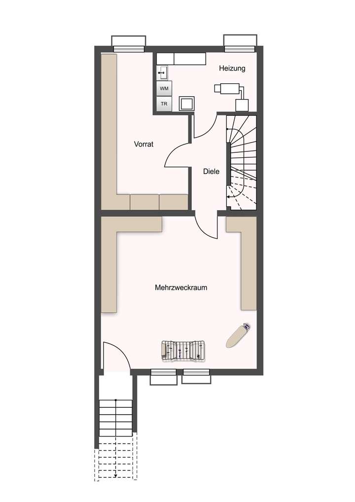
Grundriss
EG
>
>
OG
>
>
KG
>
>
Adresse
63457 Hanau
Interessante Orte
Preis- und Lageinformationen
Preistrend für Bestandsimmobilien in Hanau