Hier bieten sich Ihnen zwei direkt aneinandergrenzende Grundstücke mit beeindruckendem Fernblick – eine seltene Gelegenheit für alle, die gemeinsam, aber dennoch getrennt wohnen möchten. Ob für Familien, Generationenwohnen oder Freunde mit dem Wunsch nach räumlicher Nähe: Diese Grundstücke eröffnen vielfältige Möglichkeiten zur individuellen Bebauung.
Grundstück 1: ca. 1.135 m²
Grundstück 2: ca. 772 m²
Aufgrund der starken Hanglage ergibt sich ein außergewöhnlicher Weitblick über die umliegende Landschaft
Das obere Grundstück ist derzeit mit einem Rohbau in Containerbauweise bebaut, der jedoch abbruchreif ist.
Zwei zusammenhängende Grundstücke mit außergewöhnlichem Fernblick – ideal für Familien oder Freunde
Herbertshagener Strasse 35,
51597 Morsbach
Auf Karte anzeigen
Finanzierungszertifikat
In nur zwei Minuten zu Ihrem persönlichen Finanzierungszertifkat.
Infos
| Vermarktungsart | Kaufen |
|---|---|
| Grundstücksfläche | 1.907 m2 |
| Erschließung | Erschlossen |
| Empfohlene Nutzung | Doppelhaus, Einfamilienhaus, Garagen, Mehrfamilienhaus |
| Bebaubar nach | wie Nachbarbebauung |
| Verfügbar ab | sofort |
Kosten
| Miete pro Jahr |
99.500 € |
|---|---|
| Provision | Nein |
Finanzierungsrechner:
Kaufpreis:
600.000 €
Eigenkapital:
600.000 €
Monatliche Rate
0 €
Effektiver Jahreszins
0 %
Sollzinsbindung
10 Jahre
Beschreibung des Objekts
Lage
In ländlicher, waldreicher Umgebung liegt Morsbach-Rhein, am südlichsten Zipfel des Oberbergischen Kreises. Die Städte Gummersbach (ca. 38 km), Siegen (ca. 35 km) sowie Köln (ca. 75 km) sind mit dem Auto gut erreichbar. Benachbarte Ortsteile sind Niederdorf im Nordosten, Eugenienthal im Süden und Flockenberg im Westen.
Die 10.600-Einwohner-Gemeinde Morsbach ist ein gelungenes Beispiel dafür, dass Gewerbe und Fremdenverkehr einander nicht ausschließen. Als „Feriengebiet im Naturpark Bergisches Land“ wirbt Morsbach mit einer abwechslungsreichen Landschaft und hohem Erholungswert.
Dank vielseitiger Infrastruktur, neuer Wohngebiete und der landschaftlich reizvollen Lage haben sich in den vergangenen Jahren viele Neubürger hier niedergelassen. Morsbach wird von den Autobahnen A3 (Frankfurt–Düsseldorf), A4 (Köln–Olpe) und A45 (Frankfurt–Dortmund, Sauerlandlinie) eingerahmt. Den Anschluss an die Bahnlinie Köln–Siegen–Frankfurt erreicht man im rund 12 km entfernten Wissen. Die Kreisstadt Gummersbach ist in etwa 30 Minuten, Köln in rund 45 Minuten erreichbar.
Vor Ort finden sich Grund- und Gemeinschaftsschule, Volkshochschule, Internat, Kindergärten, Ärzte und Zahnärzte, eine Jugendherberge, ein Hallenbad, mehrere Sporthallen, Kunstrasen- und Tennisplätze sowie ein Kurpark – all das unterstreicht die hervorragende Infrastruktur.
Morsbach bietet ein generationsübergreifendes, attraktives Wohn- und Lebensumfeld. Für Naturfreunde besonders reizvoll: Direkt aus der Dorfmitte erstreckt sich ein kilometerlanges Wanderroutennetz durch das idyllische Bergische Land.
Sonstige Angaben
Die Immobilienbörsen kürzen Texte und begrenzen die Bilderanzahl! Fordern Sie unser komplettes Exposé per E-Mail oder telefonisch an. Bei Kontaktaufnahme bitten wir um Angabe Ihrer vollständigen Daten mit Adresse und Rufnummer.
Der Verkauf erfolgt für Kaufende PROVISIONSFREI !!!
Wir bieten nicht nur eine kostenlose Hotline, sondern auch einen Service am Wochenende. Bei Interesse geben Sie bitte immer Ihre vollständigen Kontaktdaten an.
Sie wollen Ihre Immobilie ebenfalls professionell vermarkten, rufen Sie uns an, wir stehen Ihnen von Mo. bis So. von 6:00 – 22:00 Uhr persönlich zur Seite! Über 40.000 aktive Interessenten warten bereits auf Sie.
Als Immobilienexperten mit zahlreichen Auszeichnungen bieten wir Ihnen einen Service, der Sie als Verkäufer von Beginn an bis weit über den Notartermin hinaus begleitet. Mit unserer langjährigen Erfahrung und der hervorragenden Kenntnis des aktuellen Immobilienmarktes möchten wir gerne auch Sie bei Ihrem Verkauf unterstützen. Schenken Sie uns Ihr Vertrauen! Sie erreichen uns jederzeit unter der kostenfreien Rufnummer 0800 - 646 0 646.
Die Objektbeschreibung beruht ganz oder zum Teil auf Informationen der Eigentümer. Trotz sorgfältiger Prüfung übernimmt FALC Immobilien für die Richtigkeit oder Vollständigkeit der Angaben keine Gewähr.
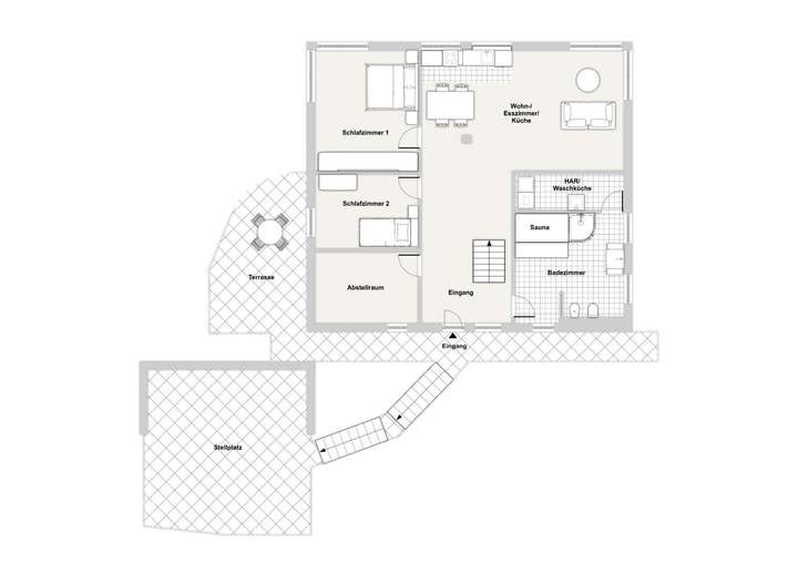
Grundriss
Grundriss EG
>
>
Grundriss OG
>
>