Das Wohn- und Geschäftshaus in Bremen Hemelingen wurde im Jahre 1982 gebaut und setzt sich aus einer Gewerbeeinheit und sechs Wohneinheiten zusammen. Bei dem Wärmeerzeuger handelt es sich um eine Gas-Etagenheizung, die in den jeweiligen Einheiten verbaut und installiert wurden in den Jahren 2005 - 2022.
Auf einer Grundstücksgröße von 967,00 m² steht das Haus mit einer Wohnfläche von 352,25 m², einer Gewerbefläche von 169,22 m² und einer Nutzfläche von 237,78 m². Das Gebäude lässt sich wie folgt aufteilen: sechs Wohnungen im 1. - 3. Obergeschoss, Gewerbeeinheit im Erdgeschoss, zwei Dachbodenräume, Vollunterkellert - acht Kellerräume, ein Trocknerraum, Flure und Treppenhaus, ein nicht funktionsfähiges Kühlhaus mit Licht (müsste repariert werden), ein Schuppen und elf Carports im Hofbereich.
In den letzten zehn Jahren wurden einige Sanierungen und Renovierungen durchgeführt. Die Aufstellung dazu sieht folgendermaßen aus:
Wohnung 1 wurde 2020 das Badezimmer neu gestrichen. In Wohnung 2 wurde 2021 renoviert, eine neue Einbauküche eingebaut und ein neuer Schaltkasten installiert. Wohnung 3 wurde 2016 ebenso renoviert und hat eine neue Einbauküche bekommen, 2022 wurde auch hier ein neuer Schaltkasten installiert und 2025 wurde die gesamte Wohnung gestrichen. Wohnung 4 bekam 2022 eine neue Gastherme. Wohnung 5 wurde zwischen 2016 und 2018 renoviert und hat eine neue Einbauküche bekommen, eine neue Gastherme wurde 2019 installiert und ein neues elektrisches Dachfenster im Bad wurde 2024 eingebaut. Wohnung 6 hat 2020 eine neuwertige Küche bekommen und wurde 2025 renoviert. Die Gewerbeeinheit bekam 2019 eine neue Gastherme und das Flachdach ist 2024 komplett erneuert worden mit einer zehn Jahre Garantie. Am Gebäude wurden alle Amarturen ausgetauscht und alle Holzfenster des Hauses wurden überarbeitet 2020. Die Sprechanlage der Wohnungen wurden 2024 getauscht und 2025 wurde Glasfaser im ganzen Haus verlegt.
Nach diesen Erneuerungen existiert zurzeit KEIN Renovierungsstau!
Das Wohn- und Geschäftshaus ist Vollvermietet was zu einer jährlichen IST-Nettokaltmiete von 58.140,00 € führt. Bei den aktuellen Mietpreisen ist eine Potenzielle-Nettokaltmiete von 65.904,00 € möglich.
Bremen - Hemelingen | Renditestarkes Wohn- und Geschäftshaus in Bestlage
28309 Bremen
Die vollständige Adresse der Immobilie erhalten Sie vom Anbieter.
Auf Karte anzeigen
Die vollständige Adresse der Immobilie erhalten Sie vom Anbieter.
Finanzierungszertifikat
In nur zwei Minuten zu Ihrem persönlichen Finanzierungszertifkat.
Infos
| Haustyp | Mehrfamilienhaus |
|---|---|
| Wohnfläche ca. | 352 m2 |
| Nutzfläche | 237,78 m2 |
| Grundstücksfläche | 967 m2 |
| Zimmer | 18 |
| Garage/Stellplatz | Carport |
| Anzahl Garage/Stellplatz | 11 |
Kosten
| Kaufpreis |
895.000 € |
|---|---|
| Provision |
5,95% inkl. 19% MwSt. (Käuferprovision) |
Finanzierungsrechner:
Kaufpreis:
600.000 €
Eigenkapital:
600.000 €
Monatliche Rate
0 €
Effektiver Jahreszins
0 %
Sollzinsbindung
10 Jahre
Bausubstanz & Energieausweis
| Baujahr | 1982 |
|---|---|
| Heizungsart | Gas-Heizung |
| Wesentliche Energieträger | Gas |
| Energieausweis | liegt vor |
| Energieausweistyp | Verbrauchsausweis |
| Energieverbrauchskennwert | 90,9 kWh/(m²*a) |
| Energieeffizienzklasse | C |
90,9
kWh/(m²*a)
Energieeffizienzklasse C
- A+
- A
- B
- C
- D
- E
- F
- G
- H
- 0
- 25
- 50
- 75
- 100
- 125
- 150
- 175
- 200
- 225
- >250
Beschreibung des Objekts
Ausstattung
+ Baujahr 1982
+ Wärmeerzeuger: Gas-Etagenheizung jeweils eine pro Wohneinheit und eine für die Gewerbeeinheit
+ Baujahre: 2019, 2005, 2006, 2005, 2022, 2017, 2014
+ Grundstückgröße 967,00 m²
GEBÄUDEFLÄCHEN
+ Wohnfläche 352,25 m²
+ Gewerbefläche 169,22 m²
+ Nutzfläche 237,78 m²
GEBÄUDEAUFTEILUNG
+ 6 Wohneinheiten, 1 Gewerbeeinheit
+ 2 Dachböden, 8 Kellerräume
+ 1 Trocknerraum, Flur und Treppenhaus
+ 1 nicht funktionsfähiges Kühlhaus mit Licht
+ 1 Schuppen, 11 Carports
SANIERUNGEN/RENOVIERUNGEN
+ WHG 1: Badezimmer gestrichen (2020)
+ WHG 2: renoviert, neue Einbauküche, neuer Schaltkasten (2021)
+ WHG 3: renoviert, neue Einbauküche (2016) / neuer Schaltkasten (2022) / Whg gestrichen (2025)
+ WHG 4: neue Gastherme (2022)
+ WHG 5: renoviert, neue Einbauküche (2016 - 2018) / neue Gastherme (2019) / neues elektrisches Dachfenster im Bad (2024)
+ WHG 6: neuwertige Küche (2020) / renoviert (2025)
+ Gewerbeeinheit: neue Gastherme (2019) / Flachdach komplett erneuert mit 10 Jahre Garantie (2024)
+ Nutzflächen: alle Armaturen ausgetauscht, alle Holzfenster des Hauses überarbeitet (2020) / Austausch der Sprechanlage für die Wohnungen (2024) / Glasfaser Verlegung im ganzen Haus (2025)
+ Es existiert zurzeit KEIN Renovierungsstau!
+ jährliche IST-Nettokaltmiete: 58.140,00 €
+ jährliche Potenzielle-Nettokaltmiete: 65.904,00 €
Lage
Die Immobilie befindet sich in einer ruhigen und grünen Wohnstraße im Bremer Stadtteil Hemelingen, etwa 6,5 Kilometer südöstlich der Innenstadt. Die Osternadel ist eine verkehrsberuhigte Anliegerstraße mit Tempo-30-Zone und Radwegen, was zu einer familienfreundlichen und sicheren Wohnumgebung beiträgt. Die Bebauung in der unmittelbaren Umgebung besteht überwiegend aus gepflegten Ein- und Mehrfamilienhäusern mit großzügigen Gärten. Die Straße zeichnet sich durch eine angenehme Nachbarschaftsatmosphäre aus.
Ein besonderes Highlight dieser Lage ist die ideale Kombination aus städtischer Infrastruktur und ruhigem Wohnambiente. Die Nähe zur Hemelinger Heerstraße ermöglicht einen schnellen Zugang zu vielfältigen Einkaufsmöglichkeiten, Gastronomiebetrieben und Dienstleistern. Gleichzeitig bleibt das direkte Wohnumfeld frei von starkem Durchgangsverkehr.
Die Nahversorgung ist an diesem Standort hervorragend. In unmittelbarer Nähe befinden sich einige Supermärkte wie PENNY (450m), REWE Markt (700m) und ein Netto Marken-Discount (750m), die alle innerhalb von 5-10 Minuten zu Fuß erreichbar sind. Für frische Backwaren sorgen mehrere Bäckereien in der Umgebung, darunter „Meyer Mönchhof“ in rund 370 Metern Entfernung sowie weitere Filialen entlang der Hemelinger Heerstraße. Drogeriemärkte wie dm oder Rossmann befinden sich in benachbarten Straßenzügen oder in den nahegelegenen Stadtteilzentren, die bequem per Bus oder Fahrrad erreichbar sind.
Das Freizeitangebot rund um die Osternadel ist vielseitig. In direkter Umgebung befinden sich mehrere Gaststätten, Cafés und Imbisse, darunter auch familienfreundliche Lokale. Für sportlich Aktive bieten sich die nahegelegene Sportanlage Hemelingen (1,2km) , Tennisplätze (290m) und ein Fitnessstudio an. Grünflächen und Parks in der Umgebung laden zu Spaziergängen oder Fahrradtouren ein. Auch kulturell hat der Stadtteil Hemelingen einiges zu bieten, darunter kleinere Bühnen wie die Aladin Music-Hall (1,7km) und Stadtteilfeste.
Die Anbindung an den öffentlichen Nahverkehr ist hervorragend. Nur etwa 500 Meter von der Haustür entfernt befindet sich die Bahn- und Bushaltestelle „Marschstraße“, die von mehreren Linien bedient wird. Die Linien 40, 41 und 44 verbinden den Stadtteil direkt mit der Innenstadt, dem Hauptbahnhof sowie weiteren Stadtteilen wie Mahndorf, Sebaldsbrück und Horn-Lehe. Der Bahnhof Bremen-Hemelingen ist ca. 1,1 Kilometer entfernt und bietet Anschluss an den Regionalverkehr in Richtung Bremen Hauptbahnhof sowie Verbindungen nach Niedersachsen. Auch mit dem Auto ist die Lage dank der Nähe zur A1 und zur B75 verkehrstechnisch sehr gut erschlossen.
Sonstige Angaben
Die Florian Wellmann Immobilien GmbH hat sich auf den Verkauf und die Vermietung von hochwertigen Immobilien spezialisiert. Seit Jahren sind wir erfolgreich am Immobilienmarkt tätig. Wir verkaufen und vermieten exklusive und außergewöhnliche Objekte in den bevorzugten Lagen von Bremen & Umgebung.
Wir sind durch beste regionale Kontakte gut vernetzt und können so unsere Objekte diskret und erfolgreich vermarkten.
Mit hohem Engagement und großer Motivation wickeln wir die Immobilien unserer Kunden ab. Beste Referenzen sprechen für unseren professionellen Service.
Sollten Sie noch weitere Informationen über unser Haus wünschen, werfen Sie einen Blick auf unsere Homepage
WWW.FLORIAN-WELLMANN.DE
Im Vorfeld bieten wir Ihnen gerne eine kostenfreie Bewertung Ihrer Immobilie an.
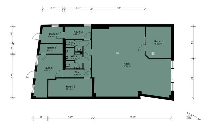
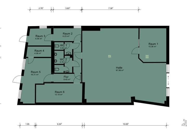
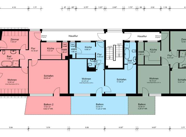
Grundriss
Grundriss Erdgeschoss
>
>
Grundriss 1. Obergeschoss
>
>
Grundriss 2. Obergeschoss
>
>
Grundriss Dachgeschoss
>
>
Adresse
28309 Bremen
Interessante Orte
Preis- und Lageinformationen
Preistrend für Bestandsimmobilien in Hemelingen