Unsere Leidenschaft, für jede Baufamilie das ideale Haus zu bauen, treibt uns nicht nur bei der Entwicklung und Produktion jedes einzelnen Hauses an. Sie lässt uns auch stetig darüber nachdenken, wie wir es noch besser machen können. Deshalb gehört Bien-Zenker seit jeher zu den innovativsten Unternehmen der Branche und steht für höchsten Qualitätsanspruch.
Bien-Zenker bietet nahezu unbegrenzte Möglichkeiten, Ihr individuelles Traumhaus zu verwirklichen.
Wunderschönes Traumgrundstück in Cossebaude mit Weitblick
01156 Dresden
Die vollständige Adresse der Immobilie erhalten Sie vom Anbieter.
Auf Karte anzeigen
Die vollständige Adresse der Immobilie erhalten Sie vom Anbieter.
Finanzierungszertifikat
In nur zwei Minuten zu Ihrem persönlichen Finanzierungszertifkat.
Infos
| Haustyp | Einfamilienhaus |
|---|---|
| Wohnfläche ca. | 258 m2 |
| Grundstücksfläche | 1.500 m2 |
| Bezugsfrei ab | sofort |
| Zimmer | 6 |
| Badezimmer | 2 |
| Anzahl Garage/Stellplatz | 5 |
Kosten
| Kaufpreis |
1.300.000 € |
|---|
Finanzierungsrechner:
Kaufpreis:
600.000 €
Eigenkapital:
600.000 €
Monatliche Rate
0 €
Effektiver Jahreszins
0 %
Sollzinsbindung
10 Jahre
Bausubstanz & Energieausweis
| Baujahr | 2027 |
|---|---|
| Bauphase | Haus in Planung (projektiert) |
| Qualität der Austattung | Luxus |
| Heizungsart | Fußbodenheizung |
Beschreibung des Objekts
Ausstattung
Dieses Angebot beinhaltet folgende Positionen:
- inkl. Schlüsselfertiges Haus auf Bodenplatte und Baunebenkosten
- inkl. Grundstückskaufpreis und Kaufnebenkosten
- inkl. Kosten für Außenanlagen
- inkl. Architekten- und Vermessungsleistungen
- inkl. kompetente Beratungs- und individuelle Planungsleistungen
- inkl. durchgängige persönliche Begleitung des gesamten Bauvorhabens
- inkl. erstklassige Bemusterungsbetreuung vom Spezialisten
- inkl. Küche und Kamin
- inkl. ausführlicher Finanzierungs- und Fördermittelberatung vor Ort
Vereinbaren Sie gerne einen Planungstermin, in dem wir ihr individuelles Angebot erstellen.
Lage
01156 Dresden Cossebaude
Grün, ruhig mit Panoramablick
Sonstige Angaben
Um Angebot und Nachfrage im exklusiven Neubausegment in Dresden und Umgebung optimal erfüllen zu können, pflege ich ein erstklassiges Netzwerk.
Sie profitieren von weitreichenden Kontakten zu Architekten, Maklern, Notaren, Sachverständigen sowie zum Garten- und Landschaftsbau.
Die Eigenschaften Diskretion, Seriosität und Zuverlässigkeit kennzeichnen seit jeher meine Arbeit! Wenn Sie sich eine professionelle Beratung wünschen, stehe ich Ihnen als erfahrene Planerin für erstklassige Neubauprojekte jederzeit zur Verfügung.
Ihre Janine Teichmann
Mobil: 0176 /303 727 90
Mail: Janine.Teichmann@bien-zenker.de
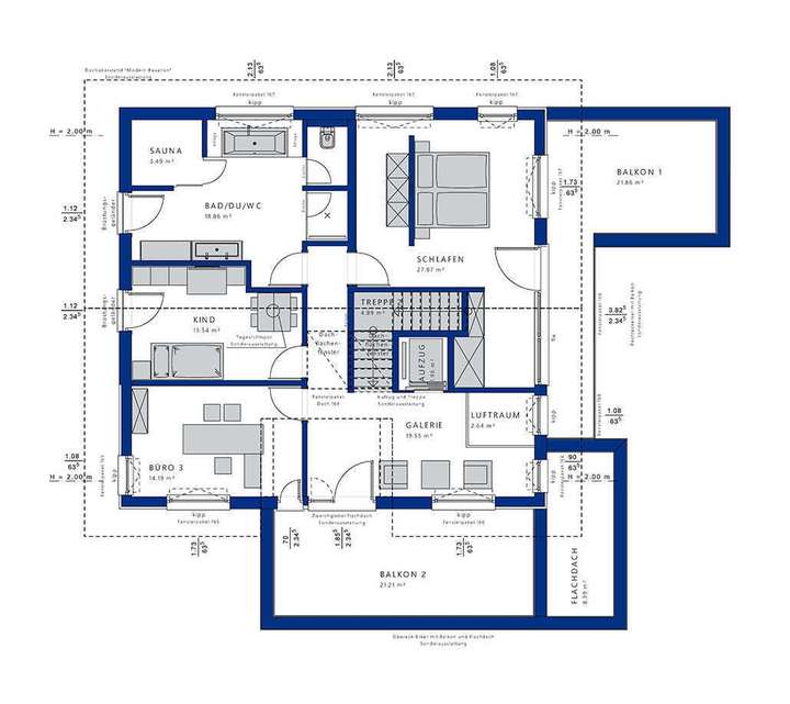
Grundriss
csm Bien-Zenker-Haeuser-Einfam
>
>
csm Bien-Zenker-Haeuser-Einfam
>
>
Adresse
01156 Dresden
Interessante Orte
Preis- und Lageinformationen
Preistrend für Bestandsimmobilien in Cossebaude/Mobschatz/Oberwartha