Erstbezug nach Sanierung: Einfamilienhaus im beliebten Stadtteil Celle Neuenhäusen
Dieses hochwertig modernisierte Einfamilienhaus vereint zeitgemäßen Wohnkomfort mit durchdachter Funktionalität.
Das Haus wurde in 2025 umfangreich von Fachfirmen aus der Region modernisiert.
Die Gewährleistung von 5 Jahren auf die ausgeführten Arbeiten kann übertragen werden.
Modernisierungen im Überblick
Neue Gas-Brennwerttherme von Viessmann (für Warmwasser und Heizung)
Neue 3-Fach verglaste Fenster (0,87 U-Wert) und neue Haustür
Neuer Sicherungskasten mit FI-Schalter und neue 3-adrige Stromleitungen
Erneuerung Schalter und Steckdosen
Erneuerung Wasser-und Heizungsleitungen
Erneuerung Bad und WC mit hochwertigen Sanitärobjekten von Villeroy und Boch
Neue Vinyl-Bodenbeläge
Neu tapeziert und weiß gestrichen
Neuer Vorgartenzaun
Neben den umfangreichen Modernisierungen hat das Haus bereits eine hochwertige Einbauküche.
Ein weiteres Highlight ist die nach Westen ausgerichtete Dachterrasse auf der man bis in den Abend hinein die Sonne genießen kann.
Fazit
Sofort einziehen und wohlfühlen! Dieser Einfamilienhaus im beliebten Stadtteil Neuenhäusen bietet nicht nur eine zentrale und gleichzeitig ruhige Wohnlage, sondern auch eine moderne Ausstattung und vielfältige Nutzungsmöglichkeiten. Perfekt für alle, die ein gepflegtes Zuhause mit zusätzlichem Platzangebot im Keller und großem Garten suchen.
Hinweis: Teile des Exposés können KI-geniert sein
Erstbezug nach Sanierung: Einfamilienhaus in Celle Neuenhäusen
29221 Celle
Die vollständige Adresse der Immobilie erhalten Sie vom Anbieter.
Auf Karte anzeigen
Die vollständige Adresse der Immobilie erhalten Sie vom Anbieter.
Finanzierungszertifikat
In nur zwei Minuten zu Ihrem persönlichen Finanzierungszertifkat.
Infos
| Haustyp | Einfamilienhaus |
|---|---|
| Wohnfläche ca. | 125 m2 |
| Grundstücksfläche | 583 m2 |
| Zimmer | 5 |
| Schlafzimmer | 4 |
| Badezimmer | 2 |
Kosten
| Kaufpreis |
329.000 € |
|---|---|
| Provision |
3,57% inkl. 19% MwSt. jeweils vom Käufer und Verkäufer 3,57% inkl. 19% MwSt. jeweils vom Käufer und Verkäufer |
Finanzierungsrechner:
Kaufpreis:
600.000 €
Eigenkapital:
600.000 €
Monatliche Rate
0 €
Effektiver Jahreszins
0 %
Sollzinsbindung
10 Jahre
Bausubstanz & Energieausweis
| Baujahr | 1962 |
|---|---|
| Letzte Sanierung | 2025 |
| Objektzustand | Erstbezug nach Sanierung |
| Qualität der Austattung | Gehoben |
| Heizungsart | Gas-Heizung |
| Wesentliche Energieträger | Gas |
| Energieausweis | liegt zur Besichtigung vor |
Beschreibung des Objekts
Lage
Lagebeschreibung:
Diese Immobilie befindet sich in einer charmanten Wohngegend von Celle, einer Stadt mit reichem historischen Erbe und moderner Annehmlichkeit. Die Lage bietet eine ideale Mischung aus Ruhe und Nähe zu städtischen Annehmlichkeiten.
Nur wenige Minuten vom Stadtzentrum entfernt, genießen Sie den Komfort von Einkaufsmöglichkeiten, Restaurants und Cafés direkt vor Ihrer Haustür.
Die Anbindung an den öffentlichen Nahverkehr ist hervorragend, sodass Sie schnell und bequem in andere Teile der Stadt oder in die umliegenden Regionen gelangen können.
Schulen, Kindergärten und medizinische Einrichtungen sind in der Nähe, was diese Lage besonders für Familien attraktiv macht.
Die historische Altstadt von Celle mit ihren Fachwerkhäusern und dem malerischen Schloss ist nur einen kurzen Spaziergang entfernt und bietet ein einzigartiges Flair.
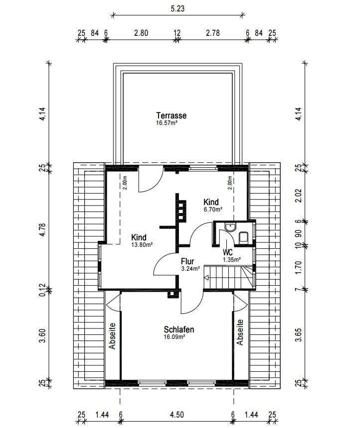
Grundriss
Grundriss_OG
>
>
Grundriss_EG
>
>
Adresse
29221 Celle
Interessante Orte
Preis- und Lageinformationen
Preistrend für Bestandsimmobilien in Celle