Auch ihr wollt in eine sichere Zukunft blicken? Dann lest die nachfolgenden Zeilen aufmerksam durch und meldet euch, wenn euch der erste Eindruck schon mal gefällt. Ich freue mich, euch bald kennenzulernen und euch auf diesem Weg begleiten zu dürfen! Gemeinsam besprechen wir EUER INDIVIDUELLES Vorhaben und machen alles dafür, es in die Realität umzusetzen! Eine Zusammenarbeit auf Augenhöhe, ein gemeinsames Miteinander, Hand in Hand!
Wir bieten euch unser ANTI-INFLATIONS-PAKET:
250.000EUR SONDERDARLEHEN - Mit einem Zinsvorteil, welcher 0,5% unter dem Marktwert liegt. So erhaltet ihr mehr Leistung für weniger Geld!
MEHR IST MÖGLICH : EINGEBAUTE ENERGIEPREISBREMSE - Mit unserem I-KON Konzept produziert euer Haus mehr Energie, als benötigt wird. In Verbindung mit der Speicherbatterie macht ihr euren Strom fast selbst. Das Bisschen, was ihr zukauft, macht euch keine grauen Haare mehr!
18 MONATE FESTPREISGARANTIE - Auch auf Küche, Bodenbeläge, Badausstattung und vielem mehr. Der absolute Inflationsstop bei eurem Bauvorhaben!
BAU-VOLLKASKO - Weil ihr beim Bau einiges an Versicherungen benötigt, haben wir für euch daran gedacht. Das verschafft euch einen freien Kopf für Dinge, mit denen ihr euch lieber beschäftigt!
Und damit ihr immer einen Überblick über euren Hausbau habt, haben wir für euch eine App entwickelt. Diese zeigt euch den aktuellen Fortschritt, die nächsten Schritte, und hält für euch immer alle Pläne und Dokumente bereit. Egal wo ihr seid, euer Haus habt ihr immer dabei. Es wird nichts vergessen und ihr könnt euch mit gutem Gewissen entspannte Abende gönnen!
In Punkto Qualität seid ihr mit uns ganz oben angekommen. Wände mit Gipskarton-Platten an denen alles nur umständlich zu befestigen ist, sucht ihr in eurem Livinghaus vergebens. Trotz moderner Verglasung welche euch an sonnigen Tagen in der Vorübergangszeit die wohlige Wärme ins Haus holt, müsst ihr im Sommer nicht schwitzen. Denn euer Livinghaus kann auch kühlen. Und wann müssen wir kühlen? Wenn die Sonne scheint. Und woher kommt euer Strom dafür? KOSTENFREI von eurem Dach
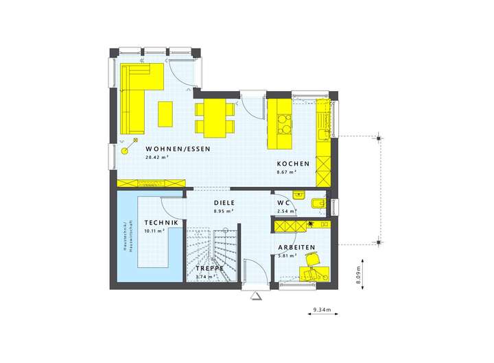
Großzügiges Einfamilienhaus mit 133qm - Ihr neues Zuhause in Pfuhl
89365 Röfingen
Die vollständige Adresse der Immobilie erhalten Sie vom Anbieter.
Auf Karte anzeigen
Die vollständige Adresse der Immobilie erhalten Sie vom Anbieter.
Finanzierungszertifikat
In nur zwei Minuten zu Ihrem persönlichen Finanzierungszertifkat.
Infos
| Haustyp | Einfamilienhaus |
|---|---|
| Wohnfläche ca. | 125 m2 |
| Grundstücksfläche | 430 m2 |
| Zimmer | 4 |
| Badezimmer | 1 |
Kosten
| Kaufpreis |
511.000 € |
|---|
Finanzierungsrechner:
Kaufpreis:
600.000 €
Eigenkapital:
600.000 €
Monatliche Rate
0 €
Effektiver Jahreszins
0 %
Sollzinsbindung
10 Jahre
Bausubstanz & Energieausweis
| Baujahr | 2026 |
|---|---|
| Bauphase | Haus in Planung (projektiert) |
| Objektzustand | Erstbezug |
| Qualität der Austattung | Gehoben |
| Heizungsart | Wärmepumpe |
| Energieausweis | liegt vor |
| Energieausweistyp | Bedarfsausweis |
| Energieverbrauchskennwert | 18,0 kWh/(m²*a) |
| Energieeffizienzklasse | A+ |
18,0
kWh/(m²*a)
Energieeffizienzklasse A+
- A+
- A
- B
- C
- D
- E
- F
- G
- H
- 0
- 25
- 50
- 75
- 100
- 125
- 150
- 175
- 200
- 225
- >250
Beschreibung des Objekts
Ausstattung
SUNSHINE 125 V2 - EINFAMILIENHAUS MIT SATTELDACH
Du weißt genau, was du vom Leben willst. Und von deinen eigenen vier Wänden. Du möchtest keine Kompromisse eingehen. Das musst du auch nicht. Wie dein Sunshine 125 aussieht, entscheidest ganz allein du selbst. Du zeigst gerne klare Kante? Oder bist du eher der verspielte Typ? Mit verschiedenen Dachvarianten und designstarken Architektur-Bauteilen bringst du deinen Stil zum Ausdruck. Das gilt natürlich auch für die Innengestaltung. Ein echtes Highlight ist die lichtdurchflutete Galerie im Obergeschoss - der ideale Platz für einen gemütlichen Ohrensessel. Oder für einen großen Schreibtisch. Mit Blick ins Grüne arbeitet es sich gleich viel leichter. Du brauchst ein zweites Kinderzimmer? Kein Problem, dann ersetze den offenen Durchgang einfach durch eine Tür. Du hast es in der Hand!
In diesem Angebot enthalten:
- 18 Monate Festpreisgarantie!
- Baugrundstück
- auf den Grundriss individuell geplante Küche mit Kochinsel, Softclose, Induktion, Spülmaschine und vielem mehr!
- Haus mit Kühlfunktion und LLWP
- Bodenplatte
- Fenster, Außenfensterbänke, Rollladenführungsschienen und -endleisten in RAL Frabe
- komplettes hochwertiges Material für das Ausbauhaus (Boden- und Wandbeläge, Innentüren, Sanitärobjekte, bis hin zum Handtuchhalter ist alles enthalten)
- Photovoltaikanlage mit 8kWp
- Stromspeicher VARTA pulse neo 10 kWh
- Elektroinstallation durch Livinghaus
- Sanitärrohinstallation durch Livinghaus
- Dämmung und Beplankung durch Livinghaus
- Estricharbeiten durch Livinghaus
- Ausbaucoach für 3 Tage auf eurer eigenen Baustelle (DiY - Academy)
- Architektenleistung
- Vemesser und Bodengutahten
- nach Wunsch QNG möglich
- Finanzierungsservice mit Sonderkonditionen
- Baucockpit App damit ihr immer die nächsten Schritte im Blick habt
- DGNB Zertifikat in GOLD
Lage
Im Verkauf stehen nur noch ein Bauplätze für Ihr Einfamilienhaus.
Seltene Gelegenheit: Ihr Baugrundstück in bester zentraler Lage von Röfingen, Röfingen liegt zweischen Burgau und Jettingen-Scheppach mit Besten Anbindung zur Autobahn.
Lage & Umfeld:
Dieses attraktive Grundstück befindet sich in der ruhigen, charmanten Lage in 89365 Röfingen. Röfingen liegt im Landkreis Günzburg, im Regierungsbezirk Schwaben, und bietet eine gute Infrastruktur in ländlicher Umgebung.
Das Grundstück ist eingebettet in einem gewachsenen Wohngebiet mit gepflegten Nachbarhäusern, mit viel Grün und guter Anbindung an Straßen und Versorgungseinrichtungen.
Erschließung & Infrastruktur:
Das Grundstück ist voll erschlossen - alle wichtigen Anschlüsse wie Wasser, Strom, Kanal und Telekommunikation sind vorhanden oder liegen in der Straße. Die Zufahrt erfolgt über eine befestigte Straße. Örtliche Versorgung (Einkauf, Kindergarten, Grundschule) ist in wenigen Minuten erreichbar. Öffentliche Verkehrsmittel und Autobahnanschluss sind ebenfalls gut erreichbar, was die Lage auch für Pendler attraktiv macht.
Größe & Gestaltungsmöglichkeiten:
Das Grundstück bietet ausreichend Fläche für die Errichtung eines Einfamilienhauses oder Doppelhauses, inklusive Gartenflächen, Carport oder Garage. Es eignet sich ideal für Bauherren, die Ruhe suchen, aber nicht auf Komfort und Nähe zur Infrastruktur verzichten möchten.
Highlights:
Ruhige Wohnlage bei gleichzeitig guter Anbindung
Gepflegtes Umfeld und ländlicher Charme
Flexibilität bei Bebauung und Gestaltung
Attraktive Wohnqualität für Familie, Paare oder als Kapitalanlage
Ideal für:
Alle, die ein Grundstück suchen, auf dem sie ihr Traumhaus realisieren können - sei es modern, klassisch oder individuell - in naturnaher Umgebung, ohne auf Infrastruktur verzichten zu müssen.
Adresse
89365 Röfingen
Interessante Orte
Preis- und Lageinformationen
Preistrend für Bestandsimmobilien in Röfingen