Sehr geehrte Leser dieses Exposés,
wir freuen uns sehr, Ihnen mit den vorliegenden Unterlagen eine Rarität auf dem Immobilienmarkt des Münchner Ostens präsentieren zu können. Es handelt sich um ein geräumiges und exzellent ausge-stattetes Einfamilienhaus in der Gemeinde Steinhöring bei Ebersberg.
Das Gebäude wurde im Jahr 2009 in solider Massivbauweise errichtet, mit 42,5 cm starken Außenmauern, einer wasserundurchlässigen Kellerausführung (sog. 'weiße Wanne') mit außenseitiger wandhoher Perimeterdämmung. Die Wohnfläche beträgt stattliche 194 m² (inkl. Terrassenanteile), hinzu kommt eine Nutzfläche von rund 185 m², insgesamt stehen den Bewohnern des Hauses also fast 380 m² (!) nutzbare Fläche zur Verfügung. Eine Doppelgarage ist bei dieser Hauskategorie fast schon zu erwarten, in unserem Fall ist sie erfreulich geräumig ausgefallen.
Das Grundstück mit einer Größe von 613 Quadratmetern ist ein perfekter Rahmen für dieses Haus, lässt sich andererseits aber noch gut pflegen.
Die Lage am Ortsrand mit freiem Ausblick nach Osten und Südosten ist einfach herrlich: sehr schön ruhig, und sollten Sie ein Haustier haben (oder gerne haben wollen), hier ist es perfekt. Katzen können nach Belieben dem Freigang frönen, und ein Hund wird es sicherlich genießen, dass Sie gleich neben/hinter dem Haus kilometerweit laufen können.
À propos laufen: Tür auf und losjoggen, das hat doch was ?!
Lassen Sie sich von unseren Bildern überzeugen, dass diese Immobilie etwas ganz Besonderes ist.
Das Haus kann nach individueller Absprache übergeben werden, bei Bedarf und auf Wusch auch kurzfristig.
Geräumiges neuwertiges Einfamilienhaus in herrlich ruhiger Lage der Gemeinde Steinhöring
85643 Steinhöring
Die vollständige Adresse der Immobilie erhalten Sie vom Anbieter.
Auf Karte anzeigen
Die vollständige Adresse der Immobilie erhalten Sie vom Anbieter.
Finanzierungszertifikat
In nur zwei Minuten zu Ihrem persönlichen Finanzierungszertifkat.
Infos
| Haustyp | Einfamilienhaus |
|---|---|
| Etagenzahl | 3 |
| Wohnfläche ca. | 194 m2 |
| Nutzfläche | 185 m2 |
| Grundstücksfläche | 613 m2 |
| Bezugsfrei ab | sofort |
| Zimmer | 5 |
| Schlafzimmer | 4 |
| Badezimmer | 2 |
| Garage/Stellplatz | Garage |
| Anzahl Garage/Stellplatz | 2 |
Kosten
| Kaufpreis |
1.250.000 € |
|---|---|
| Provision |
2,38 % inkl. MwSt. Käuferprovision 2,38 % Käuferprovision inkl. MwSt., verdient und fällig mit Beurkundung des notariellen Kaufvertrages. Der Makler hat einen provisionspflichtigen Maklervertrag mit dem Verkäufer in gleicher Höhe abgeschlossen. |
Finanzierungsrechner:
Kaufpreis:
600.000 €
Eigenkapital:
600.000 €
Monatliche Rate
0 €
Effektiver Jahreszins
0 %
Sollzinsbindung
10 Jahre
Bausubstanz & Energieausweis
| Baujahr | 2009 |
|---|---|
| Bauphase | Haus fertig gestellt |
| Objektzustand | Neuwertig |
| Qualität der Austattung | Gehoben |
| Wesentliche Energieträger | Erdwärme |
| Energieausweis | liegt vor |
| Energieausweistyp | Bedarfsausweis |
| Energieverbrauchskennwert | 15,0 kWh/(m²*a) |
| Energieeffizienzklasse | A+ |
15,0
kWh/(m²*a)
Energieeffizienzklasse A+
- A+
- A
- B
- C
- D
- E
- F
- G
- H
- 0
- 25
- 50
- 75
- 100
- 125
- 150
- 175
- 200
- 225
- >250
Beschreibung des Objekts
Ausstattung
2009 in Massivbauweise errichtet, mit 42,5 cm starken Ytong-Steinen als Außenmauerwerk;
Wasserundurchlässige Kellerausführung, mit außenseitiger wandhoher Perimeterdämmung;
Satteldach mit nach Süden ausgerichtetem Zwerchgiebel, mit jeweils 24° steiler Dachneigung;
Dacheindeckung mit ziegelroten Flachdachpfannen, Spenglerarbeiten in zeitlosem Titanzink;
Gute Raumhöhe in allen Geschossen, auch im Kellergeschoss;
Erdwärmepumpe mit Solarthermie;
Solarthermieanlage mit 5 Feldern auf dem Süddach zur Unterstützung der Warmwasserbereitung;
Fußbodenheizung in allen Wohnräumen, auch im Untergeschoss;
Großes 'Wohlfühlbad' im 1.OG, mit bodengleicher Dusche, Waschbecken, WC, Urinal und Bidet, sowie Fenster; es besteht die Möglichkeit, eine Badewanne einzubauen;
'Gäste-Bad' im EG, ebenfalls mit ebener Dusche, Waschbecken, WC, Urinal und Bidet, Anschlussmöglichkeit für Waschmaschine/Trockner, Fenster;
33 m² großer Hobbyraum im UG, mit zahlreichen Steckdosen, TV- und Internetanschluss;
3-fach verglaste Fenster (Holz-Alu-Fenster, außen in Graualuminium), elektrisch bedienbare Rollos;
Kaminofen im EG, in bester, zentraler Position;
Weiterer Ofen im OG, ebenfalls mittig im Haus;
Exzellent ausgestattete Küche mit Granit-Arbeitsplatten in edlem anthrazit;
Treppe in Stahlbeton vom Keller bis zum Obergeschoss, mit Trittstufen aus Hartholz;
Heller Fliesenbelag in allen Etagen, in perfekter Harmonie mit der Fußbodenheizung;
Böden auf allen Etagen schwellenfrei, also ohne 'Stolperfallen';
Internet mit hoher Geschwindigkeit, bis 1000 Mbit/sec;
Hohe Anzahl von Steckdosen, auch in den Kellerräumen und der Garage;
Hochwertige Schreiner-Einbauschränke im Untergeschoss, Erdgeschoss und Dachgeschoss;
Erdwärmepumpe;
Großdimensionierter Wärmespeicher für Heizung und Warmwasser im Technikraum;
Fußbodenheizung in allen Etagen;
Lüftungsanlage mit Wärmetauscher, kaum Wärmeverlust, aber immer frische Luft;
Klimaanlage im Wohnzimmer und im Atelier-Schlafzimmer für besonders heiße Sommer;
Entkalkungsanlage für angenehmes weiches Wasser;
Große Regenwasser-Zisterne zur Gartenbewässerung, mit Pumpanlage;
Doppelgarage, 41 m², mit elektrisch bedienbarem Tor (auch mit Fernsteuerung), direktem Hauszugang und Tür zum Garten;
Wallbox in der Garage zum Laden von E-Fahrzeugen;
Zentralstaubsauger-Anlage, d.h. im Haus keine Feinstaubentwicklung beim Saugen, zusätzlich sehr geräuscharm;
380-Volt-Starkstromanschluss in einem der Kellerräume, zum Anschluss einer Sauna;
Südterrasse überdacht, mit seitlicher Verglasung und Beschattungsanlage;
50 m² große Westterrasse, ideal für gemütliche Barbecues.
Lage
Die Gemeinde Steinhöring befindet sich im Landkreis Ebersberg, ca. 7 Kilometer östlich der Kreisstadt an der B304 gelegen, mit den Ortsteilen zusammen zählt die Gemeinde rund 4.200 Einwohner. In Steinhöring gibt es eine Grundschule, 3 Kindergärten (mit Krippe und Hort), ein Jugendzentrum, eine Bücherei und das Betreuungszentrum 'EVS Steinhöring'. Die Lage zeichnet sich durch eine gute Balance zwischen ländlicher Idylle und urbaner Nähe aus und ist eingebettet in eine attraktive oberbayerische Voralpen-Landschaft.
Einkaufsmöglichkeiten für den täglichen Bedarf und auch die ärztliche Betreuung sind vor Ort vorhanden, eine Klinik und Behörden sind in der Kreisstadt Ebersberg zu finden. Ein Sportzentrum, Fußball- und Tennisplätze, zwei überregional bekannte Golfclubs, ein kleiner Badesee und viele Rad- und Wanderwege laden zu sportlichen Aktivitäten ein. Über die nahe B304 (Zufahrt in ca. 400 Meter Entfernung) erreicht man rasch Ebersberg, Grafing, Wasserburg (15 km) und München (Stadtrand 30 km = 25 Minuten, Innenstadt 45 km = 40 Minuten). Über die A94, Auffahrt 'Hohenlinden', 20 Kilometer bzw. 18 Fahrminuten entfernt gelangt man zum Flughafen und zur Messe München im Stadtteil 'Riem'. Nur 500 Meter bzw. 6 Gehminuten entfernt befindet sich der Bahnhof des 'Filzenexpress', der im Stundentakt zwischen Wasserburg und München verkehrt. Bis zum Ostbahnhof in München dauert die Fahrt rund 40 Minuten. Ab Ebersberg besteht Umsteigemöglichkeit zur S4/S6 nach München. Außerdem gibt es eine Rufbuslinie, die die außenliegenden Ortsteile verbindet.
Für Naturfreunde gibt es in der Umgebung viele Möglichkeiten zum Wandern, Radfahren, Reiten und Golfen. Es befinden sich mehrere Reitpensionen und zwei Golfplätze im nahen Umkreis. Ein beliebtes Ausflugsziel ist der nahegelegene Ebersberger Forst, der eine Fläche von über 6.000 Hektar umfasst und zahlreiche Wanderwege und Radlrouten bietet. Auch der nahegelegene Klostersee lädt zum Baden und Entspannen ein.
In Steinhöring und Umgebung gibt es mehrere Geschäfte und Restaurants, mit einer Auswahl an lokalen Erzeugnissen sowie bayerischer, italienischer und asiatischer Küche. Größere Einkäufe und Unterhaltungsmöglichkeiten bieten die nahegelegenen Städte Ebersberg und Grafing an.
Erwähnenswert ist auch das nur 12 km entfernte Wasserburg am Inn, mit seinem besonderen Flair und vielen kulturellen Highlights.
Sonstige Angaben
Der Kaufpreis beträgt EUR 1.250.000,- inkl. Garage, Einbauküche, Gartenhaus und allen Einbauten.
Beim Abschluss des notariellen Kaufvertrages stellen wir dem Käufer eine Nachweis- und/oder Vermittlungsprovision in Höhe von 2,38 % inkl. ges. MwSt. in Rechnung.
Wir haben einen provisionspflichtigen Maklervertrag mit dem Verkäufer in gleicher Höhe geschlossen.
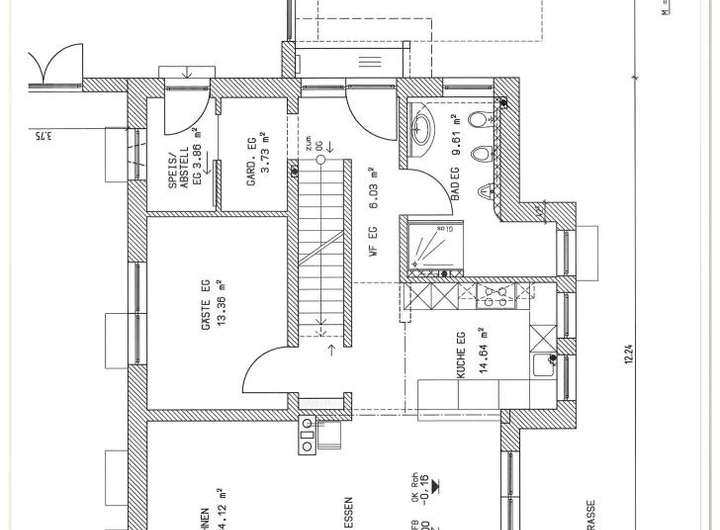
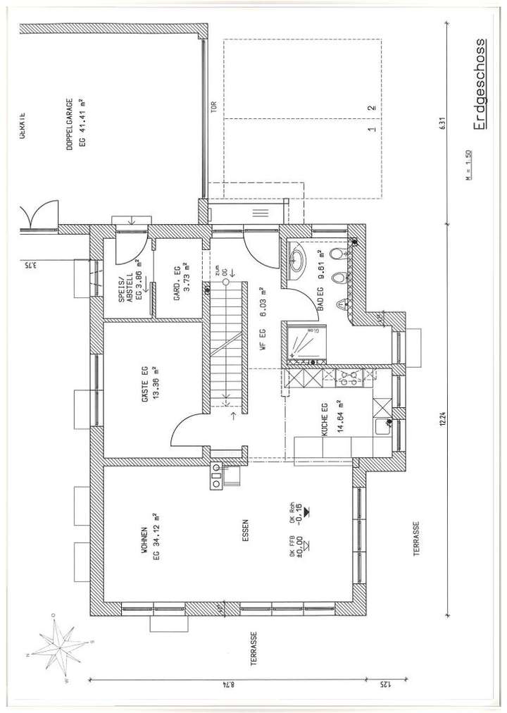
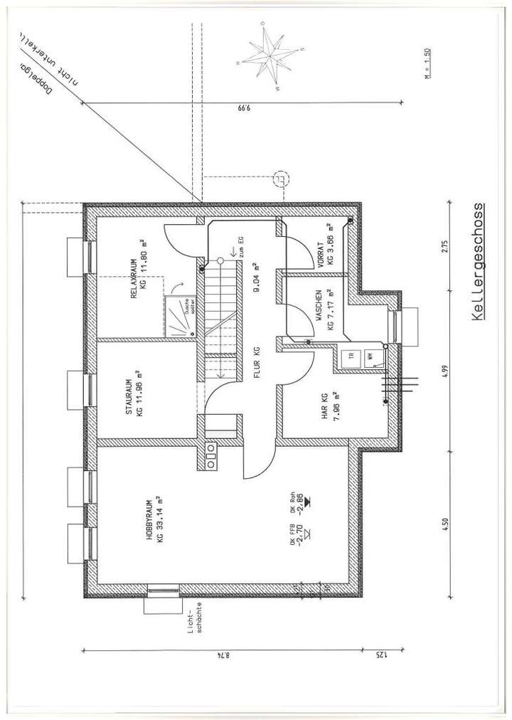
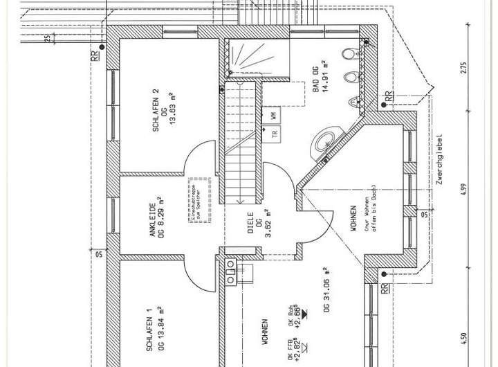
Grundriss
Grundriss EG
>
>
Grundriss OG
>
>
Grundriss UG
>
>
Adresse
85643 Steinhöring
Interessante Orte
Preis- und Lageinformationen
Preistrend für Bestandsimmobilien in Steinhöring