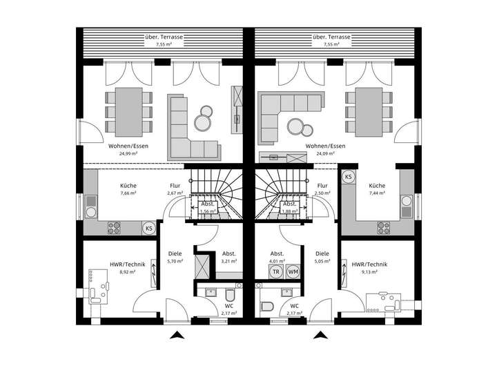
Willkommen in Ihrem zukünftigen Zuhause! Dieses modern gestaltete Doppelhaus in Straubing bietet Ihnen die perfekte Kombination aus stilvollem Wohnen und effizienter Flächennutzung. Mit einer großzügigen Wohnfläche von 118,20 m² auf einem 280 m² großen Grundstück haben Sie ausreichend Platz für Ihre Familie. Das durchdachte Raumkonzept mit 3 Schlafzimmern und 2 Badezimmern, darunter ein Badezimmer mit Dusche, Wanne und Fenster sowie ein zusätzliches Gäste-WC, ermöglicht Ihnen und Ihren Lieben ein komfortables und harmonisches Zusammenleben. Ein besonderes Highlight ist die Bauweise nach KfW 40 Standard, die Ihnen nicht nur ein angenehmes Wohnklima, sondern auch eine hohe Energieeffizienz garantiert. Lassen Sie sich von den Vorteilen eines modernen Doppelhauses überzeugen!
Doppelhaushälte KFW-Effizienshaus 40 mit Grundstück!
94315 Straubing
Die vollständige Adresse der Immobilie erhalten Sie vom Anbieter.
Auf Karte anzeigen
Die vollständige Adresse der Immobilie erhalten Sie vom Anbieter.
Finanzierungszertifikat
In nur zwei Minuten zu Ihrem persönlichen Finanzierungszertifkat.
Infos
| Haustyp | Doppelhaushaelfte |
|---|---|
| Etagenzahl | 2 |
| Wohnfläche ca. | 118 m2 |
| Grundstücksfläche | 280 m2 |
| Bezugsfrei ab | 2026 |
| Zimmer | 4 |
| Schlafzimmer | 3 |
| Badezimmer | 2 |
Kosten
| Kaufpreis |
470.839 € |
|---|
Finanzierungsrechner:
Kaufpreis:
600.000 €
Eigenkapital:
600.000 €
Monatliche Rate
0 €
Effektiver Jahreszins
0 %
Sollzinsbindung
10 Jahre
Bausubstanz & Energieausweis
| Baujahr | 2026 |
|---|---|
| Letzte Sanierung | 2026 |
| Bauphase | Haus in Planung (projektiert) |
| Qualität der Austattung | Gehoben |
| Heizungsart | Wärmepumpe |
| Energieausweis | liegt zur Besichtigung vor |
Beschreibung des Objekts
Ausstattung
Die Ausstattung dieses Doppelhauses ist gehoben und entspricht höchsten Ansprüchen. Die Verwendung einer umweltfreundlichen Wärmepumpe sorgt für eine nachhaltige Beheizung und Kühlung Ihres Zuhauses. Dank der hervorragenden Schallisolierung der STREIF Wandkonstruktion wohnen Sie nicht nur komfortabel, sondern auch ruhig und ungestört. Die Ausbaustufe "FastFertigPlus" beinhaltet bereits eine umfassende Sanitär-Grundausstattung, sodass Sie sich auf die handwerklichen Arbeiten konzentrieren können, während die Fachbetriebe die haustechnischen Gewerke für Sie übernehmen.
Lage
Das Doppelhaus befindet sich in einem ruhigen Wohngebiet in Straubing. Die Lage bietet Ihnen eine hervorragende Infrastruktur mit Einkaufsmöglichkeiten, Schulen und Freizeitangeboten in unmittelbarer Nähe. Genießen Sie die Vorzüge einer Stadt, die durch ihre charmante Altstadt und vielfältige Freizeitmöglichkeiten besticht. Ob Spaziergänge in der Natur oder kulturelle Veranstaltungen - Straubing hat für jeden etwas zu bieten.
Sonstige Angaben
Mit STREIF haben Sie die Wahl zwischen vier verschiedenen Ausbaustufen, die es Ihnen ermöglichen, Ihr Traumhaus ganz nach Ihren Wünschen zu gestalten. In der Ausbaustufe 3 - FastFertigPlus können Sie aktiv an der Erstellung Ihres Hauses mitwirken, während die wichtigen haustechnischen Gewerke von erfahrenen Fachbetrieben realisiert werden. Der Preis für dieses attraktive Doppelhaus beginnt bei 344.375 EUR. Lassen Sie sich von der Flexibilität und den individuellen Gestaltungsmöglichkeiten überzeugen, die Ihnen STREIF bietet!
Adresse
94315 Straubing
Interessante Orte
Preis- und Lageinformationen
Preistrend für Bestandsimmobilien in Haid