Diese exklusive Erdgeschoss-Wohnung begeistert vom ersten Moment an durch ihre lichtdurchfluteten Räume und den großzügigen Schnitt. Trotz der zentralen Lage genießen Sie hier absolute Ruhe – Verkehrslärm ist innerhalb der Wohnung nicht wahrnehmbar und auch im Außenbereich nur dezent zu hören.
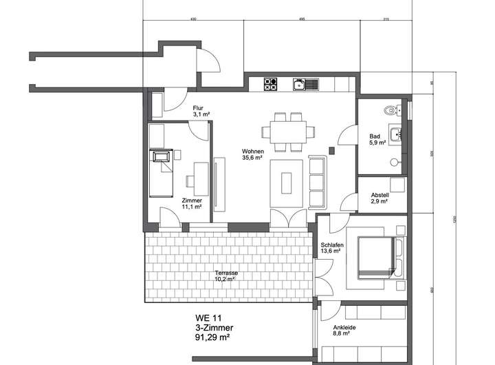
Beim Betreten der Wohnung empfängt Sie ein einladender Flur mit Garderobenbereich. Folgen Sie dem Flur, finden Sie auf der rechten Seite das erste Schlafzimmer. Auf rund 11 m² haben Sie ausreichend Platz für ein Bett, Schrank und Schreibtisch. Von hier können Sie auch direkt auf die Terrasse gehen.
Folgen Sie dem Flur weiter, gelangen Sie in den großzügigen Wohn- und Essbereich – das Herzstück der Wohnung. Die über 35 m² bieten Raum für einen großen Esstisch, eine gemütliche Sofalandschaft sowie individuelle Gestaltungsideen.
Von hier aus gelangen Sie auf die Terrasse und die weiteren Räume der Wohnung. Je nach Tageszeit oder Stimmung können Sie den perfekten Außenbereich wählen – ob sonnig oder schattig, gesellig oder ruhig.
Das stilvoll gestaltete Badezimmer auf rund 6 m², bietet es eine moderne Dusche, ein Waschbecken sowie eine Toilette – perfekt, um entspannt in den Tag zu starten.
Direkt daneben befindet sich ein praktischer Abstellraum, der zusätzlichen Stauraum für Haushaltsutensilien, Vorräte oder persönliche Gegenstände bietet.
Neben dem Abstellraum ist das 2. Schlafzimmer gelegen. Mit 13,6 m² ist es knapp 2 m² größer als das 1. Schlafzimmer, hat ebenfalls direkten Zugang zu der Terrasse und ein eigenes Ankleidezimmer.
Zur Wohnung gehören außerdem ein abschließbarer Kellerraum sowie ein Stellplatz in der Tiefgarage und ein Aussenstellplatz. Die Kellerabteile sind durch Stahlpaneelwände voneinander getrennt, verfügen über Beleuchtung, Steckdose und eine mechanische Belüftung – durchdacht bis ins Detail.
Neubau-Erdgeschosswohnung mit Terrasse und Garten
85570 Markt Schwaben
Die vollständige Adresse der Immobilie erhalten Sie vom Anbieter.
Auf Karte anzeigen
Die vollständige Adresse der Immobilie erhalten Sie vom Anbieter.
Finanzierungszertifikat
In nur zwei Minuten zu Ihrem persönlichen Finanzierungszertifkat.
Infos
| Wohnungskategorie | Erdgeschosswohnung |
|---|---|
| Etagenzahl | 3 |
| Wohnfläche ca. | 91 m2 |
| Nutzfläche | 101 m2 |
| Zimmer | 4 |
| Schlafzimmer | 2 |
| Badezimmer | 1 |
Kosten
| Kaufpreis |
780.000 € |
|---|---|
| Provision |
3% |
Finanzierungsrechner:
Kaufpreis:
600.000 €
Eigenkapital:
600.000 €
Monatliche Rate
0 €
Effektiver Jahreszins
0 %
Sollzinsbindung
10 Jahre
Bausubstanz & Energieausweis
| Baujahr | 2024 |
|---|---|
| Objektzustand | Erstbezug |
| Heizungsart | Fernwärme |
| Wesentliche Energieträger | Fernwärme |
Beschreibung des Objekts
Ausstattung
Gesamtes Gebäude barrierefrei
Aufzug
Fußbodenheizung
Tiefgaragenstellplatz
Aussenstellplatz
Begehbarer Kleiderschrank
Offenes Küchendesign
Lage
Die 4-Zimmer-Wohnung liegt im Herzen von Markt Schwaben, an der nördlichen Grenze des oberbayerischen Landkreises Ebersberg. Dank der exzellenten öffentlichen Verkehrsanbindung, der ruhigen Lage, vielfältigen Freizeitmöglichkeiten und der Nähe zu München, bietet Markt Schwaben eine hohe Lebensqualität.
Geschäfte des täglichen Bedarfs, wie Bäcker, Supermärkte oder Drogerien, sind zu Fuß schnell erreichbar. Auch Kindergärten und Schulen aller Sparten sind vor Ort, was für Familien einen entscheidenden Vorteil bietet.
Weitere Highlights in der Umgebung sind der Theaterverein Markt Schwaben, der Wildpark Poing, das Schloss Aufhausen sowie das Indoor-Tauchzentrum Divers Indoor.
Auch Sportaktivitäten kommen nicht zu kurz. In nur 5 Minuten sind Sie zu Fuß beim ortsansässigen Turnverein Markt Schwaben und in 5 Minuten mit dem Auto bei der Spielvereinigung Markt Schwaben.
Die S-Bahn Haltestelle “Markt Schwaben” ist bequem zu Fuß in 5 Minute erreichbar. Mit der S2 sind Sie in nur 30 Minuten am Münchner Hauptbahnhof.
Mit dem Auto benötigen Sie ca. 35 Minuten zum Hauptbahnhof, 7 Minuten zur Autobahn A94 und 23 Minuten zum Flughafen Franz Josef Strauß.
Sonstige Angaben
PROVISION
Die Courtage in Höhe von 3 % zzgl. des derzeit gesetzlichen Mehrwertsteuersatzes auf den Kaufpreis ist mit dem Zustandekommen des Kaufvertrages (notarieller Vertragsabschluss) verdient und fällig. Die Höhe der Bruttocourtage unterliegt einer Anpassung bei Steuersatzänderung.
GESETZLICHES WIDERRUFSRECHT
Mit der Novellierung des Verbraucherrechts sind wir als Makler verpflichtet unsere Kunden (Privatkunden) über Ihre gesetzlichen Widerrufsrechte zu informieren. Bitte beachten Sie hierfür die Widerrufsbelehrung.
N O T A R V E R T R A G
Vor Beurkundung erhalten Sie einen Kaufvertragsentwurf, um anstehende Fragen vorab zu klären.
S C H A D E N E R S A T Z P F L I C H T
Dieses Angebot ist ausschließlich für Sie, als Empfänger, bestimmt und somit vertraulich zu behandeln, bei Weiterleitung an Dritte entsteht Schadenersatzpflicht.
H I N W E I S
Gemäß §§ 10 und 11 MaBV weisen wir darauf hin, dass wir Vermögenswerte nicht entgegen nehmen und für Sie bis auf Widerruf tätig werden. Irrtum vorbehalten. Die im Exposé genannten Fakten beruhen auf Aussagen des Eigentümers. Wir können hier im Einzelfall keine Gewähr übernehmen.
V E R K A U F S V E R H A N D L U N G E N
Der Eigentümer hat uns ausdrücklich beauftragt, die Verhandlungen im Rahmen des Alleinauftrages für ihn zu übernehmen.
Grundriss
Grundriss
>
>
Adresse
85570 Markt Schwaben
Interessante Orte
Preis- und Lageinformationen
Preistrend für Bestandsimmobilien in Markt Schwaben