Das Wohnhaus wurde 2000 in Massivbauweise errichtet und bietet mit 4 Zimmern inkl. einem zum Wohn/Schlafraum ausgebautem Keller entspannten Wohnbereich für eine Familie.
In 2023 wurden eine Viessmann-Wärmepumpe und eine Photovoltaik-Anlege mit Stromspeicher installiert und in Betrieb genommen.
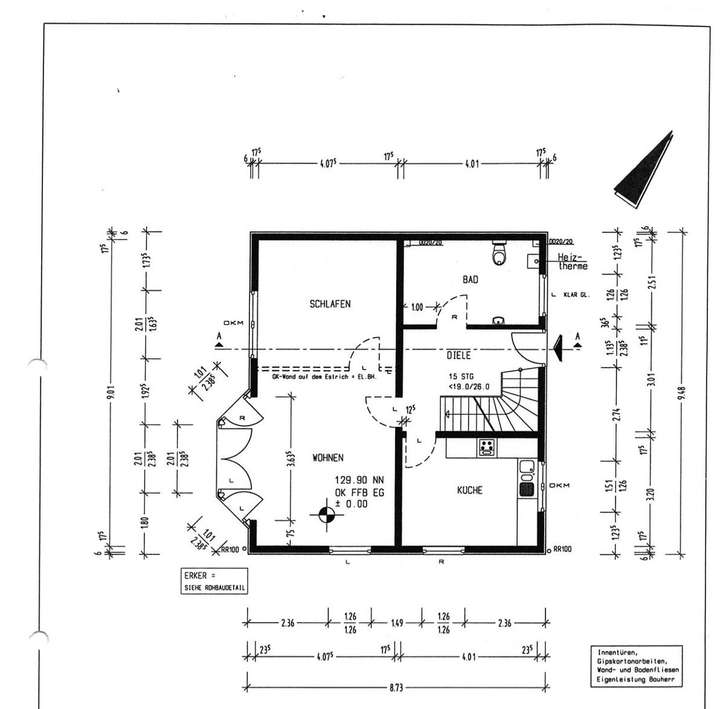
Das Erdgeschoss umfasst ca. 68,25 m² Wohnfläche. Von der zentralen Diele sind die Küche, das geräumige Wohn-/Esszimmer mit herrlichem Blick auf den Garten und das WC vereint.
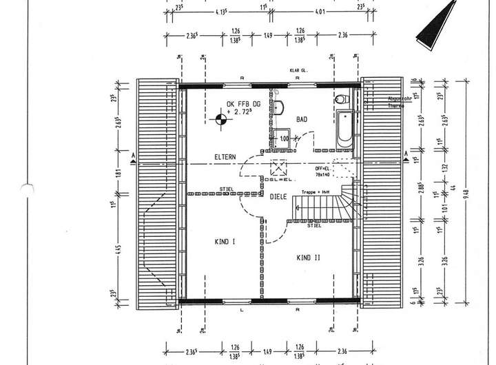
Eine Holztreppe führt in das Dachgeschoss mit ca. 51.97 m² Wohnfläche. Hier befindet sich bis unters Dach ein vollständig offener Raum. Dieser kann ausgebaut werden, da vorsorglich alle Medien (Strom, Wasser, Abwasser und Heizung) anliegen.
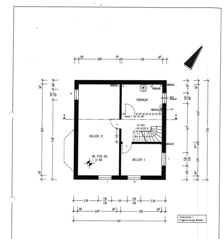
Vom Erdgeschoss führt eine Treppe in den Keller mit einem großem (ggw. Schlafzimmer) und einem kleinen Zimmer (Gästezimmer) als Souterrain mit normal großen Fenstern. Außerdem ist hier auch der Hauswirtschaftraum mit Platz für die Waschmaschine.
Die sonnig gelegene Terrasse am Wohnzimmer, die in den Garten übergeht, lädt zu entspannten Stunden mit Familie und Freunden ein. Von hier aus lässt sich der Blick auf ein unverbaubares Feld genießen. Das wunderschöne Grundstück verspricht pure Wohn- und Lebensqualität und wartet auf liebevolle Hände.
Diese Immobilie vereint die Vorzüge einer ruhigen Wohnlage mit der Nähe zu den urbanen Annehmlichkeiten Leipzigs in Verbindung mit guter Anbindung an die Autobahn (5min) und stellt ein ideales Zuhause für die ganze Familie dar.
Einfamilienhaus mit 4 Zimmern in Naunhof/Albrechtshain
04683 Naunhof
Die vollständige Adresse der Immobilie erhalten Sie vom Anbieter.
Auf Karte anzeigen
Die vollständige Adresse der Immobilie erhalten Sie vom Anbieter.
Finanzierungszertifikat
In nur zwei Minuten zu Ihrem persönlichen Finanzierungszertifkat.
Infos
| Haustyp | Einfamilienhaus |
|---|---|
| Etagenzahl | 3 |
| Wohnfläche ca. | 165 m2 |
| Nutzfläche | 190 m2 |
| Grundstücksfläche | 576 m2 |
| Bezugsfrei ab | 1.2.2026 |
| Zimmer | 4 |
| Schlafzimmer | 2 |
| Badezimmer | 1 |
| Anzahl Garage/Stellplatz | 1 |
Kosten
| Kaufpreis |
455.000 € |
|---|---|
| Provision | Nein |
Finanzierungsrechner:
Kaufpreis:
600.000 €
Eigenkapital:
600.000 €
Monatliche Rate
0 €
Effektiver Jahreszins
0 %
Sollzinsbindung
10 Jahre
Bausubstanz & Energieausweis
| Baujahr | 2000 |
|---|---|
| Objektzustand | Gepflegt |
| Qualität der Austattung | Normal |
| Heizungsart | Wärmepumpe |
| Wesentliche Energieträger | Solarheizung, Strom |
| Energieausweis | liegt vor |
| Energieausweistyp | Bedarfsausweis |
| Energieverbrauchskennwert | 21,0 kWh/(m²*a) |
| Energieeffizienzklasse | A+ |
21,0
kWh/(m²*a)
Energieeffizienzklasse A+
- A+
- A
- B
- C
- D
- E
- F
- G
- H
- 0
- 25
- 50
- 75
- 100
- 125
- 150
- 175
- 200
- 225
- >250
Beschreibung des Objekts
Lage
Albrechtshain ist ein Ortsteil der Stadt Naunhof und liegt etwa 10 km östlich der Stadt Leipzig im Freistaat Sachsen.
Das Grundstück befindet sich im Randbereich von Albrechtshain mit unverbaubarem Blick. Eine Bushaltestelle mit Anbindung an Naunhof ist in wenigen Gehminuten erreicht. Das familienfreundliche Wohnumfeld ist geprägt durch gepflegte Einfamilienhäuser.
Die hervorragende Verkehrsanbindung nach Leipzig lässt das Stadtzentrum in weniger als 15 Minuten Autofahrt erreichen. Die Anbindung an das Autobahnkreuz Parthenaue A14/A38 bietet Anschluss in alle Richtungen und zeichnet die beliebte Wohnlage aus. Erholung pur bieten der naheliegende Autobahnsee und Natursteinbrüche sowie die nahe Waldregion. Auch die Nähe zum Leipziger Neuseengebiet wie z.B. der Cospudener-, Markleeberger- oder Zwenkauer See sind ideal für Ausflüge mit der Familie.
Kindertageseinrichtungen, Grund- und weiterführende Schulen, Einkaufsmöglichkeiten (Netto, Aldi, Penny…), Banken, Apotheken, Hotel und Gastronomie sowie ärztliche Versorgung runden das positive Bild von Albrechtshain ab.
Grundriss
Grundriss Erdgeschoß
>
>
Grundriss Keller
>
>
Grundriss Dachgeschoß
>
>
Adresse
04683 Naunhof
Interessante Orte
Preis- und Lageinformationen
Preistrend für Bestandsimmobilien in Naunhof