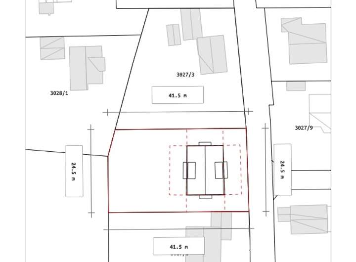
Willkommen zu Ihrem Traumgrundstück in Peißenberg – einer charmanten Stadt in der malerischen bayerischen Voralpenlandschaft. Dieses großzügige Grundstück bietet Ihnen mit einer Fläche von 1.002 m² die ideale Grundlage, um Ihr individuelles Wohnprojekt zu realisieren. Ob ein Einfamilienhaus mit großzügigem Garten oder zwei Doppelhaushälten oder auch ein attraktives Mehrfamilienhaus – Ihrer Fantasie sind keine Grenzen gesetzt.
Auch eine Teilung des Grundstückes wäre aufgrund der Größe machbar.
Das Grundstück ist perfekt für all jene, die die Balance zwischen einem ruhigen, naturnahen Wohnort und einer guten Anbindung an das urbane Leben suchen. Peißenberg besticht durch seine idyllische Lage, umgeben von Wäldern und Wiesen, und bietet trotzdem eine hervorragende Infrastruktur mit Geschäften des täglichen Bedarfs, Schulen und ärztlicher Versorgung.
Nutzen Sie diese einmalige Gelegenheit, ein Stück Land in einer der begehrtesten Regionen Bayerns zu erwerben. Lassen Sie Ihren Traum vom Eigenheim wahr werden und genießen Sie die Lebensqualität, die Peißenberg zu bieten hat. Kontaktieren Sie uns noch heute und beginnen Sie das Abenteuer Ihres neuen Zuhauses!
Sonniges Grundstück Peißenberg
82380 Peißenberg
Die vollständige Adresse der Immobilie erhalten Sie vom Anbieter.
Auf Karte anzeigen
Die vollständige Adresse der Immobilie erhalten Sie vom Anbieter.
Finanzierungszertifikat
In nur zwei Minuten zu Ihrem persönlichen Finanzierungszertifkat.
Infos
| Vermarktungsart | Kaufen |
|---|---|
| Grundstücksfläche | 1.002 m2 |
Kosten
| Miete pro Jahr |
750.000 € |
|---|---|
| Provision |
3,57% |
Finanzierungsrechner:
Kaufpreis:
600.000 €
Eigenkapital:
600.000 €
Monatliche Rate
0 €
Effektiver Jahreszins
0 %
Sollzinsbindung
10 Jahre
Beschreibung des Objekts
Lage
Dieses charmante Grundstück befindet sich in der idyllischen Gemeinde Peißenberg im Herzen Bayerns. Peißenberg bietet eine perfekte Kombination aus ruhigem Landleben und der Nähe zu wichtigen städtischen Annehmlichkeiten. Die Lage des Grundstücks ist ideal für Familien und Naturliebhaber, die eine harmonische und dennoch gut angebundene Wohnumgebung suchen.
Nur etwa 600 Meter entfernt, finden Sie einen Kindergarten, der einen einfachen und sicheren Zugang für junge Familien gewährleistet. Die Grundschule, ebenfalls gut erreichbar, befindet sich in einer Entfernung von etwa 2,1 Kilometern und bietet eine hervorragende Bildungsinfrastruktur für die Kleinsten. Für ältere Schüler ist das nächstgelegene Gymnasium in Weilheim ist mit einer Distanz von 9,8 Kilometern bequem erreichbar, was eine stressfreie Schullaufbahn in der Nähe ermöglicht.
Peißenberg selbst ist bekannt für seine malerische Umgebung und die beeindruckende Naturkulisse. Die Region bietet zahlreiche Freizeitmöglichkeiten, darunter Wandern, Radfahren und viele kulturelle Veranstaltungen, die das ganze Jahr über stattfinden. Gleichzeitig profitieren Sie von der Nähe zu den umliegenden Städten, die sowohl historische als auch moderne Attraktionen bieten.
Das Grundstück ist ideal gelegen, um den Alltagsanforderungen gerecht zu werden und gleichzeitig einen Rückzugsort vom hektischen Stadtleben zu bieten. Egal ob Sie eine Familie gründen oder sich zur Ruhe setzen möchten, diese Lage bietet eine beeindruckende Kombination aus Lebensqualität und Bequemlichkeit.
Sonstige Angaben
Verkauf in einem Bieterverfahren:
- Jeder Interessent kann beliebig oft ein Angebot abgeben bzw. erhöhen
- der aktuelle Bodenrichtwert beträgt 750,00 €/qm
Näheres dazu im Exposè oder im Rahmen einer OpenHouse-Besichtigung.
Das Grundstück kann jederzeit von der Straße her in Augenschein genommen werden. Fahren Sie einfach vorbei.