Willkommen in Ihrem neuen Zuhause - einem modernen Doppelhaus in Langen (Hessen), das nach Ihren individuellen Wünschen projektiert wurde. Dieses großzügige Doppelhaus mit 7 Zimmern und einer Wohnfläche von 157 m² bietet Ihnen und Ihrer Familie ein komfortables und stilvolles Wohnen. Auf einem 275 m² großen Grundstück erstreckt sich Ihr Traumhaus über zwei Etagen und bietet ausreichend Platz für gemeinsame Aktivitäten sowie Rückzugsmöglichkeiten. Die clevere Raumaufteilung sorgt dafür, dass jeder Bewohner seinen eigenen Raum findet, während die offenen Wohnkonzepte den Familienalltag harmonisch verbinden. Ihre Mittelhaus in in FastFertig realisiert, sodass die Elektroinstallation und die Inbetriebnahme der Heizungsanlage inklusive sind. Sie haben die Möglichkeit, die Maler- und Tapezierarbeiten, die Bodenbeläge sowie die Innentüren selbst zu gestalten - ideal für kreative Köpfe, die gerne Eigenleistungen einbringen möchten!
Neubau in Top-Lage Langen - Persönliches Mittelhaus inkl. Grundstück, Dachterrasse & QNG-Fördero
63225 Langen (Hessen)
Die vollständige Adresse der Immobilie erhalten Sie vom Anbieter.
Auf Karte anzeigen
Die vollständige Adresse der Immobilie erhalten Sie vom Anbieter.
Finanzierungszertifikat
In nur zwei Minuten zu Ihrem persönlichen Finanzierungszertifkat.
Infos
| Wohnfläche ca. | 157 m2 |
|---|---|
| Grundstücksfläche | 275 m2 |
| Zimmer | 7 |
| Schlafzimmer | 3 |
| Badezimmer | 2 |
| Garage/Stellplatz | Carport |
| Anzahl Garage/Stellplatz | 1 |
Kosten
| Kaufpreis |
697.306 € |
|---|
Finanzierungsrechner:
Kaufpreis:
600.000 €
Eigenkapital:
600.000 €
Monatliche Rate
0 €
Effektiver Jahreszins
0 %
Sollzinsbindung
10 Jahre
Bausubstanz & Energieausweis
| Baujahr | 2026 |
|---|---|
| Bauphase | Haus in Planung (projektiert) |
| Qualität der Austattung | Gehoben |
| Heizungsart | Wärmepumpe |
| Energieausweis | liegt zur Besichtigung vor |
Beschreibung des Objekts
Ausstattung
Das Doppelhaus überzeugt durch eine gehobene Ausstattung, die alle Ansprüche an modernes Wohnen erfüllt. Die Bodenbeläge sind individuell wählbar und umfassen hochwertiges Laminat, edles Parkett und pflegeleichte Fliesen. Diese Materialien bieten nicht nur eine ansprechende Optik, sondern auch Langlebigkeit und Komfort für Ihr Zuhause. Die Befeuerungsart mit einer modernen Wärmepumpe sorgt für eine effiziente und umweltfreundliche Beheizung Ihres Hauses und trägt zur Reduzierung Ihrer Energiekosten bei. Das Haus erfüllt den Niedrigenergie Standard, was Ihnen langfristig erhebliche Einsparungen bei den Betriebskosten ermöglicht. Ein besonderes Highlight ist das Badezimmer, das mit einer Dusche, einer Wanne und einem Fenster ausgestattet ist, sowie ein zusätzliches Gäste-WC für Ihre Besucher. Genießen Sie die hohen Standards der STREIF-Wandkonstruktion, die zudem hervorragende Schallisolierung bietet.
Lage
Das Doppelhaus befindet sich in der attraktiven Lage von Langen (Hessen), die Ihnen eine hervorragende Infrastruktur bietet. In unmittelbarer Nähe finden Sie eine Apotheke, ein Einkaufscenter, einen Bahnhof sowie eine Bushaltestelle, die Ihnen eine bequeme Anbindung an die umliegenden Städte ermöglicht. Für Ihre Freizeitgestaltung stehen Ihnen ein Fitnessstudio, ein Park sowie Bildungseinrichtungen wie eine Grundschule und ein Kindergarten zur Verfügung. Diese zentrale Lage verbindet urbanes Leben mit der Ruhe und dem Komfort eines Wohngebiets und macht es ideal für Familien und Paare.
Sonstige Angaben
Mit STREIF können Sie aus vier unterschiedlichen Ausbaustufen wählen. Die Ausbaustufe FastFertig ermöglicht es Ihnen, die Malerarbeiten, die Böden, Innentüren und die Sanitärräume selbst zu gestalten, was eine attraktive Option für handwerklich Begabte ist, die bares Geld sparen möchten.
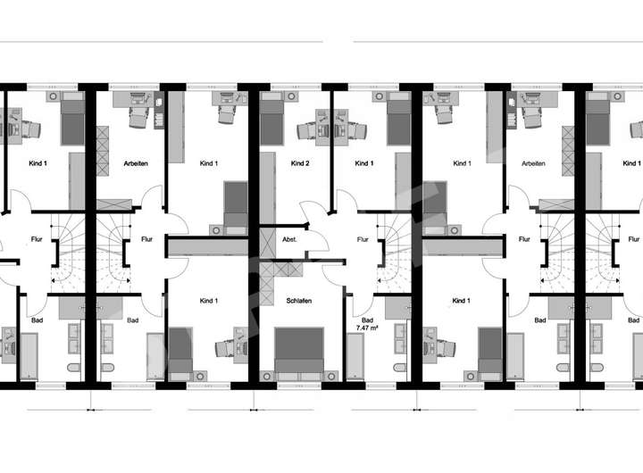
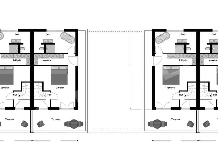
Grundriss
EG Langen
>
>
OG Langen
>
>
DG Langen2 Kopie
>
>
Adresse
63225 Langen (Hessen)
Interessante Orte
Preis- und Lageinformationen
Preistrend für Bestandsimmobilien in Langen (Hessen)