An alle Häuslesbauer!
Hier können Sie Ihren Traum vom Eigenheim verwirklichen.
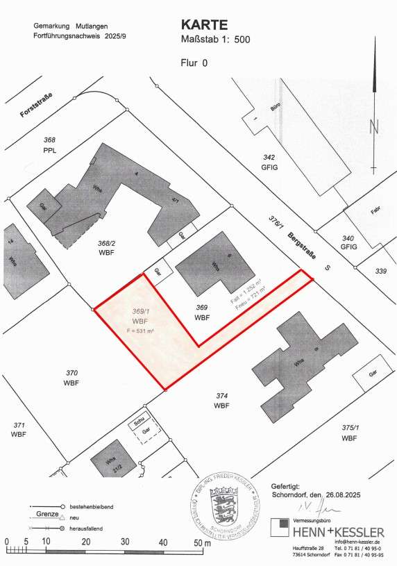
Ebenes Teilgrundstück mit 531 m² Fläche im Mischgebiet Greutäcker, sofort bebaubar.
Baugrundstück in östlicher Lage von Mutlangen
73557 Mutlangen
Die vollständige Adresse der Immobilie erhalten Sie vom Anbieter.
Auf Karte anzeigen
Die vollständige Adresse der Immobilie erhalten Sie vom Anbieter.
Finanzierungszertifikat
In nur zwei Minuten zu Ihrem persönlichen Finanzierungszertifkat.
Infos
| Vermarktungsart | Kaufen |
|---|---|
| Grundstücksfläche | 531 m2 |
| Erschließung | Unerschlossen |
| Empfohlene Nutzung | Einfamilienhaus |
| Grundflächenzahl (GRZ) | 0.4 |
| Geschossflächenzahl (GFZ) | 0.8 |
| Bebaubar nach | Bebauungsplan |
| Verfügbar ab | sofort |
Kosten
| Miete pro Jahr |
180.000 € |
|---|---|
| Provision |
3,57 Die Maklercourtage von 3,57 % (inkl. 19 % MwSt.) wird bei notariellem Abschluss fällig. |
Finanzierungsrechner:
Kaufpreis:
600.000 €
Eigenkapital:
600.000 €
Monatliche Rate
0 €
Effektiver Jahreszins
0 %
Sollzinsbindung
10 Jahre
Beschreibung des Objekts
Lage
Zur Straße hin ist das ursprünglich 1252 m² große Gesamtgrundstück bereits bebaut.
Ein ca. 4 m breiter Streifen führt links am bestehenden Haus vorbei zum rückwärtigen südwestlich ausgerichtem Bauplatz. Dieser ist bereits eben planiert und mit Natursteinen abgegrenzt.
Sonstige Angaben
Mutlangen mit 6.900 Einwohnern liegt nördlich von Schwäbisch Gmünd im Ostalbkreis, und zeichnet sich insbesondere durch eine sehr gut ausgebaute Infrastruktur aus. Hinzu kommt ein reges Vereinsleben, sowie ein umfangreiches Sport- und Freizeitangebot. Der hieraus resultierende hohe Wohnwert lädt zum Wohlfühlen ein.
Überzeugen Sie sich selbst – eine engagierte junge Bürgermeisterin lädt Sie ganz herzlich dazu ein – Mutlangen nicht nur virtuell, sondern auch „vor Ort“ kennenzulernen.
Und Sie vielleicht als neue Bürgerin begrüßen zu dürfen.
Interessiert?
Dann freuen wir uns auf Ihre schriftliche Anfrage über ImmoScout 24 mit allen Kontaktdaten und telefonischer Erreichbarkeit.
Grundriss
Lageplan Grundstück Bergstr. 6
>
>