Dieses vielseitige Anwesen mit großzügigem Entwicklungs- und Ausbaupotenzial verbindet Wohnen mit selbstständiger Arbeit und ggf. mit eigener Pferdehaltung. Das gepflegte, jedoch sanierungsbedürftige Wohn- und Geschäftshaus bietet bis zu 3 separate Wohneinheiten, eine ehemalige Wirtschaft und einen großen darüberliegenden (Musik-/Tanz-)Saal, eine große Garage und ein Nebengebäude mit Pferdeboxen.
Die zusammengefasste Fläche von Wohn- und Nutzräume beträgt ca. 800qm und bietet Ihnen die ideale Möglichkeit zur Eigennutzung, Voll- bzw. Teilvermietung oder auch als Mehrgenerationenlösung. Das Anwesen kann so individuell genutzt werden und bietet für jede Nutzung eine Alternative.
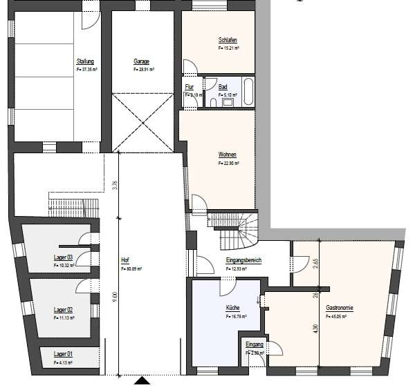
Die großzügige Gewerbefläche im Erdgeschoss wurde als Gastronomie / Wirtschaft genutzt und ist noch mittels einer Bar / Theke und mit Gastro-möbel eingerichtet mit sehr guter Sichtbarkeit für Ihr Gewerbe und liegt an einer gut frequentierten Straße mit hoher Sichtbarkeit.
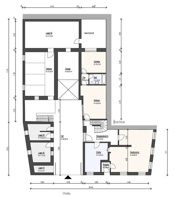
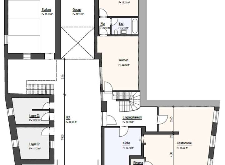
Im Erdgeschoss befindet sich die ehemalige Wirtschaft, bestehend aus dem ca. 50 m² großen Gastrobereich inkl. Theke und Bar mit dahinterliegenden Gastroküche mit zusätzlichen ca. 17 m². Im Außenbereich befinden sich genau gegenüber der Wirtschaft noch 2-3 Lagerräume – diese bieten sich ideal als Lagerräume für Getränke und Vorräte an. Die Wiedereröffnung einer Wirtschaft wäre für die Bewohner in Gerbach sehr wünschenswert. Im Ort fehlt geanu eine solche Treffpunkt-Möglichkeit für Jung und Alt. Nutzen Sie die Chance! Alternativ könnte die Einheit auch zu einer weiteren Wohnung umgebaut werden.
Auf gleicher Ebene wie die Gerwerbeeinheit liegt direkt gegenüber eine kleine gemütliche 2 ZKB-Wohnung mit ca. 45 m², welche nach Renovierung / Sanierung entweder als Dauer- oder auch Ferienwohnung vermietet werden kann und die Mieteinnahmen über dem örtlichen Mietspiegel dauerhaft steigern kann.
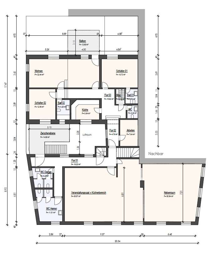
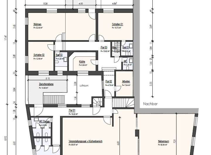
Im Obergeschoss erreichen Sie einen großzügigen Veranstaltungssaal mit ca. 70 m², welcher auch mit einer kleinen Theke ausgestattet ist und zusätzlich mit einem weiteren Nebenraum mit weiteren ca. 50 m² mittels einer Trennwand mit Durchgang verbunden ist. Diese Trennwand lässt sich problemlos zurückbauen und zu einer Einheit öffnen und hat ein enormes Entwicklungspotenzial. Zu dem Saal befindet sich im hinteren Bereich zusätzlich noch eine Toilettenanlage für Damen und Herren. Dieser Raum bietet sich ideal für Feiern / Veranstaltungen zu besonderen Anlässe an – egal ob in Verbindung zur Gewerbeeinheit im EG oder als separate Einheit.
Auf gleicher Etage und gegenüberliegend gelangen Sie mittels einer separaten Abschlusstür in eine helle, geräumige 4 ZKB inkl. Balkon (Anbau einer Stahlkonstruktion) und wird derzeit noch bewohnt. Die Wohnung ist insgesamt sehr hell geschnitten und hat eine gute Raumaufteilung. Die Wohnung besteht aus einem langen Flur, der in alle Räume führt. Im Eingangsbereich befindet sich das Arbeitszimmer, anschließend die Küche, ein Gäste-WC, ein weiteres (Kinder-) Zimmer mit eigenem Duschbad und ein offenes Wohn- und Esszimmer in Split-Level-Bauweise. Vom Esszimmer erreichen Sie den angebauten Balkon, der Ihnen die Möglichkeit bietet, sich vom Alltagsstress zu erholen. Auf der herabgesetzten Wohnebene gelangen Sie in das Eltern-Schlafzimmer mit angrenzendem Badezimmer. Diese Wohneinheit erstreckt sich über eine Wohnfläche von ca. 116 m².
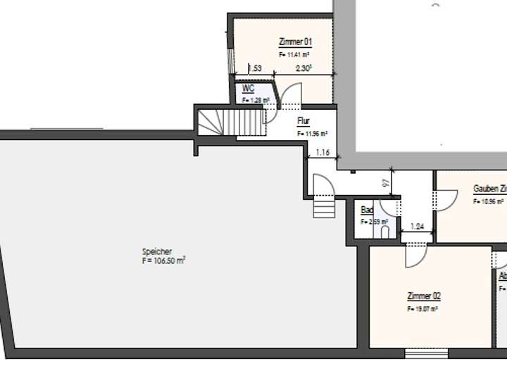
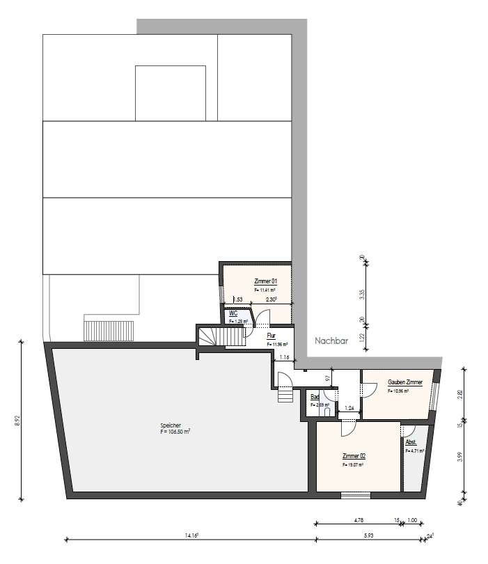
Wieder im Treppenhaus des Obergeschosses angekommen, gelangen Sie sodann in das teilweise hälftig ausgebaute Dachgeschoss mit einer weiteren Wohneinheit. Die 3. und letzte Wohneinheit verfügt über einen Flur, ein Gäste-WC, eine Küche (Zimmer 1 auf dem Plan), ein Wohnzimmer mit sep. Arbeitsbereich, ein Schlafzimmer sowie ein Badezimmer. Diese Wohneinheit umfasst ca. 62 m² mit zusätzlichem Ausbaupotenzial, da die DG-Einheit fast nur zur Hälfte ausgebaut ist.
Ihr Lebenstraum? Großzügiges Wohn- und Geschäftshaus mit vielen Nutzungsmöglichkeiten
67813 Gerbach
Die vollständige Adresse der Immobilie erhalten Sie vom Anbieter.
Auf Karte anzeigen
Die vollständige Adresse der Immobilie erhalten Sie vom Anbieter.
Finanzierungszertifikat
In nur zwei Minuten zu Ihrem persönlichen Finanzierungszertifkat.
Infos
| Haustyp | Mehrfamilienhaus |
|---|---|
| Etagenzahl | 3 |
| Wohnfläche ca. | 224 m2 |
| Nutzfläche | 574 m2 |
| Grundstücksfläche | 430 m2 |
| Bezugsfrei ab | n. Absprache |
| Zimmer | 7 |
| Schlafzimmer | 5 |
| Badezimmer | 3 |
| Garage/Stellplatz | Garage |
| Anzahl Garage/Stellplatz | 1 |
Kosten
| Kaufpreis |
175.000 € |
|---|---|
| Provision |
3,57 % inkl. MwSt. Die Verkäufer- und Käuferprovision ist fällig direkt nach Abschluß des notariellen Kaufvertrags, sofern nichts anderes vereinbart wurde. Verhandlungen und Konversationen sind bitte ausschließlich nur über unsere Agentur zu führen. Die Höhe der Bruttocourtage unterliegt einer Anpassung bei Steuersatzänderung. |
Finanzierungsrechner:
Kaufpreis:
600.000 €
Eigenkapital:
600.000 €
Monatliche Rate
0 €
Effektiver Jahreszins
0 %
Sollzinsbindung
10 Jahre
Bausubstanz & Energieausweis
| Baujahr | unbekannt |
|---|---|
| Letzte Sanierung | 2022 |
| Bauphase | Haus fertig gestellt |
| Objektzustand | Renovierungsbedürftig |
| Qualität der Austattung | Normal |
| Heizungsart | Öl-Heizung |
| Wesentliche Energieträger | Öl |
| Energieausweis | liegt zur Besichtigung vor |
Beschreibung des Objekts
Ausstattung
Die Immobilie verfügt über ein Nebengebäude und ist in zwei Räumlichkeiten unterteilt. Im vorderen Bereich befinden sich eine Art Stall mit Pferdeboxen und im hinteren Bereich gibt es einen weiteren großen Raum mit weiteren Boxen für Pferde, jedoch bietet sich dieser Teil eher als Lagerraum an.
Unterstellmöglichkeiten für Ihren Fuhrpark, sei es ein Unimog, Motorrad, Ihr KFZ und / oder Anhänger, diese finden genügend Platz in einer großen und hohen Garage mittels elektr. Tor. Ein weiterer Stellplatz wäre auch in der Einfahrt / Innenhof denkbar.
______________________________________
Ausstattung im Überblick:
* Wohn- und Geschäftshaus
* Massivbauweise
(teilw. Sandstein, Aufstockung: Bimsstein)
* Baujahr unbekannt, schätzungsweise ca.
1900 oder früher
* Aufstockung im Laufe der 80er Jahre
* Grundstücksgröße ca. 430 qm
* Wohnfläche ca. 224 qm
* Nutzfläche ca. 370qm
* Gewerbefläche inkl. Lager- und
Nebenräume ca. 200qm
* gut erhaltene Holzfenster, 2-fach verglast
mit Rollläden – 80er Jahre
* MFH – bspw. Mehrgenerationenhaus,
Voll-/Teilvermietung…
* EG:2 ZKB (45,39qm), OG: 4 ZKB (116,81qm),
DG: 2 ZKB (61,98 qm)
* Gewerbe: ehem. Wirtschaft mit
Veranstaltungsraum,
* Toilettenanlage für Damen und Herren
* Stallung mit zahlreichen Pferdeboxen
* DG: hälftig zum Wohnraum ausgebaut
* Böden: Dielenböden, Fliesen, Teppich
* ÖL-Heizung von ca. 2022
* Veranstaltungssaal wurden mit ÖL-Öfen
geheizt, aktuell keine Heizung
* Warmwasser über Boiler
* Sanitär der Wohnung im OG schätzungsweise aus den 90er Jahren
* Dach schätzungsweise aus dem Jahr der
Aufstockung
* Große Garage mit elektr. Tor für Unimog,
Motorräder, Anhänger, etc.
* Einbauküche in der eigengenutzten
Wohneinheit vorhanden
* Anbau eines Balkons
* Wohnfläche erweiterbar
* Keller vorhanden
Lage
Das geräumige Wohn- und Geschäftshaus verspricht eine hohe Sichtbarkeit für Ihr Gewerbe, da es sich direkt an der Ortsdurchfahrt von Gerbach befindet.
Die Ortsgemeinde Gerbach ist eine Ortsgemeinde in Rheinland-Pfalz im Nordpfälzer Bergland, nordwestlich des Donnersbergs zwischen Kaiserslautern und Bad Kreuznach gelegen. Der Ort befindet sich im Appeltal und gehört zu der Verbandsgemeinde Nordpfälzer Land.
• Geografische Lage:
Gerbach liegt im Nordpfälzer Bergland, genauer im Bürgerwald, und erstreckt sich über das Appeltal.
• Nachbarorte:
Die Gemeinde grenzt an Gaugrehweiler, Kriegsfeld, Ruppertsecken, Würzweiler, Dielkirchen und Sankt Alban.
• Verwaltungszugehörigkeit:
Es ist eine Gemeinde im Donnersbergkreis und gehört zur Verbandsgemeinde Nordpfälzer Land.
• Verkehrsanbindung:
Die Lage befindet sich in der Nähe von Kaiserslautern und Bad Kreuznach.
Sonstige Angaben
Besichtigungen nur nach vorheriger Absprache mit Ihrem Ansprechpartner und gegen Vorlage einer Finanzierungsbesätigung möglich, da das Objekt derzeit vermietet ist.
Sie haben Fragen, Anregungen oder möchten Ihre Immobilie verkaufen?
Gerne bin ich von Montag bis Samstag ab 10:00 Uhr für Sie erreichbar unter meiner Mobilfunk-Nr. 0176-35598944. Ich freue mich auf Ihren Anruf.
Alle Angaben in diesem Exposé wurden sorgfältig und so vollständig wie möglich gemacht und stammen vom Eigentümer. Gleichwohl kann das Vorhandensein von Fehlern nicht ausgeschlossen werden. Die Angaben in diesem Exposé erfolgen daher ohne jede Gewähr.
DATENSCHUTZ:
Innerhalb dieser Internetpräsenz besteht die Möglichkeit uns personenbezogene Daten zu übermitteln. Dies sind Informationen die genutzt werden können um Ihre Identität zu erfahren. Darunter fallen Informationen wie Ihr Name, Adresse, Postanschrift, Telefonnummer, E-Mail, Adresse. Hinsichtlich Ihrer personenbezogenen Daten weisen wir gemäß §33 BDSG darauf hin, dass diese nach Maßgabe der anwendbaren Datenschutzbestimmungen gespeichert und/oder übertragen werden. Im Übrigen werden personenbezogene Daten absolut vertraulich behandelt und nur mit gesonderter Zustimmung an Dritte weitergeleitet. Wir weisen ausdrücklich darauf hin, dass der Datenschutz in offenen Netzen wie dem Internet nach dem derzeitigen Stand der Technik nicht vollständig gewährleistet werden kann.
Weitere Dokumente
DATENSCHUTZWiderrufsbelehrung für Verbrau
Grundriss
Grundriss-GE+WE1-EG
>
>
Grundriss-WE2-OG
>
>
Grundriss-WE3-DG
>
>
WFl.-Berechnung
>
>
NFl.-Berechnung
>
>
Grundriss-EG
>
>
Grundriss-OG
>
>
Grundriss-DG
>
>
Adresse
67813 Gerbach
Interessante Orte
Preis- und Lageinformationen
Preistrend für Bestandsimmobilien in Gerbach