Auf rund 400 m² Wohnfläche präsentiert sich dieses moderne Einfamilienhaus im begehrten Kölner Stadtteil Lindenthal als exklusive Luxusimmobilie mit klarer, moderner architektonischer Linie und einem durchdachten, lichtdurchfluteten Raumkonzept, das Großzügigkeit, Design und Wohnkomfort auf höchstem Niveau miteinander vereint. Der offen gestaltete Wohn- und Essbereich mit direktem Zugang zur sonnigen Terrasse bietet perfekte Voraussetzungen für entspannte Stunden im Freien oder stilvolle Abende im Kreis von Familie und Freunden. Ein elegant integrierter Kamin schafft eine warme, einladende Atmosphäre und bildet den harmonischen Mittelpunkt des Hauses.
Hochwertige Materialien wie edler Marmorstein in der Designer-Küche, im Essbereich sowie in einem der beiden eleganten Bäder setzen Akzente zeitloser Eleganz und erstklassiger Qualität. Ein weiteres Highlight ist der private Indoor-Pool, der das Haus um eine luxuriöse Wellness-Komponente bereichert und ganzjährig Erholung im eigenen Zuhause ermöglicht.
Diese Immobilie vereint großzügigen Raum, höchsten Komfort und Exklusivität und verkörpert modernes Wohnen in Köln-Lindenthal auf besonders stilvolle Weise.
Familienvilla in Deckstein
50935 Köln
Die vollständige Adresse der Immobilie erhalten Sie vom Anbieter.
Auf Karte anzeigen
Die vollständige Adresse der Immobilie erhalten Sie vom Anbieter.
Finanzierungszertifikat
In nur zwei Minuten zu Ihrem persönlichen Finanzierungszertifkat.
Infos
| Haustyp | Einfamilienhaus |
|---|---|
| Etagenzahl | 2 |
| Wohnfläche ca. | 400 m2 |
| Grundstücksfläche | 1.250 m2 |
| Zimmer | 9 |
| Schlafzimmer | 5 |
| Badezimmer | 3 |
Kosten
| Kaufpreis |
0 € |
|---|---|
| Provision |
3,57 % |
Finanzierungsrechner:
Kaufpreis:
600.000 €
Eigenkapital:
600.000 €
Monatliche Rate
0 €
Effektiver Jahreszins
0 %
Sollzinsbindung
10 Jahre
Bausubstanz & Energieausweis
| Baujahr | 1990 |
|---|---|
| Objektzustand | Saniert |
| Heizungsart | Gas-Heizung |
| Wesentliche Energieträger | Gas |
| Energieausweis | liegt vor |
| Energieausweistyp | Bedarfsausweis |
| Energieverbrauchskennwert | 94,7 kWh/(m²*a) |
| Energieeffizienzklasse | C |
94,7
kWh/(m²*a)
Energieeffizienzklasse C
- A+
- A
- B
- C
- D
- E
- F
- G
- H
- 0
- 25
- 50
- 75
- 100
- 125
- 150
- 175
- 200
- 225
- >250
Beschreibung des Objekts
Ausstattung
Die Ausstattung dieses Hauses besticht durch eine durchgängig hochwertige Verarbeitung und ein klares Bekenntnis zu modernem Wohnkomfort auf höchstem Niveau. Edler Marmorstein verleiht den Räumen eine elegante und zeitlose Ausstrahlung, während stilvolle, in allen Zimmern integrierte Downlights für eine angenehme und individuell regulierbare Beleuchtung sorgen. Das intelligente Bussystem zur Lichtsteuerung ermöglicht flexible Einstellungen und unterstreicht den exklusiven Charakter der Immobilie. Ein Kamin sorgt für eine behagliche und gemütliche Atmosphäre, die zum Entspannen und Wohlfühlen einlädt. Die Fußbodenheizung garantiert wohlige Wärme in allen Räumen, und die moderne Klimaanlage sorgt zu jeder Jahreszeit für ein angenehmes Raumklima. Zwei geschmackvoll gestaltete, innenliegende Bäder bieten sowohl hohe Funktionalität als auch luxuriösen Komfort. Ein privater Indoor-Pool ergänzt die Wellness-Ausstattung perfekt und ermöglicht Erholung direkt im eigenen Zuhause. Zudem erleichtert ein Aufzug den barrierefreien Zugang zu allen Ebenen des Hauses. Diese durchdachte und hochwertige Ausstattung macht das Wohnen hier außergewöhnlich komfortabel, elegant und stilvoll.
Lage
Im Herzen des angesehenen Kölner Stadtteils Lindenthal liegt eine der exklusivsten und begehrtesten Wohnlagen der Domstadt – geprägt von historischer Bausubstanz, altem Baumbestand, gepflegten Grünanlagen und einer ruhigen, stilvollen Nachbarschaft. Dieses Umfeld vermittelt ein gewachsenes, niveauvolles Wohngefühl, das sowohl Familien als auch Berufstätige und anspruchsvolle Stadtliebhaber gleichermaßen anspricht und durch sein besonderes Ambiente eine unverwechselbare Wohnatmosphäre schafft.
In unmittelbarer Nähe befinden sich ausgewählte Boutiquen, hochwertige Restaurants, charmante Cafés, lebendige Wochenmärkte mit regionalen Produkten sowie sämtliche Einrichtungen des täglichen Bedarfs. Schulen mit exzellentem Ruf, internationale Bildungseinrichtungen und eine medizinische Versorgung auf höchstem Niveau verleihen der Umgebung zusätzlichen Wert, Komfort und Exklusivität.
Die hervorragende Anbindung an den öffentlichen Nahverkehr sowie die Nähe zur Kölner Innenstadt, zur Universität und zum weitläufigen Stadtwald schaffen eine ideale Balance zwischen urbanem Leben und naturnaher Erholung. Lindenthal vereint Lebensqualität, Stil und Komfort auf besondere Weise – ein Wohnstandort, der durch seine Lage, Atmosphäre, Vielfalt und Lebensart neue Maßstäbe im Kölner Immobilienmarkt setzt.
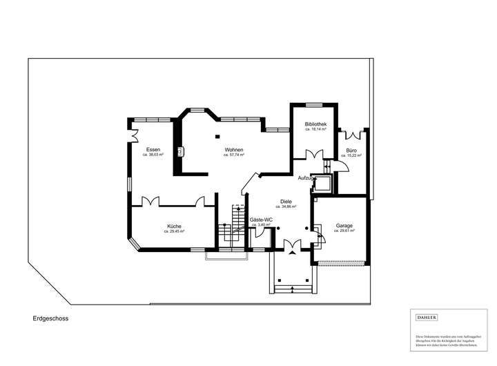
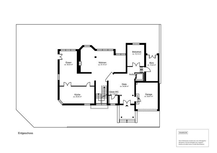
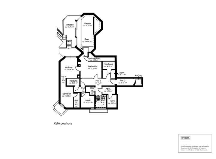
Grundriss
Grundriss KG
>
>
Grundriss EG
>
>
Grundriss DG
>
>
Adresse
50935 Köln
Interessante Orte
Preis- und Lageinformationen
Preistrend für Bestandsimmobilien in Lindenthal