Baugrundstück mit genehmigtem Doppelhausprojekt im Ortskern von Freiburg-Waltershofen
Im Herzen von Freiburg-Waltershofen, in der begehrten Lage Spielhöfe 4, erwartet Sie ein 401 m² großes Baugrundstück in bereits vollständig erschlossenem Gebiet. Aktuell ist das Grundstück noch mit einem abrissreifen Altbestand bebaut – der Weg für ein neues Bauvorhaben ist jedoch bereits geebnet.
Zum Angebot gehört eine bestehende Baugenehmigung für zwei moderne Wohneinheiten: ein Reihenmittelhaus sowie ein Reihenendhaus mit einer geplanten Gesamtwohnfläche von 282,95 m². Ergänzt wird das Ensemble durch eine großzügige Doppelgarage, die den Wohnkomfort abrundet.
Diese Konstellation eignet sich ideal für Familien, Freunde oder generationsübergreifende Wohnprojekte, die gemeinsam ihren Wohntraum verwirklichen möchten. Die ruhige, zentrale Lage im Ortskern bietet gleichzeitig ländliche Lebensqualität und die Nähe zur Stadt Freiburg – ein seltener Glücksfall für Bauherren mit Weitblick.
Highlights:
Grundstücksgröße: 401 m²
Bestehendes Abrissgebäude
Voll erschlossenes Grundstück
Genehmigtes Bauprojekt für zwei Wohneinheiten
Wohnfläche gesamt: ca. 282,95 m²
Großzügige Doppelgarage inklusive
Familienfreundliche Lage mit sehr guter Infrastruktur
Nutzen Sie diese seltene Gelegenheit und realisieren Sie Ihr persönliches Neubauprojekt in einer der charmantesten Lagen von Freiburg!
„Gemeinsam bauen, gemeinsam wohnen: Traumhaftes Grundstück mit Baugenehmigung für zwei Häuser“
79112 Freiburg im Breisgau
Die vollständige Adresse der Immobilie erhalten Sie vom Anbieter.
Auf Karte anzeigen
Die vollständige Adresse der Immobilie erhalten Sie vom Anbieter.
Finanzierungszertifikat
In nur zwei Minuten zu Ihrem persönlichen Finanzierungszertifkat.
Infos
| Vermarktungsart | Kaufen |
|---|---|
| Grundstücksfläche | 401 m2 |
Kosten
| Miete pro Jahr |
398.000 € |
|---|---|
| Provision | Nein |
Finanzierungsrechner:
Kaufpreis:
600.000 €
Eigenkapital:
600.000 €
Monatliche Rate
0 €
Effektiver Jahreszins
0 %
Sollzinsbindung
10 Jahre
Beschreibung des Objekts
Lage
Das Baugrundstück befindet sich in zentraler, dennoch ruhiger Lage im alten Ortskern von Freiburg-Waltershofen. Der Stadtteil liegt idyllisch zwischen dem Tuniberg und dem Kaiserstuhl im westlichen Teil von Freiburg und vereint ländliche Wohnqualität mit der Nähe zur Stadt.
Waltershofen ist geprägt von seinem dörflichen Charakter, einer lebendigen Gemeinschaft und einer sehr guten Nahversorgung. Im direkten Umfeld befinden sich Einkaufsmöglichkeiten für den täglichen Bedarf, eine Grundschule, mehrere Kindergärten sowie medizinische Versorgung. Zahlreiche Vereine und Veranstaltungen, wie das beliebte „Waltershofener Fäscht“, schaffen eine familienfreundliche Atmosphäre und fördern das Zusammenleben im Ort.
Die Lage Spielhöfe 4 punktet durch ihre angenehme Ruhe und gleichzeitig hervorragende Anbindung: Die Freiburger Innenstadt ist mit dem Auto oder den öffentlichen Verkehrsmitteln in etwa 20 Minuten erreichbar. Auch die Autobahn A5 ist schnell zugänglich, was Pendlern eine hohe Flexibilität bietet.
Naturfreunde finden rund um Waltershofen zahlreiche Rad- und Wanderwege sowie Weinberge und Felder, die zu Erholung und Aktivität im Grünen einladen. Die Nähe zum Tuniberg macht die Umgebung zudem zu einem attraktiven Ausgangspunkt für Ausflüge in die Region.
Insgesamt bietet die Lage Spielhöfe 4 eine seltene Kombination aus naturnahem Wohnen, funktionierender Infrastruktur und guter Erreichbarkeit – ideal für Familien, Paare oder alle, die das Leben im Grünen mit der Nähe zur Stadt verbinden möchten.
Grundriss
von Süden Gartenseite
>
>
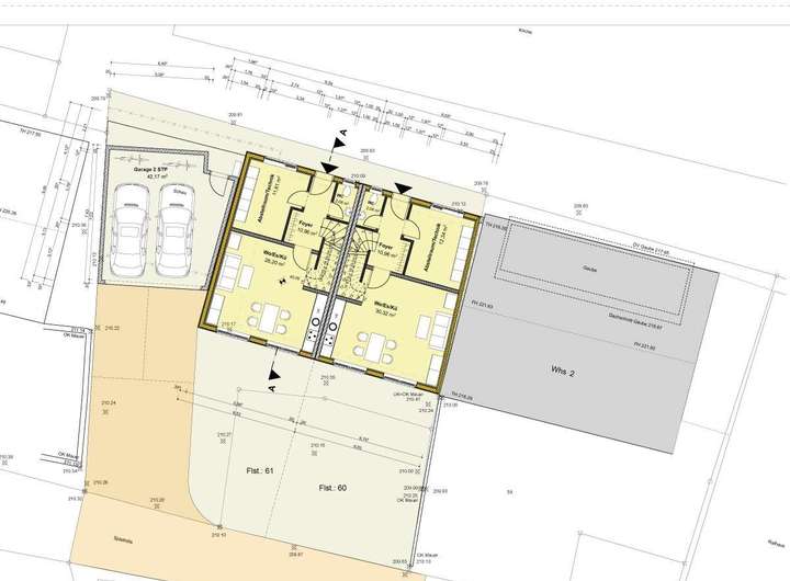
Grundriss EG Lageplan
>
>
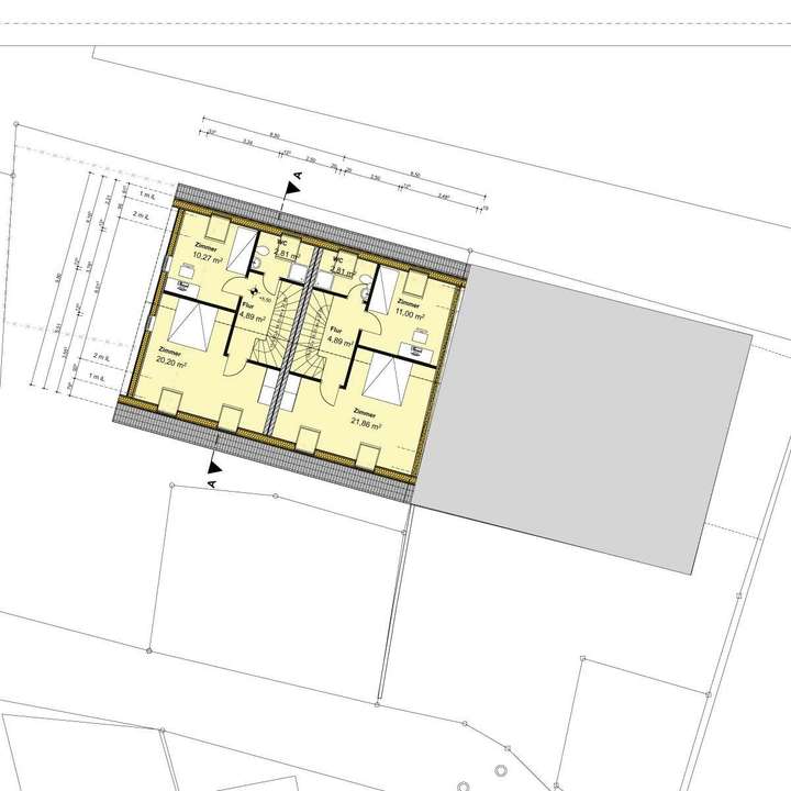
Grundriss DG
>
>
Grundriss 1 OG
>
>
Ansicht von Westen
>
>
Ansicht von Norden Eingangssei
>
>