Bauplatz für ein modernes Reihenhaus im Ortskern von Freiburg-Waltershofen – ca. 200 m²
In zentraler und dennoch ruhiger Lage von Freiburg-Waltershofen, im Bereich Spielhöfe 4, steht ein attraktiver Bauplatz mit ca. 200 m² Fläche zur Verfügung. Das Grundstück liegt in einem voll erschlossenen Wohngebiet; sämtliche Versorgungsleitungen befinden sich bereits in der Straße und müssen lediglich noch auf das Grundstück geführt werden.
Dieser Bauplatz eignet sich ideal für die Errichtung eines großzügigen, modernen Reihenhauses, perfekt für Familien, Paare oder Eigennutzer, die ein individuelles Neubauprojekt in charmantem Dorfkern-Flair realisieren möchten. Die Umgebung ist geprägt von gepflegten Einfamilien- und Reihenhäusern, kurzen Wegen, ländlicher Ruhe und dennoch hervorragender Anbindung nach Freiburg.
Mit seinem gewachsenen Wohnumfeld, guter Infrastruktur, Kindergarten, Schulen, Einkaufsmöglichkeiten und direktem Zugang zu Natur und Naherholung bietet Waltershofen eine Lebensqualität, die in Stadtnähe selten geworden ist. Durch die überschaubare Grundstücksgröße entstehen geringe Unterhaltskosten bei gleichzeitig sehr guter Nutzbarkeit für Haus, Terrasse und Garten.
Option: Erwerb des gesamten Grundstücks (401 m²) mit genehmigtem Doppelhausprojekt
Alternativ kann auch das gesamte, 401 m² große Grundstück erworben werden.
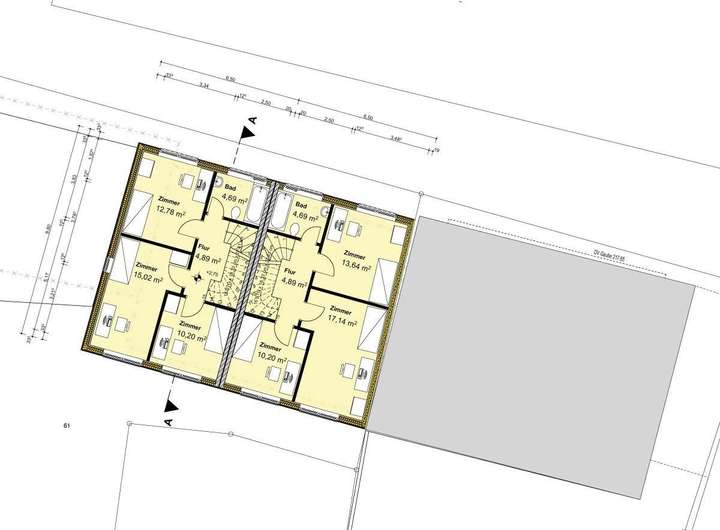
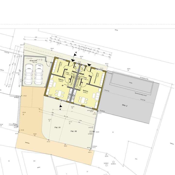
Für diese Gesamtfläche besteht bereits eine Baugenehmigung für ein modernes Doppelhaus mit zwei Wohneinheiten – bestehend aus einem Reihenmittelhaus und einem Reihenendhaus mit insgesamt rund 282,95 m² geplanter Wohnfläche.
Im genehmigten Projekt enthalten ist außerdem eine großzügige Doppelgarage. Der vorhandene Altbestand ist abrissreif, sodass ein zeitnaher Baustart problemlos möglich ist. Diese Option bietet sich besonders für Bauherren an, die ein Mehrgenerationenmodell, ein gemeinsames Projekt mit Freunden oder ein kleines Investmentvorhaben realisieren möchten.
Fazit
Der Bauplatz mit ca. 200 m² stellt eine seltene Gelegenheit dar, in Freiburg-Waltershofen ein neues, individuell planbares Reihenhaus zu errichten – in ruhiger Lage, mit kurzen Wegen und sehr guter Infrastruktur.
Durch die zusätzliche Option, das gesamte Grundstück inklusive genehmigtem Doppelhausprojekt zu erwerben, haben Käufer maximale Flexibilität für ihr persönliches Bauvorhaben.
Bauplatz für ein modernes Reihenhaus im Ortskern von Freiburg-Waltershofen – ca. 200 m²
79112 Freiburg im Breisgau
Die vollständige Adresse der Immobilie erhalten Sie vom Anbieter.
Auf Karte anzeigen
Die vollständige Adresse der Immobilie erhalten Sie vom Anbieter.
Finanzierungszertifikat
In nur zwei Minuten zu Ihrem persönlichen Finanzierungszertifkat.
Infos
| Vermarktungsart | Kaufen |
|---|---|
| Grundstücksfläche | 200 m2 |
| Erschließung | Erschlossen |
| Empfohlene Nutzung | Reihenhaus |
| Bebaubar nach | wie Nachbarbebauung |
Kosten
| Miete pro Jahr |
199.000 € |
|---|---|
| Provision | Nein |
Finanzierungsrechner:
Kaufpreis:
600.000 €
Eigenkapital:
600.000 €
Monatliche Rate
0 €
Effektiver Jahreszins
0 %
Sollzinsbindung
10 Jahre
Beschreibung des Objekts
Lage
Das Baugrundstück befindet sich in zentraler, dennoch ruhiger Lage im alten Ortskern von Freiburg-Waltershofen. Der Stadtteil liegt idyllisch zwischen dem Tuniberg und dem Kaiserstuhl im westlichen Teil von Freiburg und vereint ländliche Wohnqualität mit der Nähe zur Stadt.
Waltershofen ist geprägt von seinem dörflichen Charakter, einer lebendigen Gemeinschaft und einer sehr guten Nahversorgung. Im direkten Umfeld befinden sich Einkaufsmöglichkeiten für den täglichen Bedarf, eine Grundschule, mehrere Kindergärten sowie medizinische Versorgung. Zahlreiche Vereine und Veranstaltungen, wie das beliebte „Waltershofener Fäscht“, schaffen eine familienfreundliche Atmosphäre und fördern das Zusammenleben im Ort.
Die Lage Spielhöfe 4 punktet durch ihre angenehme Ruhe und gleichzeitig hervorragende Anbindung: Die Freiburger Innenstadt ist mit dem Auto oder den öffentlichen Verkehrsmitteln in etwa 20 Minuten erreichbar. Auch die Autobahn A5 ist schnell zugänglich, was Pendlern eine hohe Flexibilität bietet.
Naturfreunde finden rund um Waltershofen zahlreiche Rad- und Wanderwege sowie Weinberge und Felder, die zu Erholung und Aktivität im Grünen einladen. Die Nähe zum Tuniberg macht die Umgebung zudem zu einem attraktiven Ausgangspunkt für Ausflüge in die Region.
Insgesamt bietet die Lage Spielhöfe 4 eine seltene Kombination aus naturnahem Wohnen, funktionierender Infrastruktur und guter Erreichbarkeit – ideal für Familien, Paare oder alle, die das Leben im Grünen mit der Nähe zur Stadt verbinden möchten.
Grundriss
von Süden Gartenseite
>
>
Grundriss EG Lageplan
>
>
Grundriss DG
>
>
Grundriss 1 OG
>
>
Ansicht von Westen
>
>
Ansicht von Norden Eingangssei
>
>