Grundstück befindet sich inmitten einem gehobenen Umfeld mit guter Infrastruktur. Die Lage ist entsprechend mit "sehr gut"
zu bewerten. Der Altbestand wurde zwischenzeitlich entfernt, sodass das Grundstück lastenfrei ist und kurzfristig bebaut
werden kann. Ruhige Lage im Grünen, direkt unter dem Kobelkreuz mit kurzem Weg zum S-Bahnhof und fußläufig in ca 15 min zum Universitätsklinikum.
Bebaubar mit EFH, DH bzw Zweifamilienhaus, provisonsfrei direkt vom Eigentümer
Verkauf VB
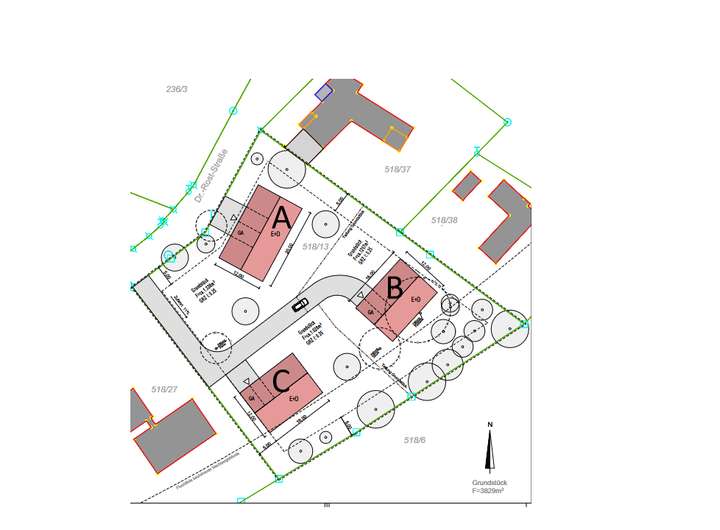
Grundstück A: 1322 qm Preis: 1.080.000,- Euro
Grundstück B: 1257 qm Preis: 1.080.000,- Euro
Grundstück C: 1021 qm Preis: 950.000,- Euro
Gesamtgrundstück: 3829 qm Preis: 2.850.000,- Euro
Grundstück in gehobenen Umfeld mit guter Infrastruktur, ruhiger Lage , kurzfristig bebaubar
Dr. Rost-Straße 26,
86356 Neusäß
Auf Karte anzeigen
Finanzierungszertifikat
In nur zwei Minuten zu Ihrem persönlichen Finanzierungszertifkat.
Infos
| Vermarktungsart | Kaufen |
|---|---|
| Grundstücksfläche | 3.829 m2 |
| Erschließung | Erschlossen |
| Grundflächenzahl (GRZ) | 0.25 |
| Bebaubar nach | Bebauungsplan |
| Verfügbar ab | 27.11.2025 |
Kosten
| Miete pro Jahr |
0 € |
|---|---|
| Provision | Nein |
Finanzierungsrechner:
Kaufpreis:
600.000 €
Eigenkapital:
600.000 €
Monatliche Rate
0 €
Effektiver Jahreszins
0 %
Sollzinsbindung
10 Jahre
Beschreibung des Objekts
Lage
Ruhige Lage in Westheim-Neusäß, Kindergarten, Grundschule und Gymnasium vor Ort