Der Preis beinhaltet das beschriebene Haus und das Grundstück!
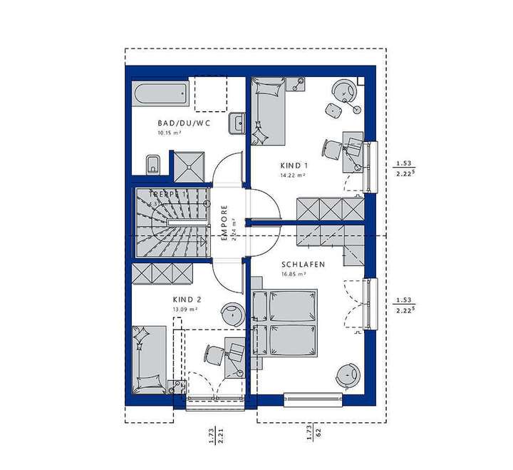
Dieser Entwurf besticht mit seiner schlichten Formensprache: Ganz ohne Schnörkel oder überbordende Verzierungen weiß es sich gegenüber der umliegenden Bebauung zu behaupten. Im Mittelpunkt steht ein quaderförmiger Baukörper, der nur durch eine große Eingangsüberdachung ergänzt wird. Das flach geneigte Satteldach mit den schmalen Dachüberständen harmoniert perfekt mit der reduzierten Optik. Den modernen Wohnwünschen entsprechend öffnet sich das Fertighaus seiner Umgebung mit großzügigen Fensterflächen. Sie reichen von vertikalen und horizontalen Lichtbändern bis hin zur raumhohen Übereck-Verglasung. Einen sehr eleganten Touch erhält das Gebäude durch die anthrazitfarbenen Fensterrahmen, die zusammen mit der dunklen Dacheindeckung einen schönen Kontrast zur strahlend weißen Putzfassade bilden. Damit es auch am Abend gut zur Geltung kommt, können Bauherren Spots in die Dachüberstände integrieren lassen. Der Eingang befindet sich auf der Traufseite. Er kann aber - je nach Grundstückssituation - auch auf die Giebelseite gelegt werden. Das Innere des Hauses präsentiert sich überraschend offen. Erschlossen wird das Erdgeschoss von einer luftigen Diele mit Garderobenbereich: Hier können sich auch mehrere Personen aufhalten, ohne dass Gedränge entsteht. Gerade Familien mit mehreren Kindern oder Hausbesitzer, die gerne Gäste empfangen, werden diesen Vorteil zu schätzen wissen. An die Diele schließen sich ein kompaktes Gäste-WC und ein Hauswirtschaftsraum an. Ein breiter Durchgang führt die Besucher und Bewohner in das Herz des Hauses: den großzügigen Wohn-, Ess- und Kochbereich. Die fließenden Raumübergänge ermöglichen eine besonders familiäre Nähe: Während die Eltern das Essen vorbereiten, stehen sie jederzeit mit den Sprösslingen, die entweder fernsehen oder auf dem Fußboden spielen, in Kontakt. Eine Auszeit vom Familienleben finden die Bewohner im Dachgeschoss, das mit einem Kniestock von 1,60 m fast genauso viel Bewegungsfreiraum bietet wie das Erdgeschoss. Zwei annähernd gleich große Kinderzimmer, ein Elternschlafraum mit großem Ankleidebereich und ein gemütliches Badezimmer laden zum Entspannen ein.
Fertighaus von Bien-Zenker
42781 Haan
Die vollständige Adresse der Immobilie erhalten Sie vom Anbieter.
Auf Karte anzeigen
Die vollständige Adresse der Immobilie erhalten Sie vom Anbieter.
Finanzierungszertifikat
In nur zwei Minuten zu Ihrem persönlichen Finanzierungszertifkat.
Infos
| Wohnfläche ca. | 145 m2 |
|---|---|
| Grundstücksfläche | 550 m2 |
| Zimmer | 5 |
Kosten
| Kaufpreis |
678.999 € |
|---|
Finanzierungsrechner:
Kaufpreis:
600.000 €
Eigenkapital:
600.000 €
Monatliche Rate
0 €
Effektiver Jahreszins
0 %
Sollzinsbindung
10 Jahre
Bausubstanz & Energieausweis
| Baujahr | unbekannt |
|---|
Beschreibung des Objekts
Ausstattung
Dieses hoch gedämmte Fertighaus wird mit einer Wärmepumpe und unserer einzigartigen Wohlkühl-Klima-Heizung PLUS geheizt und gekühlt. Fenster mit Dreifachverglasung, sowie die Dämmung der Wände und im Dach sorgen für sehr geringen Energiebedarf und damit auch Nebenkosten.
Bei dem Hauspreis sind Eigenleistungen eingeplant. Wir können aber auch einzugsfertig liefern.
Lage
Erkrath liegt in Nordrhein-Westfalen, Deutschland, und gehört zum Kreis Mettmann. Die Stadt grenzt direkt an Düsseldorf im Westen und liegt damit in der Metropolregion Rhein-Ruhr. Weitere Nachbarstädte sind Hilden im Süden sowie Mettmann und Haan im Osten.
Durch die Nähe zu Düsseldorf ist Erkrath gut an das Verkehrsnetz angebunden. Die Autobahnen A3 und A46 sind schnell erreichbar, und es gibt eine direkte S-Bahn-Verbindung nach Düsseldorf, Wuppertal und Köln. Außerdem wird die Stadt durch die Düssel, einen kleinen Fluss, durchzogen, und Teile von Erkrath gehören zum Naherholungsgebiet Neandertal.
Sonstige Angaben
Das Haus entspricht dem KfW40 Standard.
Da es sich um eine Projektierung handelt, können wir aber auch ein anderes Bien-Zenker Haus wählen oder konstruieren.
KfW40 + und QNG ist möglich.
Das Angebot richtet sich ausschließlich an Bien-Zenker Kunden!
Wir verkaufen und vermitteln keine Grundstücke.
Wenn Sie Bien-Zenker Kunde werden wollen, vereinbaren Sie bitte einen Termin mit mir.
Grundriss
Grundrissvorschlag Erdgeschoss
>
>
Grundrissvorschlag Dachgeschos
>
>
Adresse
42781 Haan
Interessante Orte
Preis- und Lageinformationen
Preistrend für Bestandsimmobilien in Haan