Der angegebene Preis beinhaltet das beschriebene Haus und das Grundstück!
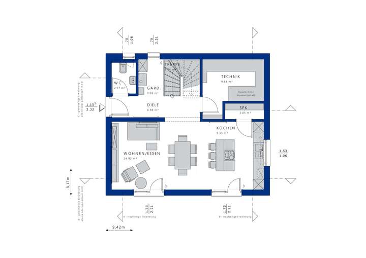
EVOLUTION 136 ist mehr als nur ein Haus - es ist ein Statement moderner Lebensart. Die herausragende Architektur dieses Fertighauses bietet Ihnen eine Symbiose aus klassischem Satteldach-Charme und zeitgemäßer Wohnkultur. Auf einer Wohnfläche von 136 m² verteilt sich ein durchdachtes Raumkonzept, das sowohl für das familiäre Zusammensein als auch für ungestörtes Arbeiten optimale Bedingungen schafft. Das Erdgeschoss besticht mit seinen offenen, lichtgefluteten Räumen, während das Obergeschoss durch großzügige Rückzugsorte überzeugt. Die geradläufige Treppe fungiert nicht nur als Verbindungselement, sondern auch als architektonisches Highlight, das die Eleganz und Offenheit des Hauses unterstreicht.
Die klug konzipierte Ausbaustufe bietet Ihnen die Freiheit zur individuellen Gestaltung: Bien-Zenker übernimmt den Rohbau sowie den technischen Innenausbau, sodass Sie sich auf die Gestaltung der Böden, Malerarbeiten und Sanitärinstallationen konzentrieren können. Dies erlaubt nicht nur eine persönliche Note in Ihrem neuen Zuhause, sondern sorgt auch für ein hohes Maß an Energieeffizienz und Nachhaltigkeit. Dank der Erfüllung der Anforderungen des staatlichen Qualitätssiegels QNG profitieren Sie von Fördermöglichkeiten und einem wohngesunden Lebensumfeld.
Bien-Zenker steht für Tradition und Innovation im Fertighausbau. Mit über 115 Jahren Erfahrung gehört die Marke zu den Pionieren ihrer Branche. Jedes Hausprojekt wird individuell betreut - von der Planung bis zur Schlüsselübergabe stehen Ihnen Experten zur Seite, um Ihre Vision vom perfekten Zuhause Wirklichkeit werden zu lassen. Vertrauen Sie auf die bewährte Qualität und das Engagement einer Marke, die sich voll und ganz Ihren Bedürfnissen verschrieben hat.
Grundrisse und Abbildungen können Extras zeigen. Flächenangaben nach DIN 277.
Ihr Traumhaus von Bien-Zenker
42781 Haan
Die vollständige Adresse der Immobilie erhalten Sie vom Anbieter.
Auf Karte anzeigen
Die vollständige Adresse der Immobilie erhalten Sie vom Anbieter.
Finanzierungszertifikat
In nur zwei Minuten zu Ihrem persönlichen Finanzierungszertifkat.
Infos
| Wohnfläche ca. | 136 m2 |
|---|---|
| Grundstücksfläche | 500 m2 |
| Zimmer | 5 |
Kosten
| Kaufpreis |
602.699 € |
|---|
Finanzierungsrechner:
Kaufpreis:
600.000 €
Eigenkapital:
600.000 €
Monatliche Rate
0 €
Effektiver Jahreszins
0 %
Sollzinsbindung
10 Jahre
Bausubstanz & Energieausweis
| Baujahr | unbekannt |
|---|
Beschreibung des Objekts
Ausstattung
Dieses hoch gedämmte Fertighaus wird mit einer Wärmepumpe und unserer einzigartigen Wohlkühl-Klima-Heizung PLUS geheizt und gekühlt. Fenster mit Dreifachverglasung, sowie die Dämmung der Wände und im Dach sorgen für sehr geringen Energiebedarf und damit auch Nebenkosten.
Bei diesem Preis sind Eigenleistungen eingeplant. Wir können aber auch gerne einzugsfertig liefern.
Lage
Haan, auch bekannt als die Gartenstadt, liegt ungefähr auf halber Strecke zwischen Düsseldorf (18 km Entfernung) und Wuppertal (13 km Entfernung) im Bergischen Land. Die Stadt hat rund 30.000 Einwohner und zeichnet sich durch ihre liebenswerte Atmosphäre, gemütliche Umgebung und naturnahe Lage aus. Haan wird sowohl von Einflüssen aus dem Bergischen Land als auch aus dem Rheinland geprägt. Mit attraktiven Wohngebieten im Grünen, guten Einkaufsmöglichkeiten, Naherholungsgebieten und einem vielfältigen Sport- und Vereinsleben bietet Haan eine hohe Lebensqualität.
Sonstige Angaben
Das Haus erfüllt den KfW40 Standard.
Da es sich um eine Projektierung handelt, können wir aber auch ein anderes Bien-Zenker Haus wählen oder konstruieren.
KfW40 + und QNG ist möglich.
Das Angebot richtet sich ausschließlich an Bien-Zenker Kunden!
Wir verkaufen und vermitteln keine Grundstücke.
Wenn Sie Bien-Zenker Kunde werden wollen, vereinbaren Sie einen Termin mit mir.
Grundriss
Grundrissvorschlag Dachgeschos
>
>
Grundrissvorschlag Erdgeschoss
>
>
Adresse
42781 Haan
Interessante Orte
Preis- und Lageinformationen
Preistrend für Bestandsimmobilien in Haan