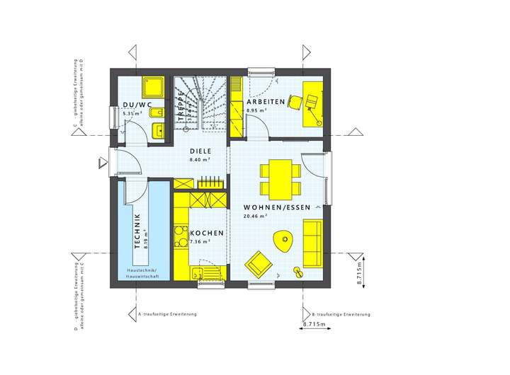
Willkommen in deinem zukünftigen Zuhause in Soltau! Dieses wunderschöne Einfamilienhaus wird nach deinen Wünschen und Vorstellungen projektiert und bietet dir mit 124 m² Wohnfläche und 5 Zimmern genügend Platz für die ganze Familie. Der klassische Satteldachbau mit einer Neigung von 38 Grad sorgt nicht nur für eine ansprechende Optik, sondern auch für ein wohliges Raumklima. Der Erker oder Giebel erweitert deinen Wohnbereich und schafft eine einladende Atmosphäre. Die bodentiefen Fenster durchfluten die Räume mit natürlichem Licht und bieten einen wunderschönen Blick in den Garten, der auf einem großzügigen Grundstück von 655 m² angelegt ist. Hier kannst du entspannen, spielen und die Natur genießen.
Ein weiteres Highlight sind die zahlreichen zusätzlichen Leistungen von Living Haus. Deine Traumküche wird nach deinen individuellen Vorstellungen gestaltet und ist mit modernster Technik sowie cleveren Stauraumlösungen ausgestattet. So kannst du gleich nach dem Einzug mit dem Kochen beginnen.
Das Living Haus Bau-Cockpit ermöglicht es dir, dein Bauprojekt digital zu verwalten, sodass du jederzeit den Überblick über Zeitpläne und Dokumente behältst. Mit I-KON - Intelligentes Bauen wird dein neues Zuhause nicht nur energieeffizient, sondern auch nachhaltig gestaltet, sodass du die Umwelt und deinen Geldbeutel schonst.
Das Zuhause-Darlehen bietet dir die Möglichkeit, dein Traumhaus zu einem besonders günstigen Zinssatz zu finanzieren. Das Zuhause-Paket garantiert dir eine hochwertige Grundausstattung mit modernen Materialien, sodass dein Haus perfekt aufeinander abgestimmt und bezugsfertig ist. Wenn du gerne selbst Hand anlegst, dann ist das DIY-Ausbau-Coaching genau das Richtige für dich. In nur drei Tagen zeigen dir Experten, wie du den Innenausbau eigenständig meistern kannst.
Lass deinen Traum vom Eigenheim Wirklichkeit werden - mit Living Haus verwirklichst du dein individuelles Traumhaus!
Dein individuelles Traumhaus in Soltau - Wohnen, wie du es willst!
29614 Soltau
Die vollständige Adresse der Immobilie erhalten Sie vom Anbieter.
Auf Karte anzeigen
Die vollständige Adresse der Immobilie erhalten Sie vom Anbieter.
Finanzierungszertifikat
In nur zwei Minuten zu Ihrem persönlichen Finanzierungszertifkat.
Infos
| Haustyp | Einfamilienhaus |
|---|---|
| Etagenzahl | 2 |
| Wohnfläche ca. | 124 m2 |
| Nutzfläche | 124 m2 |
| Grundstücksfläche | 655 m2 |
| Zimmer | 5 |
| Schlafzimmer | 3 |
| Badezimmer | 1 |
Kosten
| Kaufpreis |
483.541 € |
|---|
Finanzierungsrechner:
Kaufpreis:
600.000 €
Eigenkapital:
600.000 €
Monatliche Rate
0 €
Effektiver Jahreszins
0 %
Sollzinsbindung
10 Jahre
Bausubstanz & Energieausweis
| Baujahr | 2026 |
|---|---|
| Bauphase | Haus in Planung (projektiert) |
| Qualität der Austattung | Gehoben |
| Energieausweis | liegt vor |
| Energieausweistyp | Bedarfsausweis |
| Energieverbrauchskennwert | 18,0 kWh/(m²*a) |
| Energieeffizienzklasse | A+ |
18,0
kWh/(m²*a)
Energieeffizienzklasse A+
- A+
- A
- B
- C
- D
- E
- F
- G
- H
- 0
- 25
- 50
- 75
- 100
- 125
- 150
- 175
- 200
- 225
- >250
Beschreibung des Objekts
Ausstattung
Die Ausstattung deines neuen Homes ist durchdacht und hochwertig. Du erhältst eine individuelle Traumküche, die auf deinen Grundriss abgestimmt ist und mit moderner Technik und ästhetischem Design überzeugt. Das Zuhause-Paket bietet dir edle Türen, stilvolle Sanitäranlagen und moderne Böden, die optimal aufeinander abgestimmt sind und fix und fertig geliefert werden. Mit I-KON - Intelligentes Bauen integrierst du nachhaltige Technologien für ein energieeffizientes Zuhause. Die Ausstattung sorgt für ein hohes Maß an Komfort und Funktionalität. Alles ist darauf ausgelegt, dir dein persönliches "Wie ich es will Fertighaus" zu ermöglichen!
Lage
Dein neues Zuhause in Soltau bietet eine hervorragende Anbindung an Bildung, Gesundheit, Einkauf und Freizeitmöglichkeiten. In der direkten Umgebung befinden sich mehrere Kindergärten und Schulen, darunter die Grundschule Soltau, die für ihre gute Betreuung und engagierten Lehrer bekannt ist. Auch das Gymnasium Soltau ist in der Nähe und bietet eine umfassende Ausbildung für deine Kinder.
Für die Gesundheit ist bestens gesorgt: In Soltau findest du zahlreiche Ärzte, Zahnärzte und Fachkliniken, die schnell erreichbar sind. Supermärkte und Einkaufsmöglichkeiten sind ebenfalls in der Nähe, sodass du deine Besorgungen bequem erledigen kannst. Die Autobahn A7 ist nur wenige Minuten entfernt und sorgt für eine schnelle Anbindung an die Städte Hamburg und Hannover.
Die Freizeitangebote in Soltau sind vielfältig. Der Serengeti-Park zieht Familien und Tierliebhaber an und bietet ein einzigartiges Erlebnis. Zudem gibt es zahlreiche Wander- und Radwege in der Umgebung, die Naturliebhaber begeistern. Ein tolles Freizeitbad mit Sauna und Wellnessbereich sorgt für Erholung und Spaß. Die gute Anbindung an den öffentlichen Nahverkehr ermöglicht es dir, die Umgebung bequem zu erkunden. Soltau ist also der ideale Ort für Familien, Naturliebhaber und Pendler, die ein harmonisches Leben in einer lebenswerten Stadt suchen.
Adresse
29614 Soltau
Interessante Orte
Preis- und Lageinformationen
Preistrend für Bestandsimmobilien in Soltau