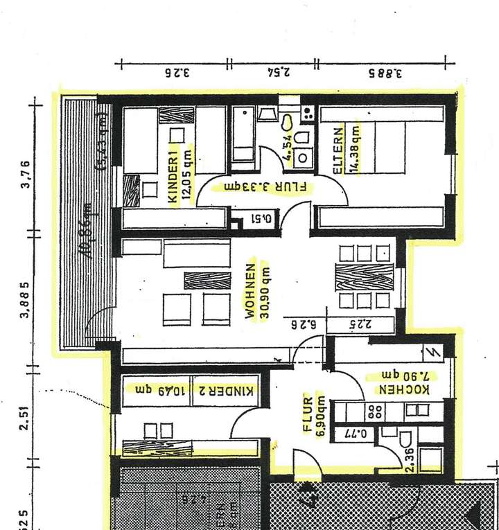
Diese gut geschnittene, 100m² große, 4 ZKB-Eigentumswohnung besticht durch eine sehr gute Raumaufteilung.
Vom Aufzug aus sind es nur drei, vier schritte bis zur Wohnungstür. Sie betreten die Wohnung durch einen kleinen Flur. Der Boden ist mit schickem Echtholzparkett belegt. Vom Flur aus gelangen Sie ideal in das erste der beiden Kinderzimmer und in die hell geflieste Küche mit Fenster. Die weiße Einbauküche ist im Kaufpreis enthalten.
Seitlich ist die Flurgarderobe und ein Einbauschrank angebracht. Von hier gelangen Sie in das neu renovierte und hell geflieste Gäste-Bad mit Dusche und Toilette.
Der große Wohn- und Essbereich ist mit hübschem Laminatboden belegt und ca. 30m² groß. Der Raum bildet das Zentrum der gut geschnittenen Eigentumswohnung.
Vom großen Süd-West-Balkon aus, schauen Sie direkt über die "grünen Höfe" nach Maudach, bis zum Pfälzer Wald. Vom Essplatz blicken Sie in Richtung Odenwald.
Im hinteren Teil dieser schönen Eigentumswohnung befindet sich das Elternschlafzimmer. Hier haben ein großer Schrank und ein großes Bett genügend Platz. Daneben gibt es ein Tageslichtbad mit Badewanne, Toilette, Bidet und Waschtisch. Das größere, zweite Kinderzimmer liegt ebenfalls in diesem Bereich.
Zur Eigentumswohnung gehört eine Garage. Die Garage ist im Kaufpreis inbegriffen.
Sie kaufen provisionsfrei direkt vom Eigentümer!
Bitte lassen Sie sich von Ihrer Bank eine Bestätigung ausstellen, dass Sie die Finanzierung erhalten und übermitteln uns die Finanzierungsbestätigung vorab, beziehungsweise bringen Sie die Finanzierungsbestätigung zum Besichtigungstermin mit.
Wir freuen uns auf Ihre Nachricht.
***Provisionsfrei***Ideal für junge Familie! sehr helle 4 ZKB, Balkon, 2 Bäder, inkl. EBK und Garage
Hochfeldstrasse 16,
67067 Ludwigshafen am Rhein
Auf Karte anzeigen
Finanzierungszertifikat
In nur zwei Minuten zu Ihrem persönlichen Finanzierungszertifkat.
Infos
| Wohnungskategorie | Etagenwohnung |
|---|---|
| Etage | 9 von 11 |
| Wohnfläche ca. | 99 m2 |
| Bezugsfrei ab | sofort |
| Zimmer | 4 |
| Schlafzimmer | 3 |
| Badezimmer | 2 |
| Garage/Stellplatz | Garage |
| Anzahl Garage/Stellplatz | 1 |
Kosten
| Kaufpreis |
284.800 € |
|---|---|
| Hausgeld |
432 € |
| Provision | Nein |
Finanzierungsrechner:
Kaufpreis:
600.000 €
Eigenkapital:
600.000 €
Monatliche Rate
0 €
Effektiver Jahreszins
0 %
Sollzinsbindung
10 Jahre
Bausubstanz & Energieausweis
| Baujahr | 1971 |
|---|---|
| Letzte Sanierung | 2025 |
| Objektzustand | Gepflegt |
| Qualität der Austattung | Normal |
| Heizungsart | Zentralheizung |
| Wesentliche Energieträger | Öl |
| Energieausweis | liegt vor |
| Energieausweistyp | Verbrauchsausweis |
| Energieverbrauchskennwert | 101,7 kWh/(m²*a) |
| Energieeffizienzklasse | D |
101,7
kWh/(m²*a)
Energieeffizienzklasse D
- A+
- A
- B
- C
- D
- E
- F
- G
- H
- 0
- 25
- 50
- 75
- 100
- 125
- 150
- 175
- 200
- 225
- >250
Beschreibung des Objekts
Ausstattung
4 ZKB;
ca. 100m²;
großer Balkon;
abgeschlossene Küche;
Einbauküche, mit allen E-Geräten;
über 30m², heller Wohn- und Essbereich mit Laminat;
2 Kinderzimmer, gefliest/Teppichboden;
1 Elternschlafzimmer mit Teppichboden;
kleiner Flur mit Garderobe;
Garage direkt am Hauseingang;
Keller;
Aufzug;
Lage: 9. OG;
barrierefreier Zugang über Rampe;
elektrische Haus-Eingangstür;
Spielplatz/ Sandkasten am Haus;
separate Waschmaschine im Keller;
Ideal für die Familie mit 1-2 Kindern.
Lage
Die Wohnung liegt im beliebten Ludwigshafener Stadtteil LU-Gartenstadt, in der Hochfeldstraße 16. Von hier aus gelangen Sie schnell zur BASF und nach Mannheim. Das nahe gelegene Maudacher Bruch lädt zu ruhigen Sonntagsspaziergängen im Wäldchen ein. Die Geschäfte zum Einkaufen des täglichen Bedarfs sind in wenigen Minuten zu Fuß zu erreichen.
Sonstige Angaben
Die Wohnung wird von uns provisionsfrei verkauft. Alles aus einer Hand! Wir beraten Sie zu Verkauf und Finanzierung.
Weitere Dokumente
WohnflächenberechnungEnergieausweis
Adresse
Hochfeldstrasse 16, 67067 Ludwigshafen am Rhein
Interessante Orte
Preis- und Lageinformationen
Preistrend für Bestandsimmobilien in Gartenstadt
>
>