Wenn Sie die Diele des Architektenhauses Allea betreten, haben Sie Blick in den großen Wohn- und Essbereich. Durch bodentiefe Schiebeelemente ist dieser Bereich lichtdurchflutet und Sie können sowohl vom Sofa als auch vom Esstisch in den Garten schauen. Architektonisches Highlight des Familienhauses ist der Erker mit drei Fensterelementen, in dem das Esszimmer untergebracht ist. Die offene Küche grenzt direkt an das Esszimmer, ist aber auch von der Diele aus betretbar. Insgesamt umfassen Küche und Wohn-Essbereich mehr als 46 Quadratmeter. Im Erdgeschoss befinden sich zudem ein Home-Office, eine Garderobe sowie ein WC.
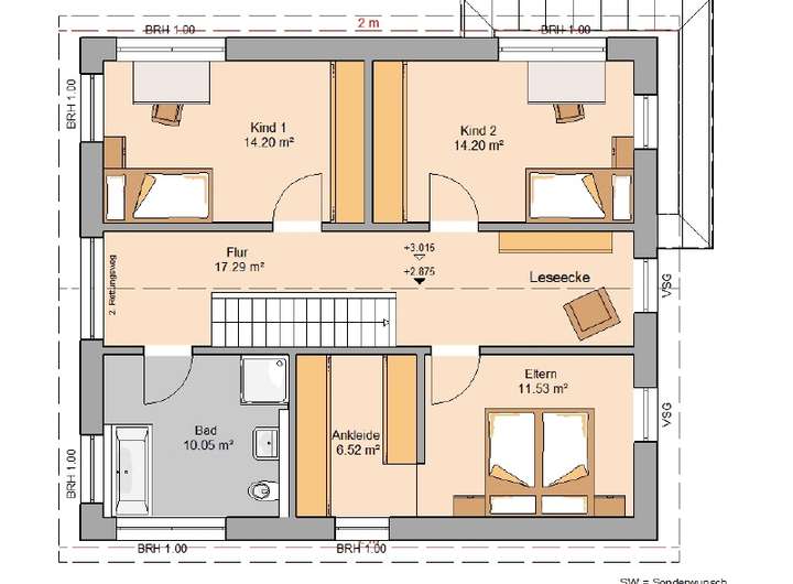
Über eine geradläufige Treppe erreichen Sie das Dachgeschoss. Gemütlich ist die Leseecke, in der Sie mit einem schönen Buch sitzen und durch das bodentiefe Glaselement nach draußen in den Garten schauen können. Der Flur wird durch zwei bodentiefe Fensterelemente auf beiden Seiten des Hauses lichtdurchflutet. Vom Flur aus haben Sie Zugang in die Zimmer des Dachgeschosses. Die beiden Kinderzimmer sind mit rund 14 Quadratmetern gleich groß. Das Elternschlafzimmer verfügt über eine eigene Ankleide. Das Familienbadezimmer besitzt neben einer Dusche auch eine Badewanne und ist rund zehn Quadratmeter groß. Hingucker auf der Eingangsseite ist das große Fensterelement über der Tür, das den Flur im Dachgeschoss lichtdurchflutet.
Dieses Haus wird nach Ihren individuellen Wünschen geplant und ausgestattet!
Sie hatten schon immer eine Vorliebe für das Besondere? (inkl. Grundstück)
67435 Neustadt an der Weinstraße
Die vollständige Adresse der Immobilie erhalten Sie vom Anbieter.
Auf Karte anzeigen
Die vollständige Adresse der Immobilie erhalten Sie vom Anbieter.
Finanzierungszertifikat
In nur zwei Minuten zu Ihrem persönlichen Finanzierungszertifkat.
Infos
| Haustyp | Einfamilienhaus |
|---|---|
| Wohnfläche ca. | 154 m2 |
| Grundstücksfläche | 495 m2 |
| Zimmer | 5 |
| Schlafzimmer | 4 |
| Badezimmer | 1 |
| Anzahl Garage/Stellplatz | 2 |
Kosten
| Kaufpreis |
784.565 € |
|---|---|
| Provision | Nein |
Finanzierungsrechner:
Kaufpreis:
600.000 €
Eigenkapital:
600.000 €
Monatliche Rate
0 €
Effektiver Jahreszins
0 %
Sollzinsbindung
10 Jahre
Bausubstanz & Energieausweis
| Baujahr | 2024 |
|---|---|
| Bauphase | Haus in Planung (projektiert) |
| Objektzustand | Erstbezug |
| Qualität der Austattung | Gehoben |
| Heizungsart | Wärmepumpe |
| Wesentliche Energieträger | Strom |
| Energieausweis | liegt vor |
| Energieausweistyp | Bedarfsausweis |
| Energieverbrauchskennwert | 20,1 kWh/(m²*a) |
| Energieeffizienzklasse | A+ |
20,1
kWh/(m²*a)
Energieeffizienzklasse A+
- A+
- A
- B
- C
- D
- E
- F
- G
- H
- 0
- 25
- 50
- 75
- 100
- 125
- 150
- 175
- 200
- 225
- >250
Beschreibung des Objekts
Ausstattung
5 Zimmer, offene Küche, Diele, WC, Garderobe, Bad, Flur, Leseecke, Ankleide, Hauswirtschaftsraum
Das gezeigte Traumhaus im Überblick:
+ Schlüsselfertiges Massivhaus im Sinne der Ausstattungsbeschreibung "Edition 25"
+ Zukunftsorientierte Energieausstattung in Form einer Luft-Wasser-Wärmepumpe und Fußbodenheizung sowie einer kontrollierten Wohnraumlüftung mit Wärmerückgewinnung
+ Inklusive Bodenplatte
Beste Markenausstattung in jedem Kern-Haus:
+ Zimmermannsmäßiger Dachstuhl aus Konstruktionsvollholz
+ Dacheindeckung mit Betondachsteinen von Braas
+ Hochwertiger Kunstharz-Außenputz für eine langlebige Fassade
+ Vollständige Badausstattung von Villeroy & Boch mit Badewanne und flacher Duschwanne sowie einer Echtglasduschkabine
+ Fliesen von Villeroy & Boch in Bad und WC
+ Haustür mit 5-fach-Sicherheitsverriegelung
+ Erstklassige Innentüren der Marke Herholz
+ Fenster mit 3-Scheiben-Wärmeschutzverglasung und elektrischen Rollläden
+ Stahl-Holz-Treppe mit individueller Farbgestaltungsmöglichkeit
+ Vollständige und überdurchschnittliche Elektroausstattung inklusive Klingelanlage und Netzwerkdosen
+ Rauchmelder für Ihre Sicherheit
+ Alle Leistungen aus einer Hand
+ Alle Planungs- und Architektenleistungen
+ Einsatz regionaler Handwerksbetriebe
+ Baubegleitende 5-Phasen-TÜV-Prüfung und Blower-Door-Test
+ Individuelle Anpassung auf Ihre Bedürfnisse
+ Auf Wunsch mit Keller erhältlich
+ Auf Wunsch mit weiteren Energietechniken erhältlich
Lage
Grundstück in Neustadt im Neubaugebiet "Am Jahnplatz"
Der Doppelort "Lachen-Speyerdorf" liegt ca. 5 km süd-östlich von Neustadt. Zwischen Wein-, Wiesen- und Waldflächen (Ordenswald) gelegen, rundet ein schöner Blick auf das Haardt-Gebirge das Bild des Ortes ab.
Das Neubaugebiet verbindet die beiden vorhandenen Ortsteile und wird somit zur neuen Orts-mitte von "Lachen-Speyerdorf". Sehr gute Verkehrsanbindungen in alle Richtungen sowie beste Bahnanbindungen (S-Bahn) sind vorhanden. Die Städte Karlsruhe, Mannheim, Ludwigshafen und Kaiserslautern erreichen Sie in ca. 20-30 Minuten.
Neben einer guten Ausstattung mit allen Einrichtungen einer modernen Gemeinde finden Sie hier ein Vereinsleben vor, in dem Erwachsene sowie Kinder in sportlichen, kulturellen oder geselligen Bereichen vielfältige Möglichkeiten für eine entsprechende Freizeitgestaltung haben.
Sonstige Angaben
Kern-Haus
Kern-Haus baut individuelle und massive Architektenhäuser zu einem attraktiven Preis-Leistungs-Verhältnis – und das bereits mit einer Erfahrung seit 1980. Bei Kern-Haus erhalten Sie unter anderem 10 Jahre Gewährleistung auf die wesentlichen Bauleistungen, bis zu 24 Monate Preissicherheit sowie eine dokumentierte 5-Phasen-TÜV-Prüfung während der Bauphase. Jedes Kern-Haus als Effizienzhaus 40 ist bereits QNG-zertifiziert durch die Deutsche Gesellschaft für nachhaltiges Bauen (DGNB).
40 Jahre Expertise für das massive, energieeffiziente Bauen: Kern-Haus realisiert Massivhäuser in Ziegel, Bims, Porenbeton oder Stahlbeton (DuoTherm).
Kern-Haus setzt auf eine hohe Bauqualität der Handwerker und auf eine große Auswahl starker Marken. So verwendet Kern-Haus beim Bau Ihres Hauses nur hochwertige Markenprodukte renommierter Hersteller – wie etwa Produkte von Villeroy & Boch.
Preise und Auszeichnungen von Kern-Haus:
- German Brand Award in den Jahren 2018 und 2021
- Hausbau Design Award: Sieger in den Jahren 2017, 2018, 2019, 2020, 2021, 2022 und 2023
- Deutscher Traumhauspreis: Sieger in den Jahren 2014, 2015, 2016 und 2018 und Silber 2017, 2020 und 2021
- Mittelstandspreis "Top 100" in den Jahren 2014, 2016, 2018, 2020 und 2022
- German Design Award im Jahr 2018
Weitere Informationen
Der gezeigte Preis versteht sich inklusive Grundstück und exklusive der Baunebenkosten.
Grundriss
Grundriss Erdgeschoss
>
>
Grundriss Dachgeschoss
>
>
Adresse
67435 Neustadt an der Weinstraße
Interessante Orte
Preis- und Lageinformationen
Preistrend für Bestandsimmobilien in Lachen-Speyerdorf