Das Grundstück befindet sich in Vitte auf der Insel Hiddensee und ist, nach derzeitigem Stand, bebaubar mit einem Wohn- oder Ferienhaus.
............ weitere Informationen entnehmen Sie bitte unserem Exposè welches Sie anfordern können.
Insel Hiddensee - Baugrundstück ! in Vitte
18565 Insel Hiddensee
Die vollständige Adresse der Immobilie erhalten Sie vom Anbieter.
Auf Karte anzeigen
Die vollständige Adresse der Immobilie erhalten Sie vom Anbieter.
Finanzierungszertifikat
In nur zwei Minuten zu Ihrem persönlichen Finanzierungszertifkat.
Infos
| Vermarktungsart | Kaufen |
|---|---|
| Grundstücksfläche | 691 m2 |
Kosten
| Miete pro Jahr |
520.000 € |
|---|---|
| Provision |
6 % vom Kaufpreis |
Finanzierungsrechner:
Kaufpreis:
600.000 €
Eigenkapital:
600.000 €
Monatliche Rate
0 €
Effektiver Jahreszins
0 %
Sollzinsbindung
10 Jahre
Beschreibung des Objekts
Lage
Vitte liegt auf der Insel Hiddensee, nordwestlich der Ostseeküste Deutschlands. Die Lage des Grundstückes ist zentrumsnah in Vitte, mit kurzen Wegen zu Einkaufsmöglichkeiten, Restaurants und medizinischer Versorgung. Die Insel ist autofrei, was zu einem ruhigen und naturnahen Lebensstil beiträgt. Von der Lage aus bestehen gute Möglichkeiten für Wander- und Fahrradtouren, und es gibt unmittelbaren Zugang zu Küsten- und Dünenlandschaften sowie Naturschutzgebieten in der Nähe.
............ weitere Informationen entnehmen Sie bitte unserem Exposè welches Sie anfordern können.
Sonstige Angaben
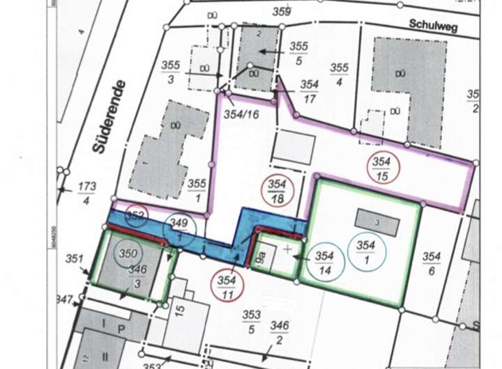
weitere Unterlagen wie eine Flurkarte oder einen Lageplan erhalten Sie bei Anforderung des Exposè
Grundriss
Lageplan mit Wegerecht
>
>
Flurkarte mit Wegerecht
>
>