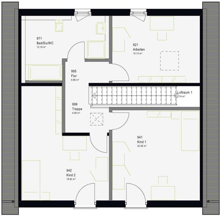
Das Highlight des Einfamilienhauses LifeStyle 15.01 S ist die nahezu mittig integrierte, gerade Treppe, die beide Wohnebenen auf elegante Weise gliedert. Im Erdgeschoss ergibt sich dadurch ein einladendes Entree mit großer Diele sowie eine offene Wohn-, Ess- und Küchen-Kombination - unter dem Satteldach gruppieren sich Arbeits-, Bad- und Kinderzimmer harmonisch um den Treppenaufgang.
Einfamilienhaus inkl. Grundstück / Auch andere Haustypen möglich
94086 Bad Griesbach im Rottal
Die vollständige Adresse der Immobilie erhalten Sie vom Anbieter.
Auf Karte anzeigen
Die vollständige Adresse der Immobilie erhalten Sie vom Anbieter.
Finanzierungszertifikat
In nur zwei Minuten zu Ihrem persönlichen Finanzierungszertifkat.
Infos
| Haustyp | Einfamilienhaus |
|---|---|
| Wohnfläche ca. | 159 m2 |
| Grundstücksfläche | 689 m2 |
| Zimmer | 5 |
| Schlafzimmer | 4 |
| Badezimmer | 1 |
Kosten
| Kaufpreis |
457.000 € |
|---|---|
| Provision | Nein |
Finanzierungsrechner:
Kaufpreis:
600.000 €
Eigenkapital:
600.000 €
Monatliche Rate
0 €
Effektiver Jahreszins
0 %
Sollzinsbindung
10 Jahre
Bausubstanz & Energieausweis
| Baujahr | unbekannt |
|---|---|
| Bauphase | Haus in Planung (projektiert) |
| Qualität der Austattung | Gehoben |
| Heizungsart | Wärmepumpe |
Beschreibung des Objekts
Ausstattung
Im Preis enthalten:
+ Dein Energieeffizienzhaus inkl. Bodenplatte
+ inkl. Grundstück
+ inkl. Deckenhöhe mit unglaublichen 2,75 m
+ inkl. Mineralischer Strukturputz in weiß
+ inkl. 3-fach Wärmeschutzverglasung
+ inkl. Haustüre (verschiedene Modelle zur Auswahl)
+ inkl. Aluminium Rollläden
+ inkl. Fußbodenheizung und Montage
+ inkl. Luft-Wasser-Wärmepumpe mit kontrollierter Be- und Entlüftung mit Wärmerückgewinnung
+ inkl. Sanitärrohinstallation und Montage
+ inkl. Elektropaket und Montage
+ inkl. Fensterbänke (außen Aluminium)
+ inkl. Treppe mit Montage
+ inkl. Architektenleistung
+ inkl. Baugrunduntersuchung
+ inkl. Bauleistungsversicherung
+ inkl. Bauherren-Haftpflichtversicherung
+ inkl. Wohngebäudeversicherung
+ inkl. Feuer-Rohbauversicherung
+ inkl. Einkommensschutzversicherung
Weitere Ausbaustufen und die Änderung der Größe und Raumaufteilung selbstverständlich möglich.
AUSSERDEM BIETEN WIR IHNEN:
- Kostenloser Finanzierungsservice (auch ohne Eigenkapital möglich)
- Kostenloser Grundstücksservice
- mehr als 45 Jahre Bauerfahrung mit weit über 44.000 gebauten Häusern... made in Germany
- Sicherheit eines Großunternehmens mit Top Qualität
- Ohne Vorauszahlungen, Bezahlung erst nach Abnahme
- 15 Monate Festpreisgarantie
- Professionelle Bauberatung und persönliche Baubetreuung
Ich zeige Ihnen wie Sie günstig zu Ihrem Traumhaus kommen und freue mich darauf mit Ihnen zusammen ihr Traumhaus zu realisieren!
Warum mit Massa-Haus?
- Erfahrung im Hausbau seit über 45 Jahren
- TOP Preis-Leistungs-Verhältnis
- Qualitätsversprechen
- Professionelle und individuelle Beratung
- Planung und Mitgestaltung der Grundrisse
- Bezahlung des Hauses erst nach Abnahme
- Montage innerhalb weniger Tage
- Professionelle Ausbauberatung vor Ort
- Günstige Finanzierung mit unserem starken Partner BHW
- Unsere Häuser sind förderfähig
Bist du bereit zu bauen? Dann melde dich bei mir!
Lage
Wir möchten Sie darüber informieren, dass wir keine Grundstücksdetails vorab weitergeben können. Unser Unternehmen legt großen Wert darauf, unsere Kunden persönlich zu beraten und ihre individuellen Bedürfnisse und Anforderungen zu verstehen.
Aus diesem Grund verschicken wir auch keine Angebote per E-Mail. Wir sind fest davon überzeugt, dass ein persönliches Gespräch der beste Weg ist, um Ihre Wünsche und Vorstellungen zu besprechen und Ihnen maßgeschneiderte Lösungen anzubieten, die perfekt zu Ihren Bedürfnissen passen.
Gerne laden wir Sie daher zu einem persönlichen Gespräch in unserem Büro ein. Dabei haben Sie die Möglichkeit, uns kennenzulernen, offene Fragen zu klären und gemeinsam mit uns Ihr Bauprojekt zu planen.
Wir freuen uns darauf, Sie persönlich beraten zu dürfen und gemeinsam mit Ihnen Ihr Traumhaus zu verwirklichen.
Das mit eingerechnete Grundstück ist zum Zeitpunkt der Projektierung ein existierendes, bzw. ein in Kürze verfügbares Grundstück, dass von einem Drittanbieter angeboten wird (evtl. ist eine Provision für das GS fällig) oder von mir provisionsfrei vermarktet wird.
Sonstige Angaben
Sie besitzen bereits ein Grundstück? Perfekt, dann lassen Sie uns gemeinsam planen, was auf Ihrem Grundstück realisiert werden kann. Egal ob ein freistehendes Ein- oder Zweifamilienhaus, Bungalow, Stadtvilla, Doppelhaus, eine Doppelhaushälfte, Reihenhaus oder Mehrfamilienhaus.
Sie bevorzugen eine andere Lage? Auch kein Problem. Ich bin Ihr persönlicher Ansprechpartner für Ihre Region und unterstütze Sie gerne kostenfrei bei der Suche nach einem passenden Bauplatz. Dabei berücksichtige ich selbstverständlich Ihre Wünsche hinsichtlich der Lage und den Rahmen ihrer finanziellen Vorstellung.
Alle Angaben wurden nach bestem Wissen und Gewissen erstellt. Grundlage der vorstehenden Angaben sind Informationen, welche uns seitens Dritter zur Verfügung gestellt werden. Eine Gewähr für die Richtigkeit der Angaben kann daher nicht übernommen werden. Irrtum und Zwischenverkauf vorbehalten.
Grundriss
46309-3587-5-g
>
>
46310-3587-6-g
>
>
Adresse
94086 Bad Griesbach im Rottal
Interessante Orte
Preis- und Lageinformationen
Preistrend für Bestandsimmobilien in Bad Griesbach im Rottal