Alles unter einem Dach, so macht Familienleben Spaß!!!
Das Doppelhaus 176 schafft auf seinen zwei Vollgeschossen und im zusätzlich nutzbaren Dachgeschoss ein wahrhaft großzügiges Raumangebot.
Der alltagstaugliche und familienfreundliche Grundriss bietet
mit ca. 174 m² vielfältige Nutzungsmöglichkeiten.
Zusätzlich zu den Wohnräumen im Erdgeschoss und den
Schlafräumen im Obergeschoss stehen im Dachgeschoss weitere Räume zur Verfügung, die sich zum Beispiel als drittes Kinderzimmer, Arbeits-/Gästezimmer oder als Hobbyraum nutzen lassen.
Zudem ist Platz für einen Abstellraum. Optional kann der Hausentwurf mit einem Haustürvordach erweitert werden, das den Eingangsbereich vor Wind und Wetter schützt.
Das 750m² große Grundstück bietet viel Raum zur Gartengestaltung, mit freiem und unverbauten Blick in Feldrandlage.
Großzügige Doppelhaushälfte mit Dachgeschoss-Studio und Gartenoase
41372 Niederkrüchten
Die vollständige Adresse der Immobilie erhalten Sie vom Anbieter.
Auf Karte anzeigen
Die vollständige Adresse der Immobilie erhalten Sie vom Anbieter.
Finanzierungszertifikat
In nur zwei Minuten zu Ihrem persönlichen Finanzierungszertifkat.
Infos
| Etagenzahl | 3 |
|---|---|
| Wohnfläche ca. | 153 m2 |
| Grundstücksfläche | 750 m2 |
| Zimmer | 6 |
| Schlafzimmer | 5 |
| Badezimmer | 2 |
Kosten
| Kaufpreis |
595.000 € |
|---|---|
| Provision |
3.570,00 |
Finanzierungsrechner:
Kaufpreis:
600.000 €
Eigenkapital:
600.000 €
Monatliche Rate
0 €
Effektiver Jahreszins
0 %
Sollzinsbindung
10 Jahre
Bausubstanz & Energieausweis
| Bauphase | Haus in Planung (projektiert) |
|---|---|
| Objektzustand | Erstbezug |
| Qualität der Austattung | Gehoben |
Beschreibung des Objekts
Ausstattung
Gerne stelle ich Ihnen das Hausbauprojekt in einem persönlichen Gespräch näher vor.
Lage
Niederkrüchten ist eine charmante Gemeinde im Kreis Viersen, die eine gute Infrastruktur mit Einkaufsmöglichkeiten für den täglichen Bedarf sowie Ärzten und Schulen bietet. Die Verkehrsanbindung ist gut, mit Anbindungen an das überregionale Straßennetz.
Zahlreiche Grünflächen und Naherholungsgebiete in der Umgebung laden zu Freizeitaktivitäten im Freien ein und machen Niederkrüchten zu einem attraktiven Wohnort.
Sonstige Angaben
Der angebotene Preis beinhaltet das schlüsselfertige (bezugsfertig ohne Küche) Haus inkl. der zu erwartenden Abrisskosten und dem Grundstück von 750m².
Zzgl. der ortsüblichen Bau-, u. Kaufnebenkosten.
Die Abbildungen können Sonderbauteile enthalten, welche nicht im Angebotspreis enthalten sind.
Ich freue mich Sie persönlich kennenzulernen und lade Sie gerne zu einem Gespräch in mein Vertriebsbüro nach Niederkrüchten ein.
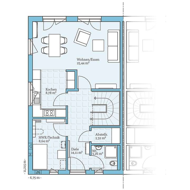
Grundriss
Erdgeschoss Bauprojekt Niederk
>
>
Dachgeschoss Bauprojekt Nieder
>
>
Obergeschoss Bauprojekt Nieder
>
>
Adresse
41372 Niederkrüchten
Interessante Orte
Preis- und Lageinformationen
Preistrend für Bestandsimmobilien in Niederkrüchten