Dieses besondere Immobilienangebot richtet sich an anspruchsvolle Käufer, die Wert auf hochwertige Ausstattung, ruhige Lage und nachhaltige Energieversorgung legen – und zugleich die Möglichkeit schätzen, Kapitalanlage und Eigennutzung clever zu kombinieren.
Versteckt im ruhigen Innenhof liegt dieses großzügige und hochwertig ausgestattete Einfamilienhaus – eine seltene Gelegenheit mit vielfältigen Nutzungsmöglichkeiten: ideal als stilvolles Eigenheim, Homeoffice-Oase oder repräsentatives Stadthaus mit modernem Energiestandard.
Das Vorderhaus bietet drei großzügige Wohneinheiten auf ca. 240 m² Wohnfläche verteilt über drei Etagen – mit der Möglichkeit, zwei der drei Einheiten flexibel in bis zu vier Appartements aufzuteilen. Ideal für möblierte Vermietung, Kurzzeitkonzepte oder Pendlerlösungen.
Ein Immobilienpaket mit Substanz, Charme und Perspektive. Das hochwertige Einfamilienhaus bietet modernen Wohnkomfort mit erneuerbarer Energie – ideal für Eigennutzer mit Weitblick. Das Mehrfamilienhaus ergänzt als solide Kapitalanlage mit Entwicklungsspielraum.
Nutzen Sie die Chance, Wohnen & Investment sinnvoll zu kombinieren.
Falls Ihnen dieses Objekt zusagt, sollten Sie unverzüglich handeln und einen unverbindlichen Besichtigungstermin mit uns vereinbaren.
Bitte sehen Sie von direkten Anfragen bei den Eigentümern ab. Sollten Sie Fragen haben, stehen wir Ihnen selbstverständlich gerne zur Verfügung!
Bitte haben Sie Verständnis dafür, dass wir Ihre Anfragen nur unter vollständiger Nennung Ihres Namens, Adresse und einer gültigen Telefonnummer bearbeiten können. Nur so sind wir befugt, Ihnen weitere Informationen zu geben oder einen Besichtigungstermin zu vereinbaren.
Sie suchen eine solide Kapitalanlage oder Mehrgenerationenhaus? Schauen Sie sich diese Paket an - VB
65199 Wiesbaden
Die vollständige Adresse der Immobilie erhalten Sie vom Anbieter.
Auf Karte anzeigen
Die vollständige Adresse der Immobilie erhalten Sie vom Anbieter.
Finanzierungszertifikat
In nur zwei Minuten zu Ihrem persönlichen Finanzierungszertifkat.
Infos
| Haustyp | Mehrfamilienhaus |
|---|---|
| Wohnfläche ca. | 425 m2 |
| Grundstücksfläche | 433 m2 |
| Bezugsfrei ab | nach Absprache |
| Zimmer | 17 |
| Schlafzimmer | 9 |
| Anzahl Garage/Stellplatz | 3 |
Kosten
| Kaufpreis |
1.200.000 € |
|---|---|
| Provision |
5,95% inkl MwSt |
Finanzierungsrechner:
Kaufpreis:
600.000 €
Eigenkapital:
600.000 €
Monatliche Rate
0 €
Effektiver Jahreszins
0 %
Sollzinsbindung
10 Jahre
Bausubstanz & Energieausweis
| Baujahr | 1895 |
|---|
Beschreibung des Objekts
Ausstattung
- Einfamilienhaus (HH)
Freistellung ca Mitte 2026 optimal planbar für Eigennutzer oder
hochwertige Vermietung.
- Charmantes Einfamilienhaus im Innenhof
- Grundstück: 225 ( sep. Grundbuch)
- Wohnfläche: ca. 185,79 m²
- Nutzfläche: ca. 51,24 m²
- 3-fach verglaste Kunststofffenster
- Tageslichtbad mit bodentiefer Dusche und Eckbadewanne
- 2 Gäste WC
- Einbauküche aus 2002
- 2 Brennholzkamine mit je 8 KW
- Fußbodenheizung in Wohnzimmer, Arbeitszimmer und den Schlafzimmern
- Große Dachterrasse ( 40 m²)
- Anbau aus 2001
- Modernisierte Innenräume (2002)
- Klimaanlage in Wohnzimmer, Schlafzimmern, Badezimmer, Arbeitszimmer,
Esszimmer
- Photovoltaik (8,19 kWP)
- Heizungsarzt: Daikin Luftwärmepumpe mit Pufferspeicher, Heizleistung 15 KW
(2023)
- Wallbox für E-Auto
Mehrfamilienhaus (Vorderhaus)
Wirtschaftliche Eckdaten:
- Ist-Miete: 24.996 € p.a.
- Brutto-Rendite: ca. 5 %
- Soll-Miete: 30.528 € p.a.
- Brutto-Rendite: ca. 6 %
Aufteilung & Flächen:
Vorderhaus (MFH):
- Grundstücksgröße: 208 m² ( sep. Grundbuch)
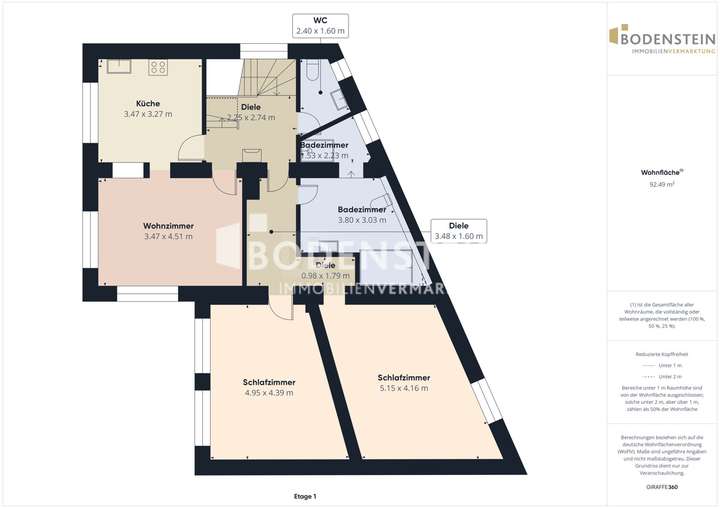
-- Wohnfläche: ca. 240 m²
- 3 Etagen + Keller, je Etage 2-3 Zimmerwohnungen ( á ca 80 m²)
- Vollunterkellert
- Gas-Zentralheizung (für jedes einzelne Stockwerk)
Heizung: EG: Mai 2023 neue Therme, andere sind ca 20 Jahre alt
- Waschmaschinenanschluss in den Küchen
- Gemeinschaftliche Stellplätze im Hof
- Separierte Versorgungsanschlüsse (bis auf Wasserzähler)
- Flexible Nutzung (Kapitalanlage oder Eigennutzung)
- Gepflegter Zustand beider Häuser
- Attraktive Rendite
- Vermietung mit Potenzial zur Optimierung
Lage
Diese Immobilie befindet sich in einer ruhigen Seitenstraße im Herzen einer gewachsenen Wohngegend – urban, belebt und dennoch angenehm abgeschirmt vom Trubel. Die Umgebung zeichnet sich durch eine hervorragende Infrastruktur aus: Einkaufsmöglichkeiten, Apotheken, Cafés und Restaurants sind bequem zu Fuß erreichbar. Schulen, Kindergärten und Ärzte befinden sich ebenso in der Nähe, was die Lage besonders für Familien und Berufstätige attraktiv macht.
Die Anbindung an den öffentlichen Nahverkehr ist exzellent. Bus- und Bahnhaltestellen befinden sich in unmittelbarer Nähe und sorgen für eine schnelle Verbindung ins Stadtzentrum sowie zu umliegenden Stadtteilen. Auch Pendler profitieren von der verkehrsgünstigen Lage mit gut erreichbaren Anschlussstellen an das regionale und überregionale Straßennetz.
Zudem bietet die Lage ein hohes Vermietungspotenzial – sei es für langfristige Mietverhältnisse oder möblierte Kurzzeitvermietung. Die gefragte Wohngegend kombiniert städtisches Leben mit hoher Wohnqualität – ein attraktiver Standort für Kapitalanleger und Eigennutzer gleichermaßen.
Grundriss
Erdgeschoss
>
>
Obergeschoss
>
>
Dachgeschoss
>
>
VH_Etage 0
>
>
VH Etage I
>
>
VH_Etage II
>
>
Adresse
65199 Wiesbaden
Interessante Orte
Preis- und Lageinformationen
Preistrend für Bestandsimmobilien in Dotzheim