Designcharakters innen wie außen Eleganz und Stilgefühl.
Im Innenraum treffen raffinierte architektonische Ideen auf eine stilvolle Designsprache. Ein geradlinig reduzierte Küche, viel weiß mit wenigen dunklen Akzenten treffen auf raumbildende bzw. raumstrukturierende Elemente, wie eine Wandscheibe mit schmalen Öffnungen, die den Blick lenkt und mit Kunst inszeniert werden kann.
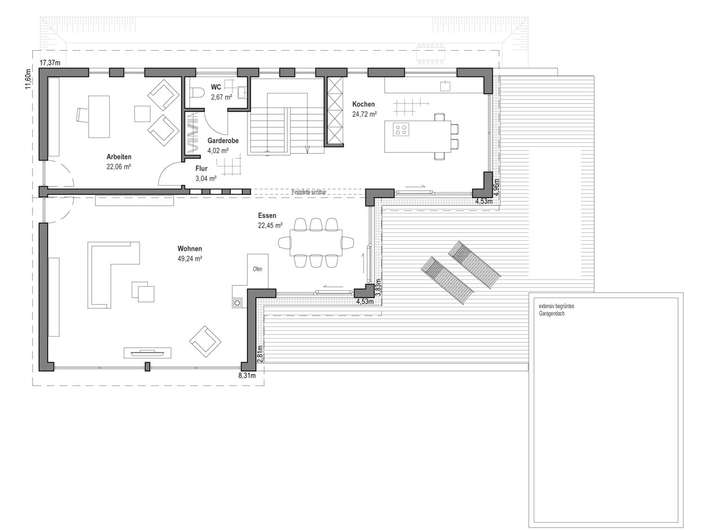
Die privaten Räume, das Schlafzimmer mit Ankleide und Bad als abgetrennter Bereich geplant und die beiden Kinderzimmer mit Kinderbad liegen im Erdgeschoss. Die Treppe zum repräsentativen Wohn-Essbereich mit leicht zurückversetzter Küche und abgeschlossenem Arbeitszimmer wird durch einen Flur mit großzügiger Garderobe mit zusätzlichem Einbauschrank erschlossen. Gäste können Garderobe ablegen und werden dann hinaufgeführt, die Familie kann hier erst einmal ankommen.
Das Besondere:
- Individuelle Planung entsprechend Ihrer Wünsche ist unter Berücksichtigung von Minderpreis / Mehrpreis mit unseren Architekten gerne möglich.
(Abbildungen zeigen Sonderausstattungen)
LUXHAUS für Anspruchsvolle 290 m² alles individuell planbar Schlüsselfertig
60388 Frankfurt am Main
Die vollständige Adresse der Immobilie erhalten Sie vom Anbieter.
Auf Karte anzeigen
Die vollständige Adresse der Immobilie erhalten Sie vom Anbieter.
Finanzierungszertifikat
In nur zwei Minuten zu Ihrem persönlichen Finanzierungszertifkat.
Infos
| Haustyp | Einfamilienhaus |
|---|---|
| Etagenzahl | 2 |
| Wohnfläche ca. | 290 m2 |
| Grundstücksfläche | 770 m2 |
| Zimmer | 5 |
Kosten
| Kaufpreis |
2.419.000 € |
|---|---|
| Provision | Nein |
Finanzierungsrechner:
Kaufpreis:
600.000 €
Eigenkapital:
600.000 €
Monatliche Rate
0 €
Effektiver Jahreszins
0 %
Sollzinsbindung
10 Jahre
Bausubstanz & Energieausweis
| Baujahr | 2026 |
|---|---|
| Bauphase | Haus in Planung (projektiert) |
| Objektzustand | Erstbezug |
| Qualität der Austattung | Gehoben |
| Heizungsart | Wärmepumpe |
| Wesentliche Energieträger | Strom |
Beschreibung des Objekts
Ausstattung
Für jeden Geschmack für jeden Anspruch die LUXHAUS Individualität:
-Anpassung der Baukörpergröße.
-Wahl der Dachform Walmdach - Satteldach – Pultdach – Flachdach.
-Individuelle Änderung der Raumaufteilung.
-Mit Keller oder auf Bodenplatte.
-Vier unterschiedliche Ausbaustufen.
-Rundumbetreuung vom ersten Tag bis zur Schlüsselübergabe und selbstverständlich auch darüber hinaus.
-Bankenunabhängiger LUXHAUS Finanzierungsservice.
-Alles aus einer Hand.
-Planen Sie Ihr persönliches LUXHAUS nach Ihren Wünschen und Bedürfnissen komplett individuell mit unseren Architekten.
Unter der Voraussetzung der Einhaltung vom Bebauungsplan.
Lage
Bestlage, voll erschlossen, Südausrichtung
Sonstige Angaben
Beratungstermine gerne nach Terminvereinbarung.
Weitere Dokumente
AufgeschluesseltMehrwerte
Finanzierung
Sentinel Zertifikat Wohngesund
Grundriss
Satteldach_Landhaus_290_EG
>
>
Satteldach_Landhaus_290_DG
>
>
Adresse
60388 Frankfurt am Main
Interessante Orte
Preis- und Lageinformationen
Preistrend für Bestandsimmobilien in Bergen-Enkheim