Dieses ansprechende und gepflegte Mehrfamilienhaus aus dem Jahr 1957 liegt im begehrten Stadtteil Bremen-Findorff und bietet eine Wohn- und Nutzfläche von ca. 245 m².
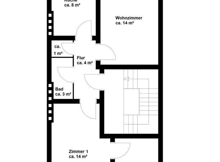
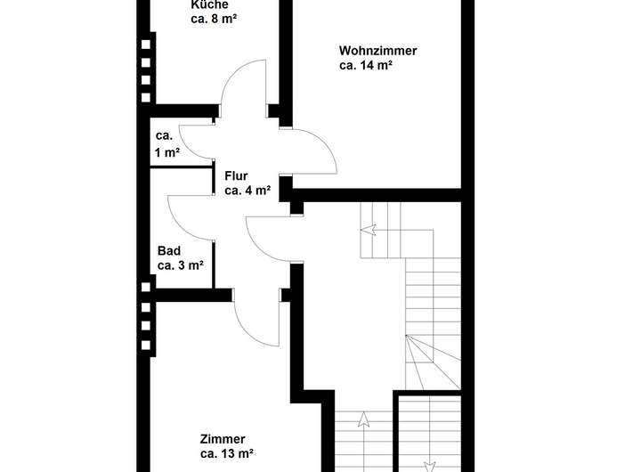
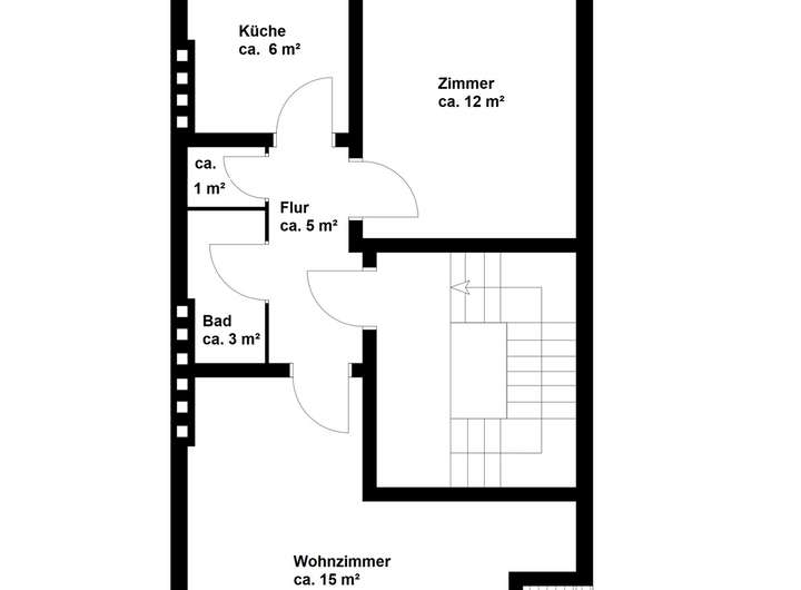
Die vier Wohneinheiten verfügen jeweils über zwei bis drei Zimmer, eine Küche, ein Bad und bis auf die Dachgeschosswohnung über einen Balkon.
Die Wohnflächen der Einheiten variieren zwischen ca. 42 und 54 m².
Die Wohnung im Dachgeschoss ist derzeit frei und kann zur Eigennutzung zur Verfügung gestellt werden. Eine Ausbaureserve für diese 2- Zimmerwohnung steht im Spitzboden zur Verfügung.
Inklusive der für diese Wohnung angesetzten kalkulatorischen Miete, beträgt die Jahresnettosollmiete derzeit € 23.520,--.
Aufgrund der vereinbarten Staffelmietverträge für die weiteren Wohnungen beträgt die Jahresnettosollmiete ab dem 01.08.2026 € 24.000,--.
Jede Wohnung verfügt über einen eigenen Kellerraum.
Ergänzt wird das Angebot durch eine großzügigen Waschküche mit einem eigenen Wasseranschluss und eigenem Wasserzähler für die Wohnungen Parterre bis II. OG. . Für die Wasserentnahme für das Haus und die Gartenbewässerung ist ein eigener Wasserzähler vorhanden.
Für die Waschmaschinen und den Wäschetrockner stehen je Wohnung zwei Steckdosen für jede Mietpartei zur Verfügung.
Im Vorgarten befinden sich Fahrradanlehnbügel. Zugewiesene Stellplätze für Fahrräder mit Fahrradständern befinden sich im Keller.
Findorff / Gepflegtes Mehrfamilienhaus in zentraler Lage mit möglicher Eigennutzung
28215 Bremen
Die vollständige Adresse der Immobilie erhalten Sie vom Anbieter.
Auf Karte anzeigen
Die vollständige Adresse der Immobilie erhalten Sie vom Anbieter.
Finanzierungszertifikat
In nur zwei Minuten zu Ihrem persönlichen Finanzierungszertifkat.
Infos
| Haustyp | Mehrfamilienhaus |
|---|---|
| Wohnfläche ca. | 201 m2 |
| Grundstücksfläche | 128 m2 |
| Bezugsfrei ab | sofort |
| Zimmer | 10 |
Kosten
| Kaufpreis |
580.000 € |
|---|---|
| Provision |
5,95% inkl. 19% MwSt. |
Finanzierungsrechner:
Kaufpreis:
600.000 €
Eigenkapital:
600.000 €
Monatliche Rate
0 €
Effektiver Jahreszins
0 %
Sollzinsbindung
10 Jahre
Bausubstanz & Energieausweis
| Baujahr | 1957 |
|---|---|
| Letzte Sanierung | 2021 |
| Objektzustand | Modernisiert |
| Heizungsart | Etagenheizung |
| Wesentliche Energieträger | Gas |
| Energieausweis | liegt vor |
| Energieausweistyp | Bedarfsausweis |
| Energieverbrauchskennwert | 133,6 kWh/(m²*a) |
| Energieeffizienzklasse | E |
133,6
kWh/(m²*a)
Energieeffizienzklasse E
- A+
- A
- B
- C
- D
- E
- F
- G
- H
- 0
- 25
- 50
- 75
- 100
- 125
- 150
- 175
- 200
- 225
- >250
Beschreibung des Objekts
Ausstattung
- Rollläden an allen Fenstern zur Straße
- Rollläden an allen Balkontüren
- Rollladen an der Hoftür, neu
- Alle Wohnungen verfügen über einen Sat- Anschluss mit Nutzung im Wohn- oder Schlafzimmer
- Jeder Balkon verfügt über eine Steckdose
- Duschtrennwand je Bad
- Einbauküchen je Wohnung
- 2015 Erneuerung der drei Dachflächenfenster
- 2015 Sanierung der Waschküche inklusive Strom- und Wasseranschlüsse sowie Wasseruhren
- 2015 Wasseranschluss mit Wasseruhr im Hof
- 2015 und 2021 Sanierung der Wohnung im 1. OG: Neue Wohnungseingangstür. Erneuerung aller Zimmertüren. Sanierung des Duschbades mit Spiegel und Schrank sowie Handtuchheizkörper, Erneuerung der Steigeleitungen Wasser- und Abwasser, neue Elektroinstallation ab Keller und in der gesamten Wohnung, mit FI im Badezimmer und umfangreichem Sicherungskasten. Laminatfußboden mit Trittschallschutz. Balkonsanierung. Erneuerung der Gasleitung. Ausstattung der Küche mit Kühlgefrierschrank und Mikrowelle. Alle Heizkörper und Leitungen neu.
- 2016 Sanierung der Wohnung im 2. OG, wie in 2015 die Wohnung im 1, OG jedoch mit zwei FI in der Wohnung und neuer Gastherme mit Außenfühler
- 2017 und 2021 Sanierung der Wohnung im Parterre, wie die Wohnung im 2. OG, jedoch ohne Erneuerung der Gastherme. Maßgefertigte Einbauküche.
- 2017 Erneuerung der Kellerfenster
- 2017 Erneuerung der Elektrik im Keller, Hausmeisterkeller mit Automatensicherung und Kraftstromanschluss
- 2018 Einzäunung der Hofflächen
- 2020 Erneuerung des Hausgasanschlusses
- 2021 und 2022 Parterre und 1. OG, Windfang und Treppenhaus: Teilweise Erneuerung der Zimmertüren, Erneuerung der Decke im Parterre mit Schallisolierung zwischen Parterre und 1. OG, Fußboden im 1. OG nach Brandschutz VO.
- 2026 Durch Staffelmietvereinbarungen beträgt die Jahresnettokaltmiete € 24.000,--
Lage
Der Stadtteil Findorff gehört zu den Toplagen Bremens und liegt sehr zentral, in unmittelbarer Nähe der Bremer Bürgerweide und der Bremer Stadthalle.
In direkter Nachbarschaft sind diverse Geschäfte für den täglichen Bedarf sowie Cafés und Restaurants zu finden.
Besonders bekannt unter Kulturliebhabern ist das Kulturzentrum „Schlachthof“. Der Findorffer Wochenmarkt ist fußläufig erreichbar und über den Ortsteil hinaus sehr bekannt.
Der Bremer Hauptbahnhof sowie die Bremer Innenstadt sind auch zu Fuß zu erreichen.
Besonders erwähnenswert ist auch die Nähe zum Bremer Bürgerpark, der zu ausgedehnten Spaziergängen einlädt.
Die Buslinie 25 befindet sich in unmittelbarer Nähe. Die Linien 26 und 27 sind in wenigen Gehminuten erreichbar.
Adresse
28215 Bremen
Interessante Orte
Preis- und Lageinformationen
Preistrend für Bestandsimmobilien in Findorff-Bürgerweide