Dieses charmante rustikale Mehrfamilienhaus im Lichtenauer Ortsteil Garnsdorf stammt aus dem Jahr 1925 und bietet mit einer Gesamtfläche von rund 214 Quadratmetern außergewöhnliches Potenzial für Käufer oder Investoren mit kreativen Ideen. Das massiv errichtete Gebäude umfasst derzeit fünf Wohneinheiten. Ein teilweise ausgebautes Dachgeschoss eröffnet zusätzliche Nutzungsmöglichkeiten, während der darüberliegende Spitzboden praktischen Stauraum bietet.
In den Jahren 1995 und 1996 wurde eine Teilsanierung durchgeführt. Dabei wurden das Schieferdach erneuert, der Kanalisationsanschluss hergestellt, Fenster und Haustür ersetzt sowie eine Gasheizung eingebaut. Aufgrund seines Alters eröffnet die Immobilie heute zahlreiche Chancen, eigene Gestaltungsideen einzubringen und modernen Wohnkomfort mit historischem Flair zu vereinen.
Zum Haus gehört ein Gartenbereich, der sich für eine funktionale oder ansprechende Außenflächengestaltung eignet und zusätzliche Attraktivität für künftige Nutzer schafft.
Mit einer durchdachten Planung und gezielten Maßnahmen bietet die Immobilie hervorragende Chancen zur Entwicklung eines attraktiven Wohnobjekts.
Attraktive Bestandsimmobilie mit fünf Wohneinheiten und Ausbaureserven
09244 Lichtenau
Die vollständige Adresse der Immobilie erhalten Sie vom Anbieter.
Auf Karte anzeigen
Die vollständige Adresse der Immobilie erhalten Sie vom Anbieter.
Finanzierungszertifikat
In nur zwei Minuten zu Ihrem persönlichen Finanzierungszertifkat.
Infos
| Haustyp | Mehrfamilienhaus |
|---|---|
| Etagenzahl | 3 |
| Wohnfläche ca. | 214 m2 |
| Nutzfläche | 214 m2 |
| Grundstücksfläche | 471 m2 |
| Bezugsfrei ab | sofort |
| Zimmer | 12 |
| Schlafzimmer | 6 |
| Badezimmer | 5 |
Kosten
| Kaufpreis |
109.000 € |
|---|---|
| Provision |
7,14 % Provison inkl. gesetzlicher MwSt. |
Finanzierungsrechner:
Kaufpreis:
600.000 €
Eigenkapital:
600.000 €
Monatliche Rate
0 €
Effektiver Jahreszins
0 %
Sollzinsbindung
10 Jahre
Bausubstanz & Energieausweis
| Baujahr | 1925 |
|---|---|
| Letzte Sanierung | 1996 |
| Qualität der Austattung | Einfach |
| Heizungsart | Gas-Heizung |
| Wesentliche Energieträger | Gas |
| Energieausweis | liegt zur Besichtigung vor |
Beschreibung des Objekts
Ausstattung
🏠 Allgemein
+ Baujahr: 1925
+ Gesamtfläche: ca. 214 m²
+ fünf Wohneinheiten
+ teilweise ausgebautes Dachgeschoss
+ Spitzboden als zusätzlicher Stauraum
+ vollständig unterkellert
🔧 Modernisierungen / Teilsanierung
+ Teilsanierung 1995/1996 durchgeführt
+ Erneuerung des Schieferdachs
+ Herstellung des Kanalisationsanschlusses
+ Austausch von Fenstern und Haustür
+ Einbau einer Gasheizung
🌿 Außenbereich
+ Gartenbereich
+ Gestaltungsmöglichkeiten für Sitzecke oder gärtnerische Nutzung
+ Möglichkeit für funktionale oder ansprechende Außenfläche
💡 Nutzung & Potenzial
+ Ausbau- und Gestaltungsmöglichkeiten im Dachgeschoss
+ ideale Grundlage zur Modernisierung
⚒️ Besondere Merkmale
+ Massivbauweise
+ historischer Charme
+ vielseitige Entwicklungsmöglichkeiten
Lage
Das Mehrfamilienhaus befindet sich in idyllischer Lage in Garnsdorf, einem charmanten Ortsteil der Stadt Lichtenau im Landkreis Mittelsachsen. Die Garnsdorfer Hauptstraße 113 liegt ruhig, aber dennoch verkehrsgünstig und ist damit perfekt für alle, die naturnah wohnen und zugleich eine gute Anbindung an die umliegenden Städte wünschen.
Auch das Freizeit und Kulturangebot in der Umgebung kann sich sehen lassen. Nur wenige Minuten entfernt lockt der weit über die Region hinaus bekannte Sonnenlandpark Lichtenau mit Abenteuerspielplatz, Fahrgeschäften und Streichelzoo, ein Highlight für Kinder und Familien. Spaziergänge, Wanderungen oder Radtouren durch die umliegenden Felder und Wälder bieten zusätzlichen Freizeitwert und tragen zum hohen Erholungsfaktor dieser Lage bei.
Dank der hervorragenden Verkehrsanbindung über die A4 Anschlussstelle Chemnitz Ost erreichen Sie die Innenstadt von Chemnitz in nur etwa 15 Minuten und Dresden in rund 40 Minuten. Einkaufsmöglichkeiten, Ärzte, Apotheken und Dienstleister finden sich im nahegelegenen Lichtenau sowie in den Nachbarorten, alles in kurzer Fahrdistanz.
Das naturnahe, ruhige Umfeld, die familienfreundliche Infrastruktur und die Nähe zu attraktiven Freizeitangeboten machen Garnsdorf zu einem idealen Wohnort für alle, die ländliches Wohnen mit urbaner Erreichbarkeit verbinden möchten.
Sonstige Angaben
Rechtlicher Hinweis:
Sämtliche Objektangaben basieren auf den uns erteilten Informationen des Verkäufers.Sie wurden gewissenhaft wiedergegeben. Eine Gewähr für ihre Richtigkeit kann jedoch nicht übernommen werden. Der Empfänger kann sich
nur darauf berufen, von diesem Angebot bereits vorher Kenntnis gehabt zu haben, wenn er dies nach erfolgter Exposézusendung innerhalb von 3 Tagen und ausschließlich schriftlich dem Objektanbieter mitteilt. Die Bekanntgabe der
Objektadresse/von Objektdaten geschieht unter ausdrücklichem Hinweis auf unseren Provisionsanspruch im Falle des Ankaufs.
Die Käuferprovision beträgt 7,14 % vom wirtschaftlichen Kaufpreis inkl. der gesetzlichen MwSt.
Wir weisen darauf hin, dass wir sowohl für den Käufer als auch für den Verkäufer tätig werden können und dafür von beiden Parteien eine Provision verlangen.
Eine Weitergabe an Dritte ist an unsere ausschließlich schriftliche Zustimmung gebunden und unterbindet nicht unseren Provisionsanspruch bei Zustandekommen eines Hauptvertrages. Alle Gespräche sind über unser Büro zu führen. Bei Zuwiderhandlung behalten wir uns Schadenersatz bis zur Höhe der Provisionsansprüche ausdrücklich vor.
Die Grundrisse sind zur Maßentnahme nicht geeignet.
Zwischenverkauf sowie Irrtum bleiben vorbehalten.
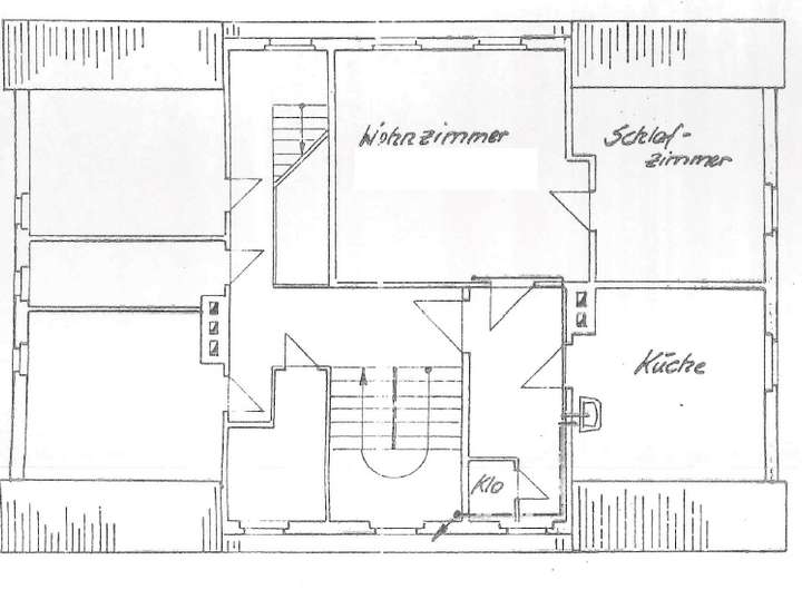
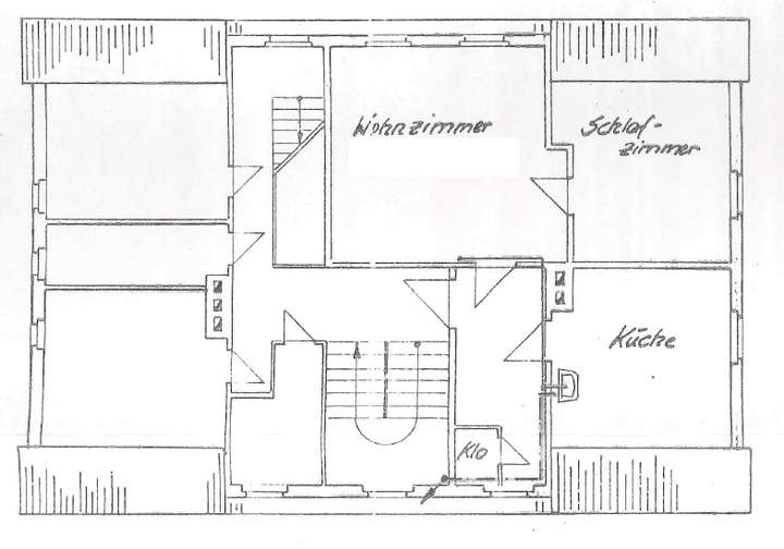
Grundriss
Grundriss Kellergeschoss
>
>
Grundriss Erdgeschoss
>
>
Grundriss Obergeschoss
>
>
Grundriss Dachgeschoss
>
>
Adresse
09244 Lichtenau
Interessante Orte
Preis- und Lageinformationen
Preistrend für Bestandsimmobilien in Lichtenau