Das hier angebotene Baugrundstück befindet sich in einer der begehrtesten Wohngegenden von Leverkusen-Schlebusch: ruhig, familienfreundlich und ideal gelegen in einer erschlossenen Sackgasse, deren aktueller Bodenrichtwert bei 650 € pro Quadratmeter liegt. Auf dem Gesamtgrundstück (ca. 867 qm) ist die Errichtung von zwei freistehenden Einfamilienhäusern mit jeweils einer Garage vorgesehen – eines auf der Westseite und eines auf der Ostseite.
Zum Verkauf steht hier die Grundstückshälfte auf der Westseite.
Die endgültige Quadratmeterzahl wird erst nach der Vermessung im Zuge der Teilung feststehen, der Angebotspreis bleibt hiervon unberührt.
Die Südost-Ausrichtung ermöglicht eine hervorragende natürliche Belichtung und schafft an diesem herausragenden Standort optimale Voraussetzungen für eine moderne Wohnbebauung in zweigeschossiger Bauweise.
Für dieses Grundstück wurde bereits eine detaillierte Projektierung durch das Architekturbüro Carl Wirtz GmbH aus Leverkusen erstellt. Eine Zusammenarbeit mit diesem erfahrenen Büro kann auf Wunsch fortgeführt werden. Für potenzielle Käufer erleichtert dies die Vorstellung eines hochwertigen Neubauprojekts und bietet die Möglichkeit, nahtlos in die Planung einzusteigen, auf bestehende Entwürfe zurückzugreifen sowie das Projekt individuell weiterzuentwickeln.
Gerne lassen wir Ihnen weitere Informationen zukommen. Nutzen Sie diese seltene Gelegenheit und vereinbaren einen Besichtigungstermin mit Ihrem Engel & Völkers Team aus Leichlingen.
Premium-Baugrundstück in ruhiger Sackgassenlage von Schlebusch
51375 Leverkusen
Die vollständige Adresse der Immobilie erhalten Sie vom Anbieter.
Auf Karte anzeigen
Die vollständige Adresse der Immobilie erhalten Sie vom Anbieter.
Finanzierungszertifikat
In nur zwei Minuten zu Ihrem persönlichen Finanzierungszertifkat.
Infos
| Vermarktungsart | Kaufen |
|---|---|
| Grundstücksfläche | 425 m2 |
| Erschließung | Erschlossen |
| Empfohlene Nutzung | Einfamilienhaus |
| Bebaubar nach | Bebauungsplan |
| Verfügbar ab | nach Vereinbarung |
Kosten
| Miete pro Jahr |
295.000 € |
|---|---|
| Provision |
3,57 Die Käufercourtage in Höhe von 3,57 % auf den Kaufpreis inkl. gesetzlicher Mehrwertsteuer von zurzeit 19 % ist bei notariellem Vertragsabschluss verdient und fällig. Ändert sich der Mehrwertsteuersatz, so ändert sich der Endpreis entsprechend. |
Finanzierungsrechner:
Kaufpreis:
600.000 €
Eigenkapital:
600.000 €
Monatliche Rate
0 €
Effektiver Jahreszins
0 %
Sollzinsbindung
10 Jahre
Beschreibung des Objekts
Lage
Leverkusen-Schlebusch liegt im Südosten der Stadt Leverkusen und bietet eine gelungene Mischung aus städtischem Leben und naturnaher Umgebung. Ein familienfreundliches Umfeld trifft hier auf hervorragende Infrastruktur. Durch seine gediegene und idyllische Lage mit vielen Grün- und Waldflächen gilt Schlebusch als einer der beliebtesten Stadtteile von Leverkusen. Kindergärten, Schulen, Geschäfte, Restaurants und alle anderen Einrichtungen des täglichen Bedarfs finden Sie in der nahen Umgebung und sind ebenso wie das Stadtzentrum von Leverkusen schnell erreichbar. Das Klinikum Leverkusen, welches eine umfassende medizinische Versorgung gewährleistet, ist ebenfalls nur wenige Fahrminuten entfernt. Für Naturliebhaber bietet Leverkusen viele Möglichkeiten zur Erholung. Ob ein Spaziergang an der nahegelegenen Dhünn, ein Besuch des japanischen Gartens oder eine Wanderung am Rhein - hier finden Sie viele abwechslungsreiche Freizeitaktivitäten im Grünen. Durch eine gute Anbindung an den öffentlichen Nahverkehr und der optimalen Verkehrs- und Autobahnanbindung an die A1 und A3 sind die Städte Leverkusen, Köln, Düsseldorf, Wuppertal und das naheliegende Bergische Land in kürzester Zeit erreichbar.
Sonstige Angaben
WICHTIGER HINWEIS: Bitte haben Sie Verständnis dafür, dass wir Ihnen ein ausführliches Exposé mit Anschrift des Objekts nur unter Angabe Ihrer vollständigen Kontaktdaten (inkl. Telefon- oder Mobilfunknummer) übermitteln können.
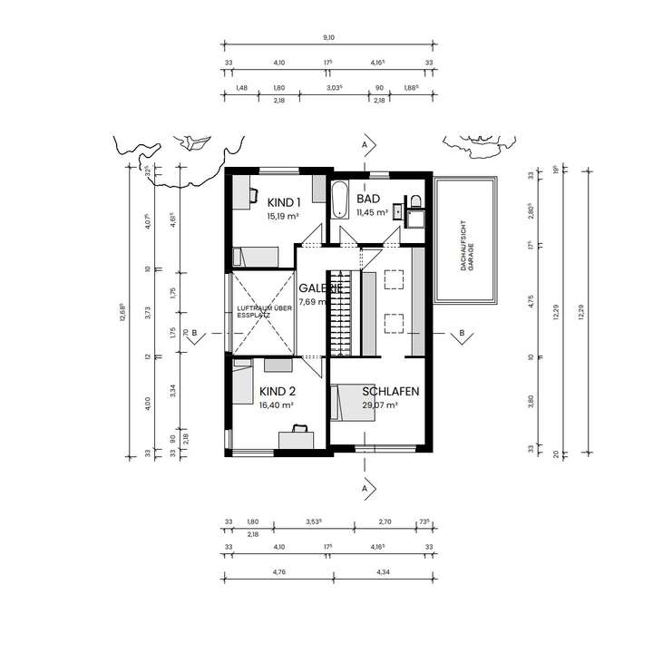
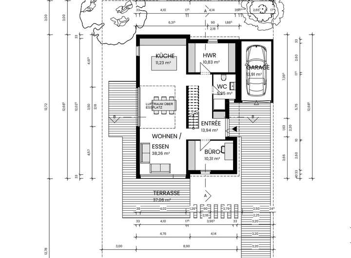
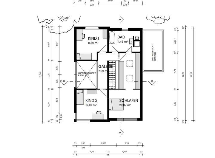
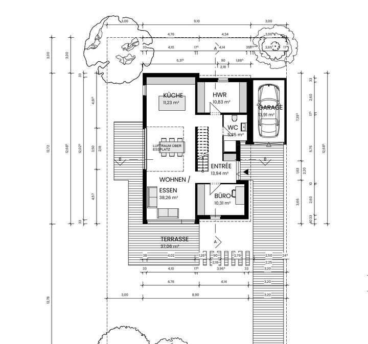
Grundriss
Projektierung Carl Wirtz GmbH
>
>
Projektierung Carl Wirtz GmbH
>
>