In Mühlhausen, direkt am idyllischen Saubach, entsteht eine moderne Hanse-Haus Villa in hochwertiger Holzständerbauweise.
Auf ca. 126 m² Wohnfläche und einem 416 m² großen Grundstück bietet die geplante energetische Villa idealen Raum für Familien, die Komfort, Qualität und durchdachte Architektur schätzen.
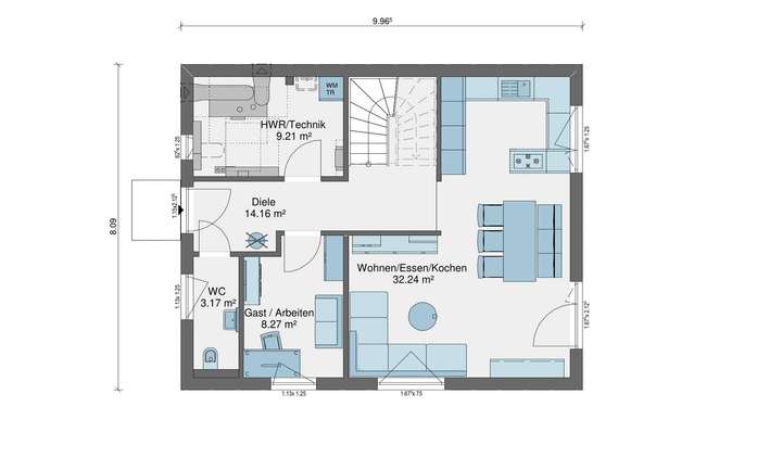
Im Erdgeschoss erwarten Sie ein heller Wohn-/Essbereich mit offener Küche, ein Gäste-Bad, ein Technikraum sowie ein flexibel nutzbares Zimmer (z. B. Büro oder Gästezimmer).
Im Obergeschoss befinden sich zwei Kinderzimmer, ein Elternschlafzimmer mit Ankleide sowie ein elegantes Bad mit Dusche und Badewanne.
Die Villa ist QNG-zertifizierbar und erfüllt damit die Voraussetzungen für die höchste KfW-Förderstufe „Wohneigentum für Familien“ – ideal für Familien mit 1–2 Kindern, die von sehr zinsgünstigen Krediten profitieren können. Weitere Fördermöglichkeiten erläutern wir gerne persönlich.
Technisch überzeugt das Haus mit Fußbodenheizung, Luft-Wasser-Wärmepumpe und Photovoltaikanlage samt Batteriespeicher für nachhaltige Energieeffizienz.
Das Angebot umfasst die Ausbaustufe „schlüsselfertig“ inklusive Bodenbelägen, Maler-/ Spachtel Arbeiten und Innentüren.
Vereinbaren Sie jetzt einen Beratungstermin und sichern Sie sich dieses besondere Zuhause in Spitzenlage!
Familienfreundliche Neubau-Villa in Mühlhausen – nachhaltig, modern & förderfähig
78259 Mühlhausen-Ehingen
Die vollständige Adresse der Immobilie erhalten Sie vom Anbieter.
Auf Karte anzeigen
Die vollständige Adresse der Immobilie erhalten Sie vom Anbieter.
Finanzierungszertifikat
In nur zwei Minuten zu Ihrem persönlichen Finanzierungszertifkat.
Infos
| Haustyp | Einfamilienhaus |
|---|---|
| Etagenzahl | 2 |
| Wohnfläche ca. | 126 m2 |
| Grundstücksfläche | 416 m2 |
| Zimmer | 5 |
| Schlafzimmer | 3 |
| Badezimmer | 1 |
Kosten
| Kaufpreis |
654.200 € |
|---|---|
| Provision | Nein |
Finanzierungsrechner:
Kaufpreis:
600.000 €
Eigenkapital:
600.000 €
Monatliche Rate
0 €
Effektiver Jahreszins
0 %
Sollzinsbindung
10 Jahre
Bausubstanz & Energieausweis
| Bauphase | Haus in Planung (projektiert) |
|---|---|
| Objektzustand | Erstbezug |
| Heizungsart | Fußbodenheizung |
| Wesentliche Energieträger | Umweltwärme |
| Energieausweis | laut Gesetz nicht erforderlich |
Beschreibung des Objekts
Ausstattung
Highlights des Hauses:
- großzügiger Wohn- und Essbereich
- Gäste-WC und Gäste-/Arbeitszimmer im Erdgeschoss
- 3 Schlafzimmer auf einer Etage im Obergeschoss
- Badezimmer mit Dusche und Badewanne
- Elternschlafzimmer verfügt über eine eigene Ankleide
- effiziente Luft-Wasser-Wärmepumpe
- Fußbodenheizung
- PV-Anlage mit Batteriespeicher
- QNG-zertifizierbar
- Dachform Satteldach
- Dachneigung 25°
- Wohnfläche 126,00 m²
- Grundfläche 133,00 m²
- Anzahl Geschosse 2
- inkl. Grundstück mit ca. 416 m²
Lage
Die geplante Villa in der von Rost-Straße besticht durch ihre ruhige, familienfreundliche Lage und eine perfekte Anbindung. Kindergärten und Schulen sind bequem erreichbar, sodass Ihre Kinder kurze Wege haben. Ein zusätzliches Plus ist die idyllische Lage am Saubach, der entlang des Grundstücks verläuft und eine besondere Wohnatmosphäre schafft.
Der Seehas-Anschluss sowie nahegelegene Busverbindungen sorgen für eine schnelle Erreichbarkeit der Umgebung.
Für den Alltag liegen Einkaufsmöglichkeiten, Ärzte und weitere Versorgungseinrichtungen in unmittelbarer Nähe. Die Kombination aus Ruhe, guter Infrastruktur und kurzen Wegen macht dieses Zuhause besonders attraktiv für Familien, die Wohnkomfort und Lebensqualität verbinden möchten.
Die Gemeinde Mühlhausen liegt idyllisch im Hegau, unweit der Hegauberge, und bietet eine hohe Lebensqualität in naturnaher Umgebung. Vereine, Freizeitangebote und ein reges Gemeinschaftsleben machen Mühlhausen besonders familienfreundlich. Gleichzeitig profitieren die Bewohner von der Nähe zu den Städten Singen, Radolfzell, Konstanz, Engen und der Autobahn A81 sowie von einer schnellen Erreichbarkeit der Schweiz, wodurch sich ländliche Ruhe und verkehrsgünstige Lage optimal verbinden.
Sonstige Angaben
Ein besonderes Highlight:
Die Villa ist QNG-zertifizierbar. Damit erfüllt sie die Voraussetzungen für die höchste Förderstufe der KfW-Förderung „Wohneigentum für Familien“ – ein großer Vorteil für Familien mit 1–2 Kindern, die so von äußerst zinsgünstigen Krediten profitieren können. Ob weitere Förderprogramme für Sie infrage kommen, erläutern wir gerne in einem persönlichen Gespräch.
Grundriss
Grundriss EG_QNG Villa 133
>
>
Grundriss OG_QNG Villa 133
>
>
Adresse
78259 Mühlhausen-Ehingen
Interessante Orte
Preis- und Lageinformationen
Preistrend für Bestandsimmobilien in Mühlhausen-Ehingen