Ideal für die junge Familie - jetzt einziehen & wohlfühlen
Bald neue KfW Förderung auch für Effizienzsklasse 55
49632 Essen (Oldenburg)
Die vollständige Adresse der Immobilie erhalten Sie vom Anbieter.
Auf Karte anzeigen
Die vollständige Adresse der Immobilie erhalten Sie vom Anbieter.
Finanzierungszertifikat
In nur zwei Minuten zu Ihrem persönlichen Finanzierungszertifkat.
Infos
| Haustyp | Einfamilienhaus |
|---|---|
| Wohnfläche ca. | 140 m2 |
| Nutzfläche | 0 m2 |
| Grundstücksfläche | 505 m2 |
| Zimmer | 4 |
| Schlafzimmer | 3 |
| Badezimmer | 1 |
| Anzahl Garage/Stellplatz | 0 |
Kosten
| Kaufpreis |
312.000 € |
|---|---|
| Provision | Nein |
Finanzierungsrechner:
Kaufpreis:
600.000 €
Eigenkapital:
600.000 €
Monatliche Rate
0 €
Effektiver Jahreszins
0 %
Sollzinsbindung
10 Jahre
Bausubstanz & Energieausweis
| Baujahr | 2026 |
|---|---|
| Bauphase | Haus in Planung (projektiert) |
| Qualität der Austattung | Gehoben |
| Heizungsart | Wärmepumpe |
Beschreibung des Objekts
Ausstattung
Lieferung und Aufstellung des Rohbaus mit Fenster und Außentüren auf bauseitiger Bodenplatte/Kellet, inkl. Statik, Bauantrag. Aufstellung erfolgt durch ein eigenes, erfahrenes und qualifiziertes Montageteam, inkl. Baustelleneinrichtung, Bautoilette ggfl. Gerüst. Dazu erhalten Sie unsere 18 Monate Festpreisgarantie. Das Haus ist nach der Übergabe des Rohbaus regendicht und wettergeschützt. In dieser Ausbaustufe werden Rollläden, Sanitär- und Elektroinstallation, Luft-Wasser-Wärmepumpe mit Fußbodenheizung, Beplankung der Decken und Dachschrägen, sowie schwimmender Estrich, Wand-Bodenfliesen in den Naßräumen, Duschwanne und Sanitärobjekte geliefert und fachgerecht montiert.
Lage
Essen i/O, Neubaugebiet Am Schützenplatz
Sonstige Angaben
5 Zimmer + offener Wohn-/Essbereich
Flexible Grundrisse für Eure Lebenssituation
Energiesparend & nachhaltig (Alle KfW-Standards möglich)
Kurze Bauzeit
Festpreisgarantie
Persönliche Betreuung von Anfang an
Jetzt Beratungstermin sichern!
Lasst Euch unverbindlich beraten und entdeckt, wie einfach der Weg in Euer Eigenheim sein kann.
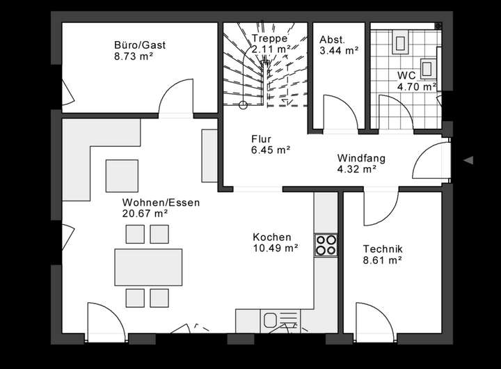
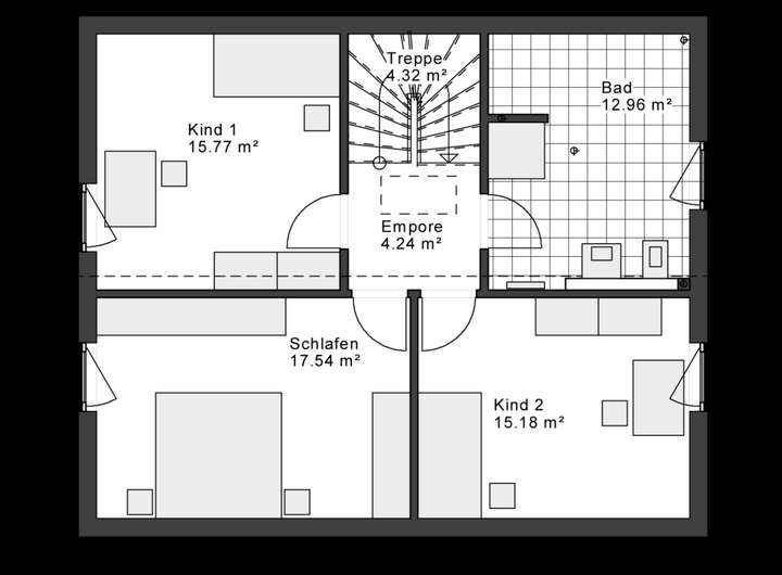
Grundriss
Grundriss EG
>
>
Grundriss OG
>
>
Adresse
49632 Essen (Oldenburg)
Interessante Orte
Preis- und Lageinformationen
Preistrend für Bestandsimmobilien in Essen (Oldenburg)