Für jede Anforderung das passende Haus. Mit diesem Motto präsentieren sich die schicken und hochmodernen CELEBRATION
Doppelhäuser. Die perfekt auf Doppelhaus-Grundstücke abgestimmten Häuser beeindrucken durch ihre nahezu unendliche
Vielfalt und Variabilität. CELEBRATION 122 bieten wir mit 2 oder 3 Geschossen an, je nachdem wie viel Platz Sie benötigen. Und
auch in Sachen Dachgestaltung wählen Sie bei beiden Varianten aus Satteldach, Pultdach oder Flachdach aus. So entsteht die
genau zu Ihnen passende Doppelhaushälfte, die Sie mit den zahlreichen Architektur-Bauteilen noch weiter individualisieren
können.
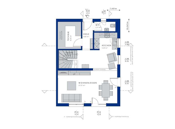
Ob mit 2 oder 3 Geschossen, CELEBRATION 122 bietet in beiden Varianten intelligente Lösungen, mit denen auf kompakten
Grundstücken ein Maximum an Wohnraum gewonnen werden kann. In beiden Ausführungen dient das Erdgeschoss als
Lebensmittelpunkt mit Wohn- und Esszimmer sowie Küche und den Funktionsräumen WC, Abstell- und Hauswirtschaftsraum.
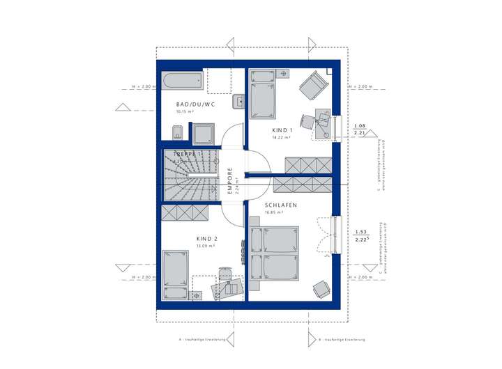
Die Variante mit 2 Geschossen beherbergt im Obergeschoss die Schlafzimmer und das Bad für alle Bewohner. In der Variante
mit 3 Geschossen wird das 1. Obergeschoss zu den Schlafräumen für Kinder und Gäste mit eigenem Bad. Das 2. Obergeschoss
dient dann alleine als großzügiges Elternschlafzimmer mit Ankleide und Bad.
Doppelhaushälfte auf exklusivem Grundstück!
26135 Oldenburg (Oldenburg)
Die vollständige Adresse der Immobilie erhalten Sie vom Anbieter.
Auf Karte anzeigen
Die vollständige Adresse der Immobilie erhalten Sie vom Anbieter.
Finanzierungszertifikat
In nur zwei Minuten zu Ihrem persönlichen Finanzierungszertifkat.
Infos
| Haustyp | Einfamilienhaus |
|---|---|
| Wohnfläche ca. | 122 m2 |
| Grundstücksfläche | 300 m2 |
| Zimmer | 4 |
Kosten
| Kaufpreis |
449.000 € |
|---|
Finanzierungsrechner:
Kaufpreis:
600.000 €
Eigenkapital:
600.000 €
Monatliche Rate
0 €
Effektiver Jahreszins
0 %
Sollzinsbindung
10 Jahre
Bausubstanz & Energieausweis
| Baujahr | unbekannt |
|---|
Beschreibung des Objekts
Ausstattung
Unsere Bien-Zenker Häuser werden hier in langjähriger Qualität "zur Ausstattung fertig" angeboten. Dazu gehören z. B.:
Außenwände im KFW 40 Energieeffizienzstandard
3-fach-verglaste Fenster im KFW 40 Energieeffizienzstandard
elektrische Alu-Rollläden gedämmt im EG und OG inkl. Smart Home-Steuerung
neueste Wohlfühlklimaheizung Plus - mit kontrollierter Be- und Entlüftung und Wärmerückgewinnung
Kühlfunktion für die warmen Tage im Jahr
Touchscreen, Einzelraumregelung und App-Steuerung
Bodenplatte
Um sich Ihren Traum zu verwirklichen, dürfen Sie noch den letzten Schliff anlegen:
Die Malerarbeiten, Bodenbelagsarbeiten, Innentüren und Sanitärobjekte fehlen noch zum Glück. Auf Anfrage biete ich Ihnen diese Gewerke natürlich gerne noch mit an.
Abschließend muss die Außenanlage noch erstellt werden.
inkl. Bodengutachten
inkl. BlowerDoorTest
zzgl. Baunebenkosten
Möchten Sie Eigenleistung einbringen und dadurch Geld sparen, wir können auch einzelne Gewerke aus unserer umfassenden Leistung rausnehmen.
Sprechen Sie mich an...
Lage
Oldenburg ist eine charmante Stadt im Nordwesten Deutschlands. Sie zeichnet sich durch ihre historische Altstadt mit malerischen Gassen, schönen Parks und grünen Alleen aus. Die Stadt hat eine lebendige Kulturszene, viele Museen und Galerien sowie eine Vielzahl von Restaurants und Cafés, die zum Verweilen einladen. Oldenburg ist auch bekannt für seine Fahrradfreundlichkeit und die Nähe zur Nordsee. Insgesamt eine Stadt mit viel Charme und Lebensqualität.
Sonstige Angaben
Im angegebenen Preis für dieses projektierte Haus ist das Grundstück, welches Sie direkt von Dritten erwerben, bereits enthalten.
Das Angebot ist unverbindlich und freibleibend.
Preis inkl. Bodenplatte, Grundinstallation, Architekt und Wohlfühl-Klima-Heizung+ mit kontrollierter Wohnraumbe- und Entlüftung. Exklusive der Baunebenkosten wie z.B. Hausanschlüsse, Außenanlagen, Notar- und Gerichtskosten.
Es wurde "Zur Ausstattung fertig" gerechnet.
Mit der Ausbauvariante "Zur Ausstattung fertig" können Sie Ihre handwerklichen Fähigkeiten voll ausspielen, wenn Sie die finalen Ausbauarbeiten selbst erledigen.
Im Preis enthalten sind:
-Bien-Zenker Haus außen fertig mit Haustür und Fenstern sowie innen mit Treppe
-Rollläden mit stabilen Aluminium-Lamellen
-Bodenplatte gemäß aktueller Bau- und Leistungsbeschreibung
-30 Jahre Gewährleistung auf die Grundkonstruktion Ihres Bien-Zenker Hauses
-5 Jahre Gewährleistung nach BGB auf die übrigen Bauleistungen Ihres Bien-Zenker Hauses
-Dämmpaket und Beplankung für Außenwände, Innenwände, Dach im ausgebauten Bereich und oberste Geschossdecke
-Elektroinstallation mit Schaltern und Steckdosen
-Sanitär-Rohinstallation in den Wänden
- Heizungsanlage
-Lüftungsanlage als kontrollierte Wohnraum Be- und Entlüftung inklusive Wärmerückgewinnung
-Sanitär-Zwischenverrohrung bis zum Technikraum
-Estrich
Nicht enthalten sind:
-Malerarbeiten wie spachteln und tapezieren
-Wand- und Bodenbeläge
-Innentüren
-Sanitäre Einrichtungen
Gerne bieten wir Ihnen das Haus auch als "Schlüsselfertig" (Bezugsfertig) an.
Abbildungen und Grundrisse zeigen Extras!
Gerne planen wir den Hausbau gemeinsam mit Ihnen auch auf Ihrem bereits vorhandenen Grundstück.
In einem ausführlichen Beratungsgespräch ermitteln wir für Sie gerne eine detaillierte Gesamtkostenaufstellung.
Grundriss
73671-4057-2-g
>
>
73672-4057-3-g
>
>
Adresse
26135 Oldenburg (Oldenburg)
Interessante Orte
Preis- und Lageinformationen
Preistrend für Bestandsimmobilien in Osternburg