Zwei Familien innovativ unter einem Dach vereint - das ist das Motto von CELEBRATION 192. Im Vordergrund der Planung
stand eine perfekte Ausnutzung kleinerer Bauplätze. Der Clou: Beide Wohneinheiten sind nebeneinander platziert. Jeder
Familie steht damit eine eigene Erd- und Obergeschosshälfte inklusive Terrasse und Gartenanteil zur Verfügung. Ob Sie Ihr
neues Zuhause mit einem Sattel-, Walm- oder Flachdach ausstatten, bleibt Ihnen überlassen. Noch mehr Möglichkeiten
eröffnen die unzähligen Architektur-Bauteile und Fassadenvariationen - kreieren Sie Ihr Traumhaus!
Im Erdgeschoss findet sich in beiden Wohnhälften ein großer Wohn- und Essbereich mit offen angeschlossener Küche.
Die doppelflügeligen Fenstertüren lassen nicht nur viel Licht ins Innere, sie bieten auch einen direkten Zugang zur Terrasse.
Der mittig liegende Hauswirtschaftsraum ist von außen zugänglich und wird von beiden Wohnparteien genutzt. Das Ober-
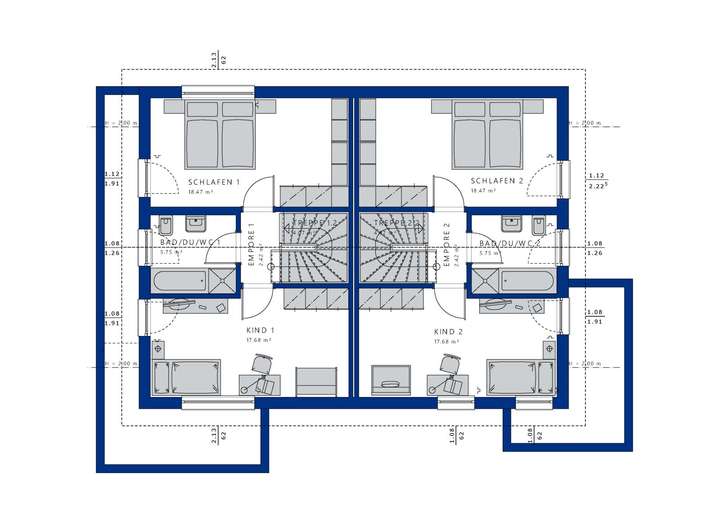
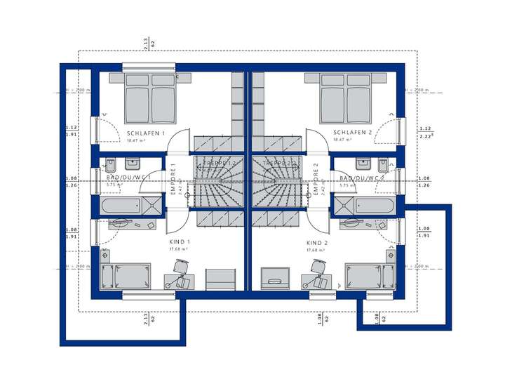
geschoss beherbergt jeweils zwei Schlafzimmer und ein gemütliches Bad.
Zweifamilenhaus für junge Familien. inkl. Grundstück
26219 Bösel
Die vollständige Adresse der Immobilie erhalten Sie vom Anbieter.
Auf Karte anzeigen
Die vollständige Adresse der Immobilie erhalten Sie vom Anbieter.
Finanzierungszertifikat
In nur zwei Minuten zu Ihrem persönlichen Finanzierungszertifkat.
Infos
| Wohnfläche ca. | 211 m2 |
|---|---|
| Grundstücksfläche | 1.700 m2 |
| Zimmer | 6 |
Kosten
| Kaufpreis |
720.424 € |
|---|
Finanzierungsrechner:
Kaufpreis:
600.000 €
Eigenkapital:
600.000 €
Monatliche Rate
0 €
Effektiver Jahreszins
0 %
Sollzinsbindung
10 Jahre
Bausubstanz & Energieausweis
| Baujahr | unbekannt |
|---|
Beschreibung des Objekts
Ausstattung
Unsere Bien-Zenker Häuser werden hier in langjähriger Qualität "zur Ausstattung fertig" angeboten. Dazu gehören z. B.:
PV-Anlage mit europäischen Modulen und Batteriespeicher von VARTA
Außenwände im KFW 40 Energieeffizienzstandard
3-fach-verglaste Fenster im KFW 40 Energieeffizienzstandard
elektrische Alu-Rollläden gedämmt im EG und OG inkl. Smart Home-Steuerung
neueste Wohlfühlklimaheizung Plus - mit kontrollierter Be- und Entlüftung und Wärmerückgewinnung
Kühlfunktion für die warmen Tage im Jahr
Touchscreen, Einzelraumregelung und App-Steuerung
Bodenplatte
Um sich Ihren Traum zu verwirklichen, dürfen Sie noch den letzten Schliff anlegen:
Die Malerarbeiten, Bodenbelagsarbeiten, Innentüren und Sanitärobjekte fehlen noch zum Glück. Auf Anfrage biete ich Ihnen diese Gewerke natürlich gerne noch mit an.
Abschließend muss die Außenanlage noch erstellt werden.
inkl. Bodengutachten
inkl. BlowerDoorTest
zzgl. Baunebenkosten
Möchten Sie Eigenleistung einbringen und dadurch Geld sparen, wir können auch einzelne Gewerke aus unserer umfassenden Leistung rausnehmen.
Sprechen Sie mich an...
Lage
Bösel ist eine Gemeinde im Landkreis Cloppenburg in Niedersachsen, Deutschland. Die Gemeinde liegt etwa 15 Kilometer südlich von Cloppenburg und hat rund 8.000 Einwohner.
Bösel ist geprägt von einer ländlichen Umgebung mit vielen Bauernhöfen, Wiesen und Feldern. Die Landschaft rund um Bösel lädt zum Spazierengehen, Radfahren und Erholen ein. In der Umgebung gibt es auch einige Waldgebiete, die sich für Wanderungen eignen.
Sehenswert in Bösel ist die St.-Cyprian-und-Cornelius-Kirche, eine historische Kirche aus dem 13. Jahrhundert. Auch das Schloss Clemenswerth, ein barockes Jagdschloss aus dem 18. Jahrhundert, ist einen Besuch wert.
In Bösel gibt es einige Geschäfte, Restaurants und Cafés, die regionale Produkte anbieten. Zudem finden regelmäßig Veranstaltungen und Feste statt, wie zum Beispiel das Schützenfest oder der Weihnachtsmarkt.
Die Einwohner von Bösel sind bekannt für ihre Gastfreundschaft und ihr Engagement im Dorfleben. Insgesamt ist Bösel ein lebendiger und attraktiver Ort, der sowohl für Naturliebhaber als auch für Kulturinteressierte einiges zu bieten hat.
Grundriss
73706-4067-5-g
>
>
73711-4067-6-g
>
>
Adresse
26219 Bösel
Interessante Orte
Preis- und Lageinformationen
Preistrend für Bestandsimmobilien in Bösel